Turpie & Co says ..
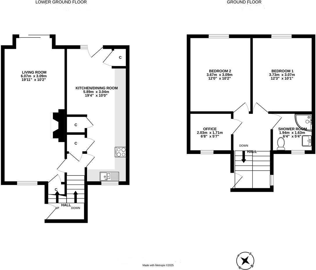
This deceptively spacious two-bedroom mid-terrace home, set over two floors in a popular Bathgate neighbourhood, offers a superb opportunity for comfortable modern living. With an enclosed rear garden, it is ideally suited to first-time buyers or a young family. EPC Rating - Band D
Property Oracle says ..
This is a two-bedroom terraced house located on Beech Road, Bathgate. The property is listed for £115,000. It features a bathroom and a garden. While the property is relatively small at 251.12 sqft, the price appears competitive compared to the average price per square foot in the area. The condition of the property is fair, with some modern elements but also areas that could use updating. The garden provides a valuable outdoor space. The location offers reasonable access to amenities and transportation, making it a potentially attractive option for first-time buyers or investors.
Therefore, we give this property 6 / 10. *Disclaimer: This is our option and does constitute a recommendation or financial advice. Do your own research. *
- Price
- 8
- Condition
- 6
- Location
- 6
- Land
- 7
- Bedrooms
- 2
- Bathrooms
- 1
- Sqft (est)
- 251.12
The heatmap indicates the level of crime in the area. The color of the heatmap indicates the crime severity and recency.
Metrics Year-on-Year
- Average area value
- 712,500.00 £Increased by 63.65 %
- Est sale value
- 89,398.72 £Increased by 11.95 %
- Average area rental value
- 1,330.00 £/moIncreased by 17.28 %
- Est letting value
- 0.00 £/mo
- Est rental Yield
- 2.24 %Decreased by 28.43 %
- Crime Rate
- 0.00 %
Agent Activity
Turpie & Co created the listing.
Images
Nearby Streets
| Name | Average Price | Average Sqft | Distance |
|---|---|---|---|
| Puir Wife's Brae | £ 0 | 0 | 0.00 KM |
| Kirkton Place | £ 0 | 0 | 0.00 KM |
| Starlaw Crescent | £ 0 | 0 | 0.00 KM |
| Starlaw Gardens | £ 220,000 | 0 | 0.00 KM |
| Kaim Crescent | £ 220,000 | 0 | 0.00 KM |
Nearby Transport
| Name | NLC | TLC | Distance |
|---|---|---|---|
| Bathgate | 9311 | BHG | 2.66 KM |
| Addiewell | 9310 | ADW | 6.46 KM |
| West Calder | 9250 | WCL | 7.29 KM |
| Livingston North | 9371 | LSN | 7.53 KM |
| Linlithgow | 9438 | LIN | 8.55 KM |
Nearby Listings
| Address | Price | Type | Score | Distance |
|---|---|---|---|---|
| Beech Road, Bathgate | £ 115,000 | BUY | 6 / 10 | 0.00 KM |
| Beech Road, Boghall | £ 125,000 | BUY | 6 / 10 | 0.01 KM |
| Philip Avenue, Bathgate, West Lothian, EH48 | £ 140,000 | BUY | Unknown | 0.05 KM |
| Philip Avenue, Bathgate | £ 140,000 | BUY | 6 / 10 | 0.05 KM |
| 76 Beech Road, Bathgate, West Lothian, EH48 1LX | £ 80,000 | BUY | Unknown | 0.06 KM |