FO
Acasias, Hill Road, Lyme Regis, Dorset, DT7
By Fortnam Smith & Banwell
£ 698,500
Reviews
3 out of 5 stars
Fortnam Smith & Banwell says ..
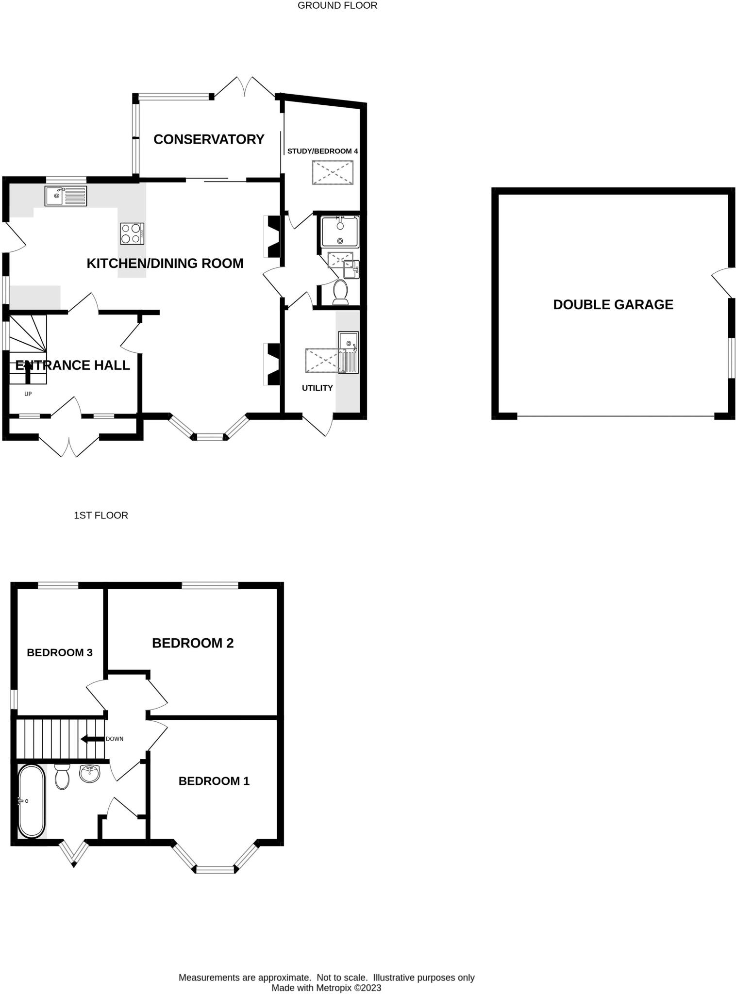
This immaculate three/four bedroom family home situated close to town benefits from an open plan kitchen/living space, sea glimpses, a sunny south facing garden and a detached double garage. Found in a popular residential location close to the town centre, seafront and beaches, Acasias...
Property Oracle says ..
Therefore, we give this property 6 / 10. *Disclaimer: This is our option and does constitute a recommendation or financial advice. Do your own research. *
- Price
- 6
- Condition
- 6
- Location
- 7
- Land
- 7
- Bedrooms
- 3
- Bathrooms
- 2
- Sqft (est)
- 1,348.00
The heatmap indicates the level of crime in the area. The color of the heatmap indicates the crime severity and recency.
Metrics Year-on-Year
- Average area value
- 547,942.00 £Decreased by 8.74 %
- Est sale value
- 613,340.00 £Decreased by 25.04 %
- Average area rental value
- 1,256.00 £/moIncreased by 35.78 %
- Est letting value
- 1,348.00 £/mo
- Est rental Yield
- 2.75 %Increased by 48.65 %
- Crime Rate
- 52.00 %Unchanged by 0.00 %
from 600,447.00 £
from 818,236.00 £
from 925.00 £/mo
from 0.00 £/mo
from 1.85 %
from 52.00 %
Agent Activity
Fortnam Smith & Banwell created the listing.
Nearby Schools
| Name | Type | Ofsted | Distance |
|---|---|---|---|
| St Michael'S Church Of England Voluntary Aided Primary School, Lyme Regis | Voluntary Aided School | Requires improvement | 0.43 KM |
| Beaminster And Lyme Regis Sure Start Children'S Centre | Children's Centre | 0.43 KM | |
| The Woodroffe School | Foundation School | Outstanding | 1.41 KM |
| Mrs Ethelston'S Cofe Primary Academy | Academy Converter | Good | 2.71 KM |
| Charmouth Primary School | Community School | Requires improvement | 4.01 KM |
Images
Nearby Streets
| Name | Average Price | Average Sqft | Distance |
|---|---|---|---|
| Dolphin Close | £ 0 | 0 | 0.00 KM |
| Monmouth Street | £ 0 | 0 | 0.00 KM |
| Manor Avenue | £ 0 | 0 | 0.00 KM |
| Summerhill Road | £ 0 | 0 | 0.00 KM |
| Springhill | £ 0 | 0 | 0.00 KM |
Nearby Transport
| Name | NLC | TLC | Distance |
|---|---|---|---|
| Axminster | 5714 | AXM | 9.54 KM |
Nearby Listings
| Address | Price | Type | Score | Distance |
|---|---|---|---|---|
| Acasias, Hill Road, Lyme Regis, Dorset, DT7 | £ 698,500 | BUY | 6 / 10 | 0.00 KM |
| Hill Road, Lyme Regis, Dorset, DT7 | £ 390,000 | BUY | 6 / 10 | 0.07 KM |
| Danesbury, Hill Road, Lyme Regis, Dorset, DT7 | £ 399,999 | BUY | 6 / 10 | 0.09 KM |
| Uckfield, Hill Road, Lyme Regis, Dorset, DT7 | £ 675,000 | BUY | Unknown | 0.10 KM |
| Sherborne Lane, Lyme Regis, Dorset, DT7 | £ 399,000 | BUY | 6 / 10 | 0.11 KM |
Nearby Properties
| Address | Price | Distance |
|---|---|---|
| 18 Sherborne Lane | £ 245,000 | 0.10 KM |
| 14 Sherborne Lane | £ 265,000 | 0.10 KM |
| 9 Sherborne Lane | £ 360,000 | 0.10 KM |
| 40 Sherborne Lane | £ 305,000 | 0.10 KM |
| 7 Sherborne Lane | £ 371,000 | 0.10 KM |