Tip Hill, Ottery St. Mary, EX11 1BE
By Redferns Estate and Letting agents
£ 195,000
Reviews
3 out of 5 stars
Redferns Estate and Letting agents says ..
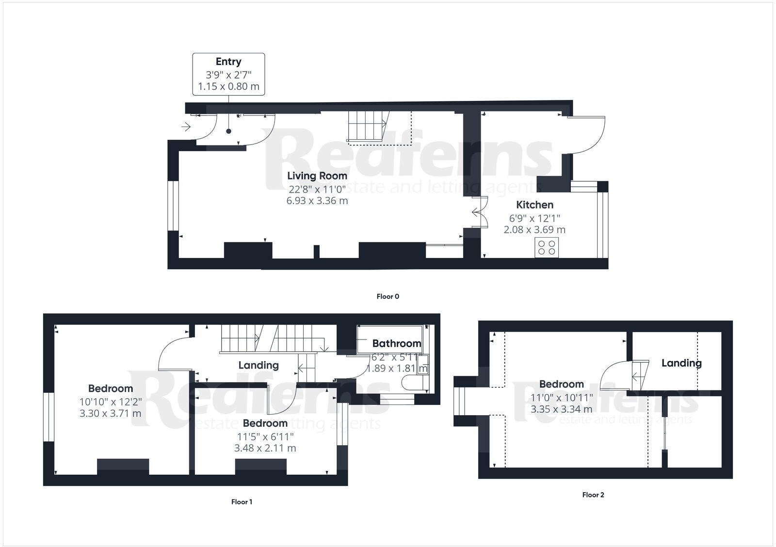
A surprisingly spacious three-bedroom home in a mid-terrace setting, ideally placed close to the amenities of this popular town. Offered with NO ONWARD CHAIN.
Property Oracle says ..
This is a two-bedroom terraced property located on Tip Hill in Ottery St Mary. The property is in reasonable condition but would benefit from some modernisation. The property has a garden. The property is listed for £195,000, which is below the average price for the area. Ottery St Mary is a desirable location with good schools and amenities.
Therefore, we give this property 6 / 10. *Disclaimer: This is our option and does constitute a recommendation or financial advice. Do your own research. *
- Price
- 8
- Condition
- 5
- Location
- 7
- Land
- 6
- Bedrooms
- 2
- Bathrooms
- 1
The heatmap indicates the level of crime in the area. The color of the heatmap indicates the crime severity and recency.
Metrics Year-on-Year
- Average area value
- 400,000.00 £Increased by 7.31 %
- Average area rental value
- 850.00 £/moDecreased by 13.00 %
- Est rental Yield
- 2.55 %Decreased by 19.05 %
- Crime Rate
- 148.00 %Unchanged by 0.00 %
Agent Activity
Redferns Estate and Letting agents created the listing.
Nearby Schools
| Name | Type | Ofsted | Distance |
|---|---|---|---|
| Ottery St Mary Children'S Centre | Children's Centre | 0.00 KM | |
| Ottery St Mary Primary School | Foundation School | Good | 0.81 KM |
| The King'S School | Academy Converter | Outstanding | 1.60 KM |
| Tipton St John Church Of England Primary School | Voluntary Aided School | Good | 3.92 KM |
| Feniton Church Of England Primary School | Voluntary Aided School | Outstanding | 4.08 KM |
Images
Nearby Streets
| Name | Average Price | Average Sqft | Distance |
|---|---|---|---|
| Winter's Lane | £ 0 | 0 | 0.00 KM |
| New Lane | £ 0 | 0 | 0.00 KM |
| Furzebrook | £ 0 | 0 | 0.00 KM |
| Coleridge Bridge | £ 220,000 | 0 | 0.00 KM |
| Colebred Close | £ 0 | 0 | 0.00 KM |
Nearby Transport
| Name | NLC | TLC | Distance |
|---|---|---|---|
| Feniton | 5808 | FNT | 4.08 KM |
| Whimple | 5759 | WHM | 8.64 KM |
Nearby Listings
| Address | Price | Type | Score | Distance |
|---|---|---|---|---|
| Tip Hill, Ottery St. Mary, EX11 1BE | £ 195,000 | BUY | 6 / 10 | 0.00 KM |
| Tip Hill, Ottery St Mary | £ 189,950 | BUY | Unknown | 0.00 KM |
| Tip Hill, Ottery St Mary | £ 235,000 | BUY | Unknown | 0.00 KM |
| Jesu Street, Ottery St Mary | £ 165,000 | BUY | 6 / 10 | 0.04 KM |
| Jesu Street, Ottery St Mary | £ 535,000 | BUY | 7 / 10 | 0.08 KM |
Nearby Properties
| Address | Price | Distance |
|---|---|---|
| 2 Tip Hill | £ 175,000 | 0.01 KM |
| 3 Tip Hill | £ 222,500 | 0.01 KM |
| 12 Tip Hill | £ 167,000 | 0.01 KM |
| 7 Tip Hill | £ 150,000 | 0.01 KM |
| Hillcote | £ 180,000 | 0.01 KM |