West Hoathly, West Sussex
RH

West Hoathly, West Sussex

By RH & RW Clutton

£ 760,000

Reviews

3 out of 5 stars

RH & RW Clutton says ..

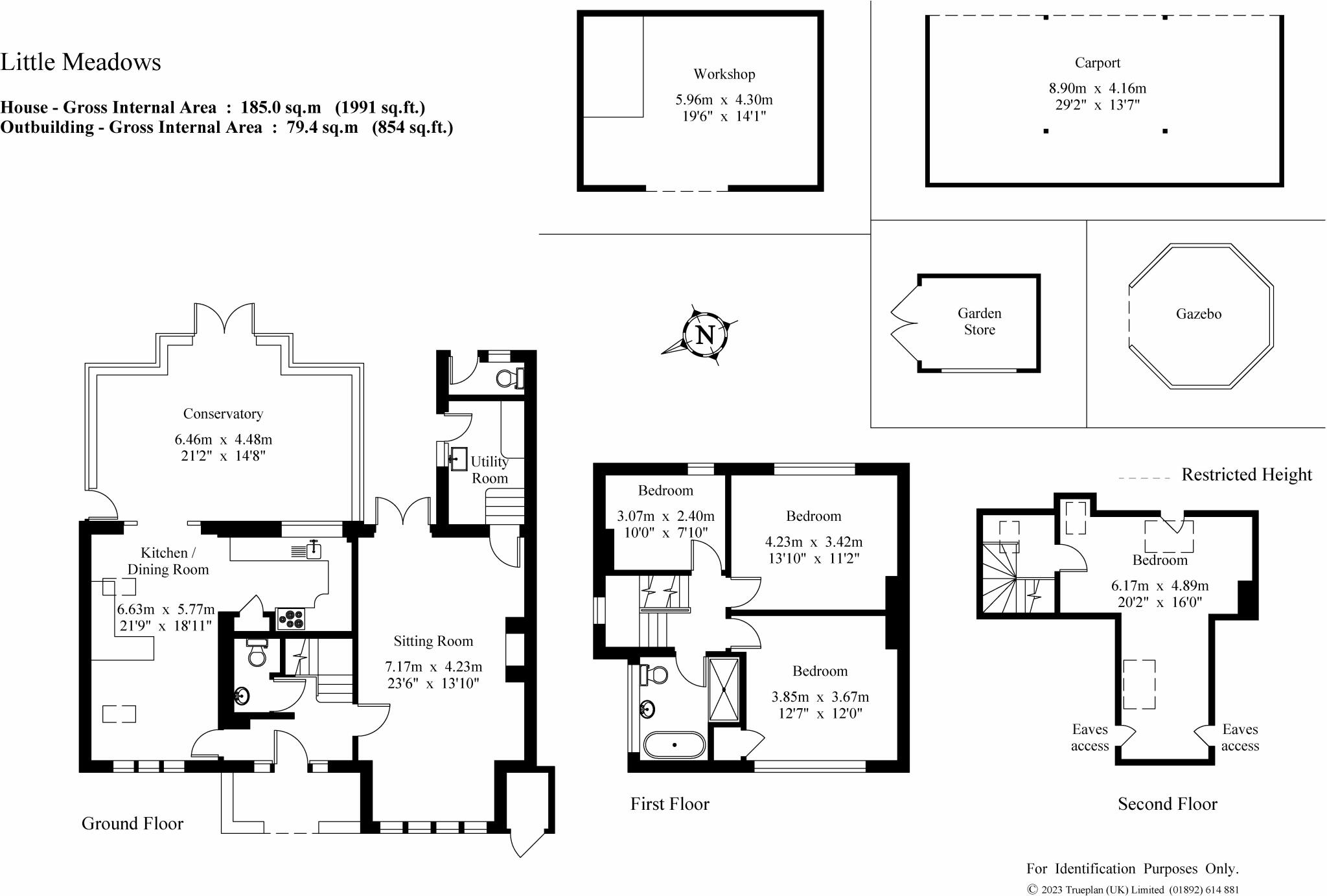
* OIRO £760,000 - £775,000 * A beautifully presented semi-detached house with a large garden, carport and off road parking set in a semi rural location, surrounded by High Weald AONB countryside.

Property Oracle says ..

This four-bedroom property in West Hoathly, West Sussex, presents a charming blend of rural tranquility and modern comforts. The property’s character is evident in its exterior architecture, complemented by a substantial garden providing ample outdoor space, a significant advantage in a semi-rural setting. Inside, the property appears well-maintained, with recent updates enhancing its functionality and appeal. The open-plan kitchen and conservatory create a bright and spacious living area, ideal for modern family living. The inclusion of a carport and off-road parking is also a practical advantage. The location in West Hoathly, within reach of highly rated primary schools, makes this property attractive to families. While the nearest train stations require a short drive, they offer convenient access to London. The lack of precise plot size data and more detailed comparable pricing information prevents a fully conclusive assessment of the price-to-value ratio. Overall, this property offers a comfortable and attractive family home in a desirable rural location, albeit with some minor improvements or upgrades possible to further enhance its value.

Therefore, we give this property 7 / 10. *Disclaimer: This is our option and does constitute a recommendation or financial advice. Do your own research. *

Price
7
Condition
8
Location
7
Land
6
Bedrooms
4
Bathrooms
1
Sqft (est)
1,991.00

The heatmap indicates the level of crime in the area. The color of the heatmap indicates the crime severity and recency.

Metrics Year-on-Year

Average area value
469,167.00 £
Decreased by 15.00 %
from 551,959.00 £
Est sale value
1,335,961.00 £
Increased by 40.67 %
from 949,707.00 £
Average area rental value
4,750.00 £/mo
Increased by 210.86 %
from 1,528.00 £/mo
Est letting value
11,946.00 £/mo
Increased by 500.00 %
from 1,991.00 £/mo
Est rental Yield
12.15 %
Increased by 265.96 %
from 3.32 %
Crime Rate
0.00 %
from 0.00 %

Agent Activity

  • RH & RW Clutton created the listing.

Nearby Schools

NameTypeOfstedDistance
Philpots Manor SchoolOther Independent Special SchoolGood1.14 KM
St Peter'S Cofe Primary SchoolVoluntary Controlled SchoolGood2.88 KM
West Hoathly Cofe Primary SchoolVoluntary Controlled SchoolGood2.93 KM
Turners Hill Cofe Primary SchoolVoluntary Controlled SchoolOutstanding2.99 KM
Ardingly CollegeOther Independent School4.19 KM

Images

Picture No. 65 Picture No. 59 Picture No. 62 Kitchen Kitchen Conservatory Sitting Room Bedroom 1 Bedroom 4 Family Bathroom Picture No. 64 Google Maps Image Picture No. 48 Picture No. 63 Picture No. 61 Picture No. 41

Nearby Streets

NameAverage PriceAverage SqftDistance
Stonelands £ 000.00 KM

Nearby Transport

NameNLCTLCDistance
Balcombe5492BAB6.64 KM
Haywards Heath5490HHE8.34 KM
East Grinstead5486EGR8.88 KM
Three Bridges5491TBD9.96 KM

Nearby Listings

AddressPriceTypeScoreDistance
West Hoathly, West Sussex £ 760,000BUY7 / 100.00 KM
West Hoathly, West Sussex £ 975,000BUYUnknown0.89 KM
Selsfield Road, West Hoathly, East Grinstead, West Sussex, RH19 £ 1,650,000BUY8 / 101.06 KM
Stonelands Estate, Selsfield Road, West Hoathly, RH19 £ 1,085,000BUYUnknown1.06 KM
Selsfield Road, West Hoathly, RH19 £ 1,675,000BUY9 / 101.10 KM

Nearby Properties

AddressPriceDistance
The White House £ 745,0000.88 KM
Snegs Hill £ 1,205,0001.64 KM
Duckyls Clock House £ 1,192,5001.64 KM
Baskings Parva £ 625,0001.64 KM
Esland Cottage £ 577,5001.72 KM