Peglars Way, Wichelstowe, Swindon, Wiltshire, SN1 7GX
By McCarthy Stone
£ 380,500
Reviews
3 out of 5 stars
McCarthy Stone says ..
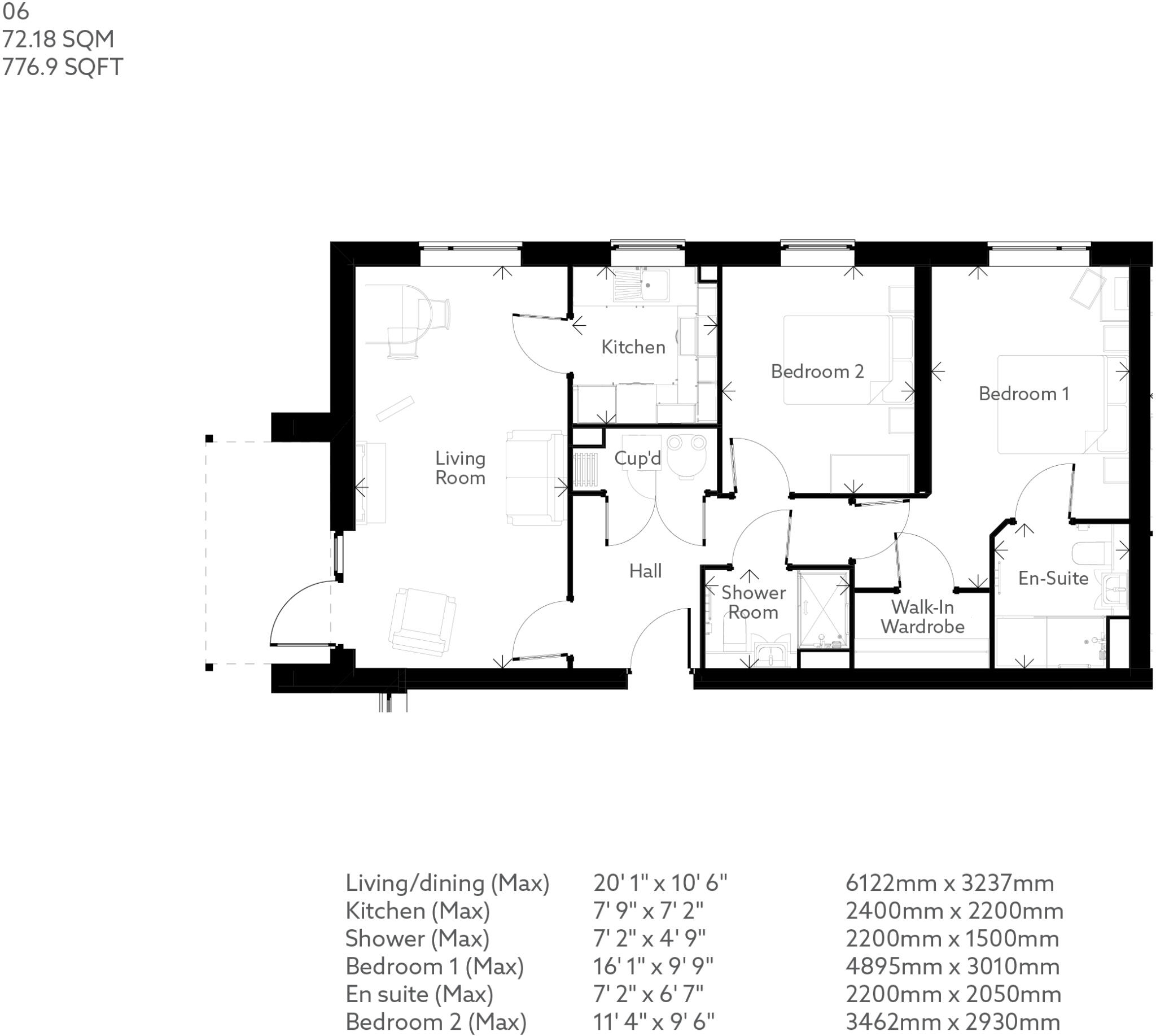
Apartment 6 is a beautiful two-bedroom apartment at our stunning Locks View development in Swindon.
Property Oracle says ..
This McCarthy Stone property in Wichelstowe, Swindon offers a modern and well-maintained two-bedroom apartment. The interior is presented to a high standard, with contemporary fixtures and fittings visible in the provided photographs. The development’s location offers convenient access to local schools, including Kingfisher CE Academy and The Deanery CE Academy, both situated very close by. The proximity to Swindon town centre via public transport is also a significant advantage. However, the lack of private outdoor space is a notable drawback, particularly given the list price. The absence of detailed pricing data for comparable properties in the immediate vicinity makes a definitive assessment of value challenging. Further information on the property’s specific features, including square footage and any additional amenities, would allow for a more comprehensive evaluation.
Therefore, we give this property 6 / 10. *Disclaimer: This is our option and does constitute a recommendation or financial advice. Do your own research. *
- Price
- 6
- Condition
- 8
- Location
- 7
- Land
- 3
- Bedrooms
- 2
- Bathrooms
- 0
- Sqft (est)
- 776.90
The heatmap indicates the level of crime in the area. The color of the heatmap indicates the crime severity and recency.
Metrics Year-on-Year
- Average area value
- 460,714.00 £Increased by 27.86 %
- Est sale value
- 393,888.30 £Increased by 63.55 %
- Average area rental value
- 1,150.00 £/moDecreased by 37.30 %
- Est letting value
- 776.90 £/moUnchanged by 0.00 %
- Est rental Yield
- 3.00 %Decreased by 50.90 %
- Crime Rate
- 0.00 %
Agent Activity
McCarthy Stone created the listing.
Nearby Schools
| Name | Type | Ofsted | Distance |
|---|---|---|---|
| Kingfisher Ce Academy | Free Schools | 0.01 KM | |
| The Deanery Ce Academy | Free Schools | 0.09 KM | |
| Hazelwood Academy | Academy Sponsor Led | Good | 1.75 KM |
| Robert Le Kyng Primary School | Community School | Good | 1.95 KM |
| East Wichel Primary School & Nursery | Community School | Good | 1.96 KM |
Images
Nearby Streets
| Name | Average Price | Average Sqft | Distance |
|---|---|---|---|
| Deanery Drive | £ 0 | 0 | 0.00 KM |
| Prunus Walk | £ 0 | 0 | 0.00 KM |
| Wishford Row | £ 0 | 0 | 0.00 KM |
| Conference Road | £ 375,000 | 0 | 0.00 KM |
| Scott Way | £ 0 | 0 | 0.00 KM |
Nearby Transport
| Name | NLC | TLC | Distance |
|---|---|---|---|
| Swindon (Wilts) | 3333 | SWI | 3.48 KM |
Nearby Listings
| Address | Price | Type | Score | Distance |
|---|---|---|---|---|
| Peglars Way, Wichelstowe, Swindon, Wiltshire, SN1 7GX | £ 255,500 | BUY | 7 / 10 | 0.00 KM |
| Peglars Way, Wichelstowe, Swindon, Wiltshire, SN1 7GX | £ 277,000 | BUY | 7 / 10 | 0.00 KM |
| Peglars Way, Wichelstowe, Swindon, Wiltshire, SN1 7GX | £ 365,000 | BUY | 7 / 10 | 0.00 KM |
| Peglars Way, Wichelstowe, Swindon, Wiltshire, SN1 7GX | £ 203,250 | BUY | 6 / 10 | 0.00 KM |
| Peglars Way, Wichelstowe, Swindon, Wiltshire, SN1 7GX | £ 253,500 | BUY | 6 / 10 | 0.00 KM |
Nearby Properties
| Address | Price | Distance |
|---|---|---|
| 37 Gold View | £ 295,000 | 0.80 KM |
| 8 Gold View | £ 250,000 | 0.80 KM |
| 30 Gold View | £ 275,000 | 0.80 KM |
| 25 Gold View | £ 355,000 | 0.80 KM |
| 5 Gold View | £ 537,500 | 0.80 KM |