HI
Mile End Close, Foulridge
By Hilton & Horsfall Estate Agents
£ 449,950
Reviews
3 out of 5 stars
Hilton & Horsfall Estate Agents says ..
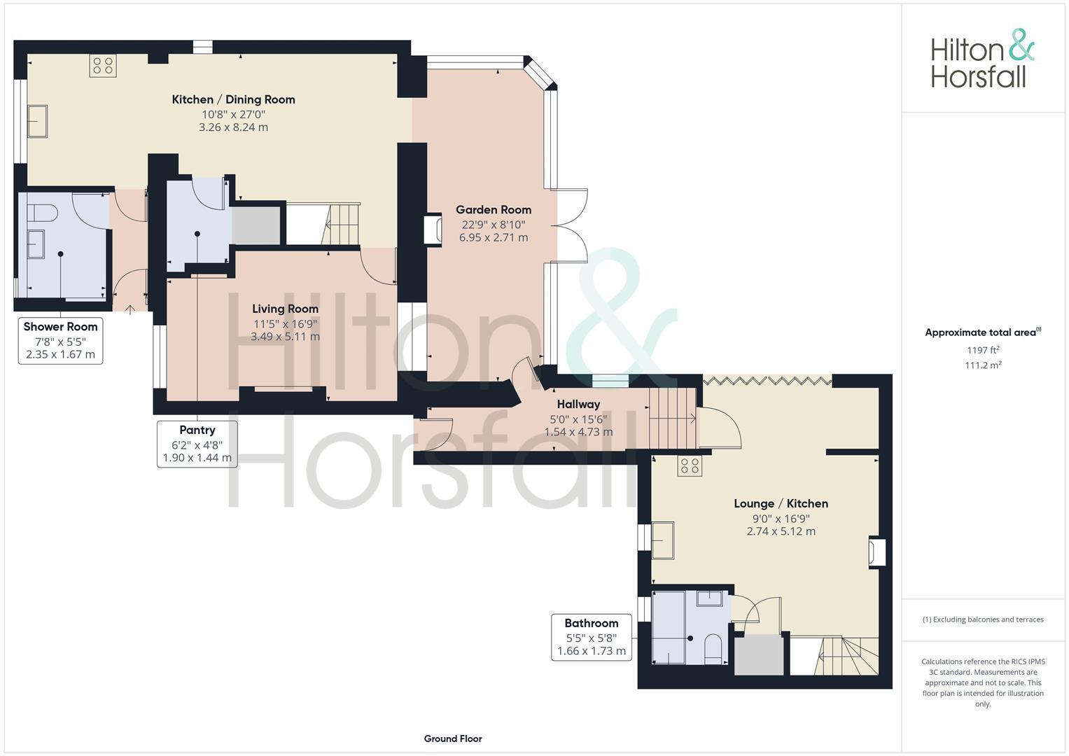
A spacious and versatile family home offering beautifully appointed accommodation across two floors, along with a self-contained annexe ideal for multigenerational living or guest use. The ground floor of the main house comprises an inviting entrance hallway, a convenient wet room, a wel...
Property Oracle says ..
Therefore, we give this property 7 / 10. *Disclaimer: This is our option and does constitute a recommendation or financial advice. Do your own research. *
- Price
- 7
- Condition
- 8
- Location
- 7
- Land
- 7
- Bedrooms
- 4
- Bathrooms
- 3
- Sqft (est)
- 1,778.10
The heatmap indicates the level of crime in the area. The color of the heatmap indicates the crime severity and recency.
Metrics Year-on-Year
- Average area value
- 239,621.00 £Decreased by 9.71 %
- Est sale value
- 373,401.00 £Increased by 56.72 %
- Average area rental value
- 765.00 £/moDecreased by 6.02 %
- Est letting value
- 0.00 £/mo
- Est rental Yield
- 3.83 %Increased by 4.08 %
- Crime Rate
- 2.00 %Unchanged by 0.00 %
from 265,389.00 £
from 238,265.40 £
from 814.00 £/mo
from 0.00 £/mo
from 3.68 %
from 2.00 %
Agent Activity
Hilton & Horsfall Estate Agents created the listing.
Nearby Schools
| Name | Type | Ofsted | Distance |
|---|---|---|---|
| Foulridge Saint Michael And All Angels Cofe Voluntary Aided Primary School | Voluntary Aided School | Good | 1.12 KM |
| Sacred Heart Roman Catholic Primary School, Colne | Voluntary Aided School | Good | 1.45 KM |
| Colne Park High School | Academy Converter | 2.46 KM | |
| Colne Children'S Centre | Children's Centre | 2.47 KM | |
| Colne Lord Street School | Academy Converter | 2.54 KM |
Images
Nearby Streets
| Name | Average Price | Average Sqft | Distance |
|---|---|---|---|
| Robinson Street | £ 79,950 | 0 | 0.00 KM |
| Rowan Close | £ 350,000 | 0 | 0.00 KM |
| Meadow Close | £ 250,000 | 0 | 0.00 KM |
| Lynwood Close | £ 539,000 | 0 | 0.00 KM |
| Butterfield Road | £ 0 | 0 | 0.00 KM |
Nearby Transport
| Name | NLC | TLC | Distance |
|---|---|---|---|
| Colne | 2562 | CNE | 2.89 KM |
| Nelson | 2565 | NEL | 6.71 KM |
| Brierfield | 2554 | BRF | 9.38 KM |
Nearby Listings
| Address | Price | Type | Score | Distance |
|---|---|---|---|---|
| Mile End Close, Foulridge | £ 449,950 | BUY | 7 / 10 | 0.00 KM |
| Mile End Close, Foulridge | £ 369,950 | BUY | Unknown | 0.03 KM |
| Mile End Close, Foulridge, BB8 | £ 425,000 | BUY | 7 / 10 | 0.06 KM |
| Mile End Close, Stockport, SK2 | £ 575,000 | BUY | 5 / 10 | 0.07 KM |
| Mile End Close, Stockport, SK2 | £ 435,000 | BUY | 6 / 10 | 0.08 KM |
Nearby Properties
| Address | Price | Distance |
|---|---|---|
| 3 Mile End Close | £ 140,000 | 0.06 KM |
| 1 Mile End Close | £ 44,000 | 0.06 KM |
| 15 Mile End Close | £ 245,000 | 0.06 KM |
| 5 Mile End Close | £ 249,950 | 0.06 KM |
| 9 Mile End Close | £ 175,000 | 0.06 KM |