mile... says ..
Welcome to Odessa Road; large three bedroom first floor apartment
Property Oracle says ..
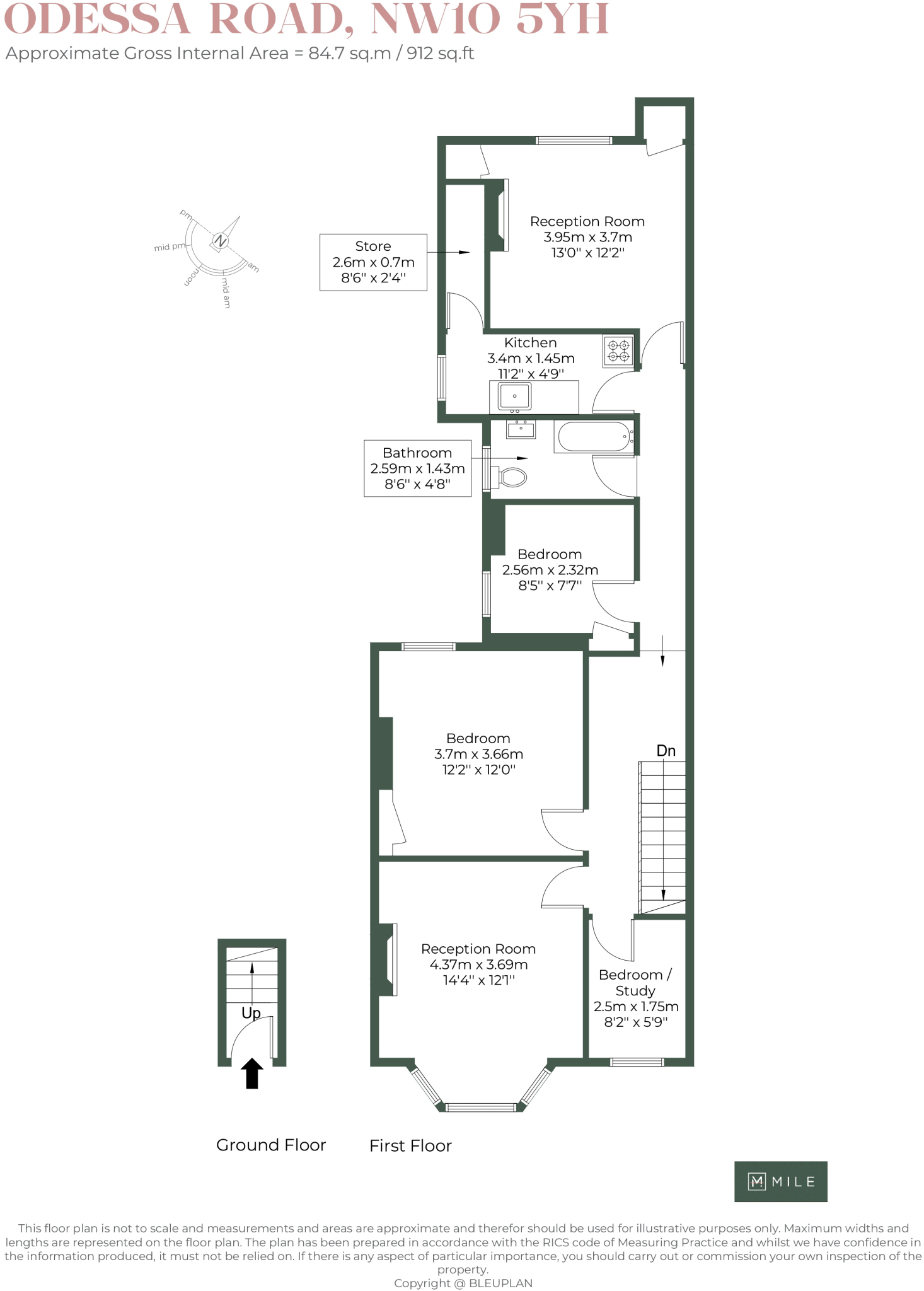
This three-bedroom flat on Odessa Road, Kensal Green, is located in a generally desirable area of North West London. The property’s proximity to Willesden Junction and Kensal Green stations offers convenient access to public transportation. Nearby schools such as Furness Primary School and Newman Catholic College are rated ‘Good’ by Ofsted, making the location attractive to families. The property itself, as shown in the photos, is in a reasonably good, clean condition though some modernising would likely improve its appeal and value. The interior is habitable but could benefit from updates to the decor and flooring. A notable drawback is the apparent lack of any external space such as a garden. The price of £550,000 appears to be within the range of similar properties in the area, although the absence of detailed square footage data for comparison properties hinders a precise valuation. Overall, this property presents a reasonable opportunity for buyers seeking a conveniently located three-bedroom flat in a well-established neighbourhood, though potential buyers should factor in the cost of modernizing and the lack of a garden.
Therefore, we give this property 5 / 10. *Disclaimer: This is our option and does constitute a recommendation or financial advice. Do your own research. *
- Price
- 7
- Condition
- 6
- Location
- 7
- Land
- 1
- Bedrooms
- 3
- Bathrooms
- 1
- Sqft (est)
- 911.70
The heatmap indicates the level of crime in the area. The color of the heatmap indicates the crime severity and recency.
Metrics Year-on-Year
- Average area value
- 745,000.00 £Decreased by 11.71 %
- Est sale value
- 697,450.50 £Decreased by 15.09 %
- Average area rental value
- 2,378.00 £/moIncreased by 14.49 %
- Est letting value
- 1,823.40 £/moUnchanged by 0.00 %
- Est rental Yield
- 3.83 %Increased by 29.83 %
- Crime Rate
- 3.00 %Unchanged by 0.00 %
Agent Activity
mile... created the listing.
Nearby Schools
| Name | Type | Ofsted | Distance |
|---|---|---|---|
| Furness Primary School | Academy Converter | Good | 0.15 KM |
| Kenmont Primary School | Community School | Good | 0.34 KM |
| Newman Catholic College | Voluntary Aided School | Good | 0.45 KM |
| Roundwood School And Community Centre | Free Schools Alternative Provision | 0.62 KM | |
| Capital City Academy | Academy Sponsor Led | Good | 0.64 KM |
Images
Nearby Streets
| Name | Average Price | Average Sqft | Distance |
|---|---|---|---|
| Wrottesley Road | £ 0 | 0 | 0.00 KM |
| Wrottesley Road | £ 0 | 0 | 0.00 KM |
| Wrottesley Road | £ 0 | 0 | 0.00 KM |
| Wrottesley Road | £ 0 | 0 | 0.00 KM |
| Wrottesley Road | £ 0 | 0 | 0.00 KM |
Nearby Transport
| Name | NLC | TLC | Distance |
|---|---|---|---|
| Willesden Junction | 1457 | WIJ | 0.81 KM |
| Kensal Green | 1447 | KNL | 1.42 KM |
| Kensal Rise | 1448 | KNR | 1.93 KM |
| Harlesden | 1521 | HDN | 2.25 KM |
| Brondesbury Park | 1438 | BSP | 3.11 KM |
Nearby Listings
| Address | Price | Type | Score | Distance |
|---|---|---|---|---|
| Odessa Road, London | £ 550,000 | BUY | 5 / 10 | 0.00 KM |
| Furness Road, Willesden Junction, NW10 4QG | £ 590,000 | BUY | 8 / 10 | 0.06 KM |
| Furness Road, NW10 | £ 650,000 | BUY | 7 / 10 | 0.06 KM |
| Palermo Road, Kensal Green, NW10 | £ 1,225,000 | BUY | 8 / 10 | 0.06 KM |
| Furness Road, Kensal Rise, London, NW10 | £ 695,000 | BUY | 7 / 10 | 0.07 KM |
Nearby Properties
| Address | Price | Distance |
|---|---|---|
| 4a Odessa Road | £ 581,100 | 0.00 KM |
| 6a Odessa Road | £ 124,000 | 0.00 KM |
| 6 Odessa Road | £ 4,042 | 0.00 KM |
| 10 Odessa Road | £ 585,000 | 0.00 KM |
| 2a Odessa Road | £ 600,000 | 0.00 KM |