TA
Larkhill Road, Wollaston, Stourbridge, DY8 3LN
By Taylors Estate Agents
£ 279,950
Reviews
3 out of 5 stars
Taylors Estate Agents says ..
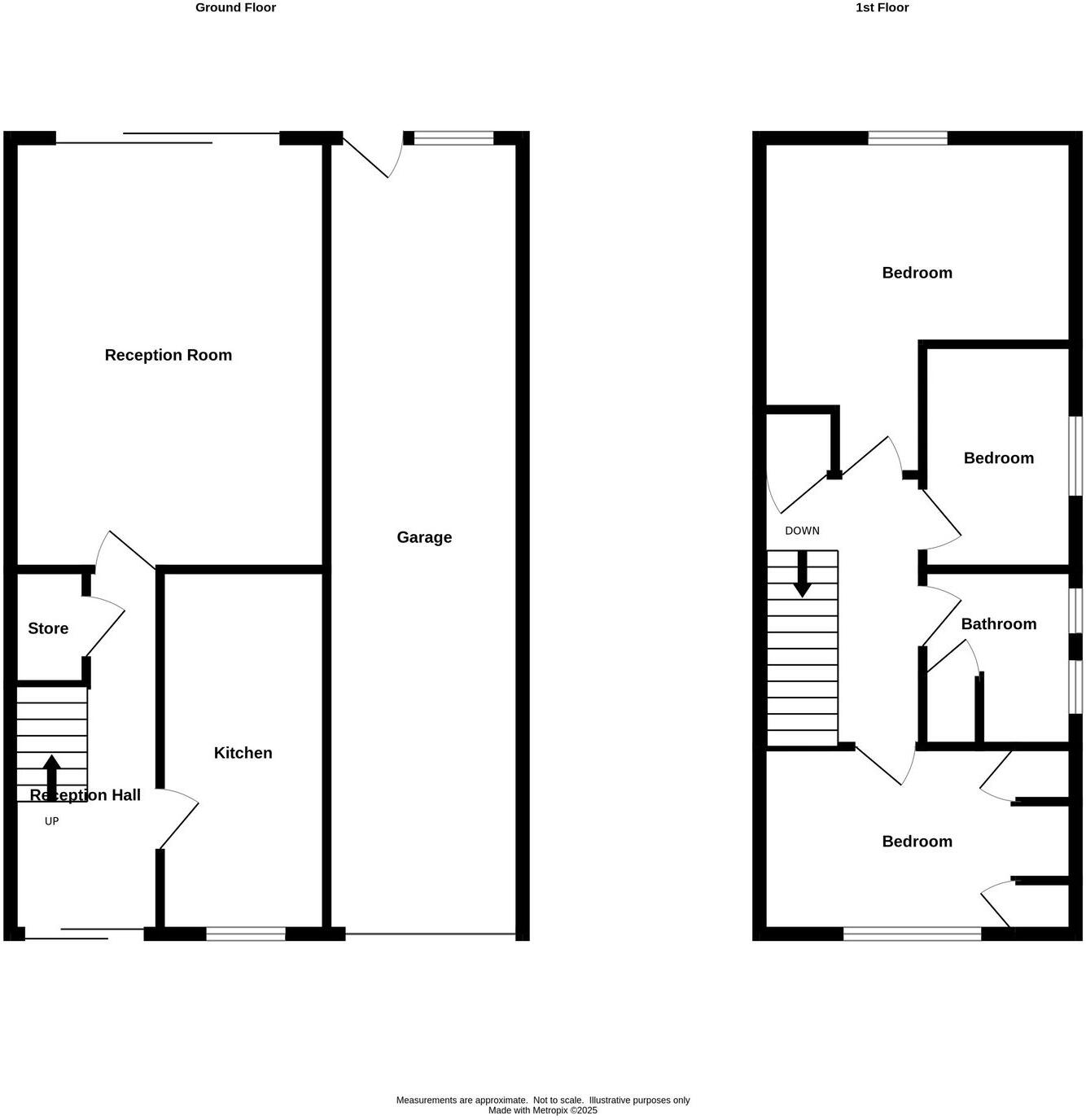
Occupying a position within this now established and desirable address, and having popular schools within easy reach, this most appealing three-bedroom semi-detached family home is strongly recommended by the selling agents for an early viewing.
Property Oracle says ..
Therefore, we give this property 7 / 10. *Disclaimer: This is our option and does constitute a recommendation or financial advice. Do your own research. *
- Price
- 8
- Condition
- 7
- Location
- 8
- Land
- 7
- Bedrooms
- 3
- Bathrooms
- 1
- Sqft (est)
- 1,219.00
The heatmap indicates the level of crime in the area. The color of the heatmap indicates the crime severity and recency.
Metrics Year-on-Year
- Average area value
- 380,500.00 £Decreased by 7.95 %
- Est sale value
- 371,795.00 £Increased by 0.66 %
- Average area rental value
- 1,550.00 £/moIncreased by 31.91 %
- Est letting value
- 1,219.00 £/mo
- Est rental Yield
- 4.89 %Increased by 43.40 %
- Crime Rate
- 4.00 %Unchanged by 0.00 %
from 413,363.00 £
from 369,357.00 £
from 1,175.00 £/mo
from 0.00 £/mo
from 3.41 %
from 4.00 %
Agent Activity
Taylors Estate Agents created the listing.
Nearby Schools
| Name | Type | Ofsted | Distance |
|---|---|---|---|
| The Ridge Primary School | Community School | Good | 0.46 KM |
| Ridgewood High School | Academy Converter | Requires improvement | 0.69 KM |
| Gig Mill Primary School | Community School | Good | 1.00 KM |
| St James'S Cofe Primary School | Voluntary Aided School | Good | 1.58 KM |
| Stourbridge Children'S Centre | Children's Centre | 2.03 KM |
Images
Nearby Streets
| Name | Average Price | Average Sqft | Distance |
|---|---|---|---|
| Marston Close | £ 290,000 | 0 | 0.00 KM |
| Francis Road | £ 249,950 | 0 | 0.00 KM |
| Kingfisher Drive | £ 325,000 | 0 | 0.00 KM |
| Whitmore Road | £ 0 | 0 | 0.00 KM |
| Highpark Avenue | £ 0 | 0 | 0.00 KM |
Nearby Transport
| Name | NLC | TLC | Distance |
|---|---|---|---|
| Stourbridge Town | 4643 | SBT | 3.27 KM |
| Stourbridge Junction | 4646 | SBJ | 4.16 KM |
| Hagley | 4577 | HAG | 4.30 KM |
| Blakedown | 4574 | BKD | 5.14 KM |
| Lye (West Midlands) | 4640 | LYE | 6.17 KM |
Nearby Listings
| Address | Price | Type | Score | Distance |
|---|---|---|---|---|
| Larkhill Road, Wollaston, Stourbridge, DY8 3LN | £ 279,950 | BUY | 7 / 10 | 0.00 KM |
| Larkhill Road, Stourbridge | £ 200,000 | BUY | 6 / 10 | 0.12 KM |
| Herondale Road, Stourbridge, DY8 | £ 335,000 | BUY | 6 / 10 | 0.12 KM |
| Finchfield Close, Stourbridge, West Midlands, DY8 | £ 250,000 | BUY | 6 / 10 | 0.14 KM |
| Orwell Close, Stourbridge | £ 395,000 | BUY | 6 / 10 | 0.17 KM |
Nearby Properties
| Address | Price | Distance |
|---|---|---|
| 46 Larkhill Road | £ 245,000 | 0.01 KM |
| 40 Larkhill Road | £ 137,000 | 0.01 KM |
| 55a Larkhill Road | £ 225,000 | 0.01 KM |
| 49 Larkhill Road | £ 180,000 | 0.01 KM |
| 52a Larkhill Road | £ 218,000 | 0.01 KM |