Sebert Road, London, E7
WI

Sebert Road, London, E7

By Wilkinson Estate Agents

£ 710,000

Wilkinson Estate Agents says ..

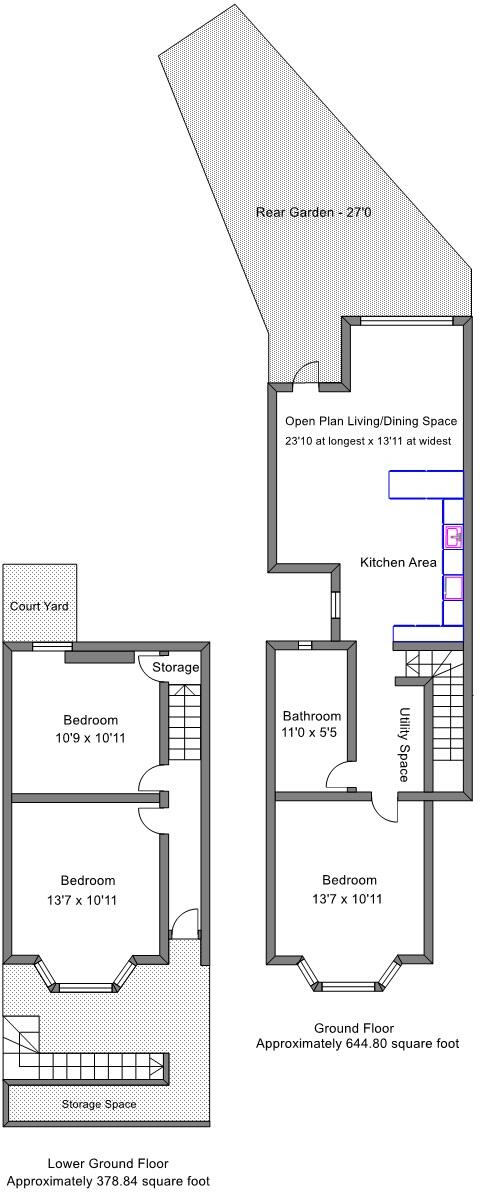
Situated in the sought-after Village Area of Forest Gate is this truly unique and highly renovated three-bedroom maisonette offering an exceptional standard of living.

Bedrooms
3
Bathrooms
1

The heatmap indicates the level of crime in the area. The color of the heatmap indicates the crime severity and recency.

Metrics Year-on-Year

Average area value
733,333.00 £
Increased by 49.34 %
from 491,063.00 £
Average area rental value
1,836.00 £/mo
Decreased by 10.92 %
from 2,061.00 £/mo
Est rental Yield
3.00 %
Decreased by 40.48 %
from 5.04 %
Crime Rate
5.00 %
Unchanged by 0.00 %
from 5.00 %

Agent Activity

  • Wilkinson Estate Agents created the listing.

Nearby Schools

NameTypeOfstedDistance
Zakariya Primary SchoolOther Independent SchoolRequires improvement0.45 KM
Godwin Junior SchoolCommunity SchoolGood0.55 KM
Sandringham Primary SchoolCommunity SchoolOutstanding0.56 KM
Woodgrange Infant SchoolCommunity SchoolGood0.62 KM
Kay Rowe Children'S CentreChildren's Centre0.78 KM

Images

Ground Floor Bedroom Ground Floor Bedroom Ground Floor Bedroom Ground Floor Bedroom Ground Floor Bedroom Stairs To Ground Flo Bedroom (Front) Bedroom (Front) Bedroom (Front) Living/Kitchen Diner Hallway Hallway Hallway Living/Kitchen Diner Living/Kitchen Diner Living/Kitchen Diner Living/Kitchen Diner Living/Kitchen Diner Living/Kitchen Diner Living/Kitchen Diner Rear Garden Living/Kitchen Diner Living/Kitchen Diner Living/Kitchen Diner Living/Kitchen Diner Luxury Bathroom Luxury Bathroom Luxury Bathroom Luxury Bathroom Luxury Bathroom Luxury Bathroom Bedroom (Front) Bedroom (Back) Rear Garden Main Main

Nearby Streets

NameAverage PriceAverage SqftDistance
Balmoral Road £ 220,00000.00 KM
Balmoral Road £ 000.00 KM
Richmond Road £ 297,50000.00 KM
Westbury Road £ 253,33300.00 KM
The Chase £ 350,00000.00 KM

Nearby Transport

NameNLCTLCDistance
Wanstead Park7408WNP0.92 KM
Woodgrange Park7467WGR1.12 KM
Forest Gate6876FOG1.15 KM
Manor Park6883MNP1.31 KM
Leytonstone High Road7403LER3.19 KM

Nearby Listings

AddressPriceTypeScoreDistance
Sebert Road, London, E7 £ 425,000BUY8 / 100.00 KM
Sebert Road, Forest Gate £ 650,000BUY8 / 100.00 KM
Tylney Road, Forest Gate £ 800,000BUY7 / 100.10 KM
Tylney Road, London, E7 £ 575,000BUY6 / 100.13 KM
Tylney Road, London, E7 £ 695,000BUY7 / 100.13 KM

Nearby Properties

AddressPriceDistance
218 Sebert Road £ 300,0000.00 KM
230 Sebert Road £ 173,0000.00 KM
230a Sebert Road £ 200,0000.00 KM
192 Sebert Road £ 625,0000.00 KM
206a Sebert Road £ 379,0000.00 KM