Cheffins Residential says ..
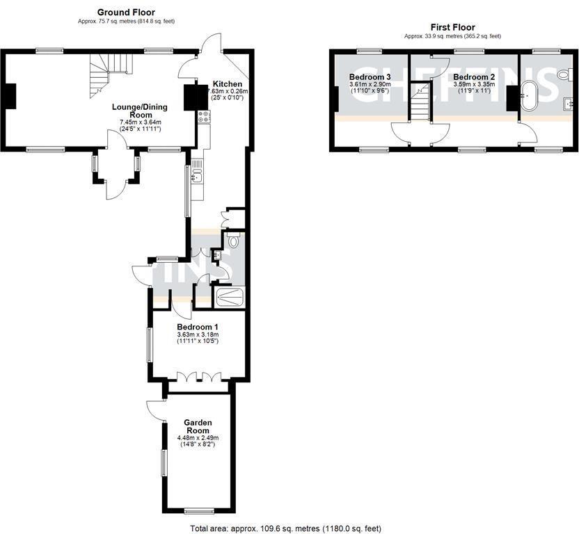
Cheffins are delighted to offer to the market this detached extended cottage, situated close to the centre of the City of Ely. The property comprises of lounge/dining room, kitchen, ground floor bedroom and shower room, 2 further bedrooms on the first floor, one having an ensuite bathroom. Out...
Property Oracle says ..
Therefore, we give this property 5 / 10. *Disclaimer: This is our option and does constitute a recommendation or financial advice. Do your own research. *
- Price
- 3
- Condition
- 4
- Location
- 7
- Land
- 6
- Bedrooms
- 3
- Bathrooms
- 2
- Sqft (est)
- 799.76
The heatmap indicates the level of crime in the area. The color of the heatmap indicates the crime severity and recency.
Metrics Year-on-Year
- Average area value
- 406,874.00 £Increased by 12.82 %
- Est sale value
- 123,163.04 £Decreased by 66.00 %
- Average area rental value
- 1,074.00 £/moDecreased by 24.53 %
- Est letting value
- 0.00 £/moDecreased by 100.00 %
- Est rental Yield
- 3.17 %Decreased by 32.98 %
- Crime Rate
- 4.00 %Unchanged by 0.00 %
from 360,635.00 £
from 362,291.28 £
from 1,423.00 £/mo
from 799.76 £/mo
from 4.73 %
from 4.00 %
Agent Activity
Cheffins Residential created the listing.
Nearby Schools
| Name | Type | Ofsted | Distance |
|---|---|---|---|
| Spring Meadow Infant School | Community School | Requires improvement | 0.89 KM |
| Ely St Mary'S Cofe Junior School | Academy Converter | Good | 1.02 KM |
| Ely Child And Family Centre | Children's Centre | 1.02 KM | |
| King'S Ely | Other Independent School | 1.10 KM | |
| Isle Of Ely Primary School | Academy Sponsor Led | Good | 1.10 KM |
Images
Nearby Streets
| Name | Average Price | Average Sqft | Distance |
|---|---|---|---|
| Beech Lane | £ 400,000 | 0 | 0.00 KM |
| Archery Crescent | £ 0 | 0 | 0.00 KM |
| Bell Holt | £ 0 | 0 | 0.00 KM |
| Hereward Way | £ 0 | 0 | 0.00 KM |
| Bishop Wynn Close | £ 0 | 0 | 0.00 KM |
Nearby Transport
| Name | NLC | TLC | Distance |
|---|---|---|---|
| Ely | 7068 | ELY | 1.31 KM |
| Littleport | 7072 | LTP | 8.42 KM |
Nearby Listings
| Address | Price | Type | Score | Distance |
|---|---|---|---|---|
| New Barns Road, Ely | £ 400,000 | BUY | 5 / 10 | 0.00 KM |
| Bohemond Street, Ely | £ 340,000 | BUY | 7 / 10 | 0.06 KM |
| Prickwillow Road, Ely, Cambridgeshire, CB7 | £ 350,000 | BUY | 5 / 10 | 0.12 KM |
| Crauden Gardens, Ely | £ 425,000 | BUY | Unknown | 0.12 KM |
| Crauden Gardens, Ely, Cambridgeshire | £ 400,000 | BUY | 7 / 10 | 0.12 KM |
Nearby Properties
| Address | Price | Distance |
|---|---|---|
| 1 Bohemond Street | £ 317,000 | 0.04 KM |
| 17 Bohemond Street | £ 395,000 | 0.04 KM |
| 20 Bohemond Street | £ 158,250 | 0.04 KM |
| 9 Bohemond Street | £ 117,500 | 0.07 KM |
| 18 Bohemond Street | £ 247,500 | 0.07 KM |