Silverdale Road, Yealand Redmayne, LA5
By Waterhouse Estate Agents
£ 565,000
Reviews
3 out of 5 stars
Waterhouse Estate Agents says ..
Introducing 'Smithy Cottage', a superb three bedroom property boasting an abundance of character and charm, surrounded by well loved gardens and offered with no onward chain
Property Oracle says ..
Smithy Cottage is a charming period property located in the picturesque village of Yealand Redmayne. The house features traditional elements such as exposed beams, stone walls, and wooden floors, which add to its character. The property is in good condition and benefits from a well-maintained garden and a modern kitchen and bathrooms. The location is ideal for those seeking a rural lifestyle, with easy access to the Arnside and Silverdale Area of Outstanding Natural Beauty. While the price is slightly above the average for the area, the property’s size, condition, and location make it a desirable family home.
Therefore, we give this property 7 / 10. *Disclaimer: This is our option and does constitute a recommendation or financial advice. Do your own research. *
- Price
- 6
- Condition
- 8
- Location
- 7
- Land
- 8
- Bedrooms
- 3
- Bathrooms
- 2
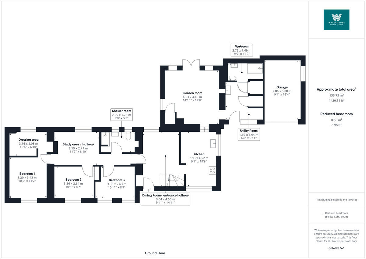
- Sqft (est)
- 1,439.46
The heatmap indicates the level of crime in the area. The color of the heatmap indicates the crime severity and recency.
Metrics Year-on-Year
- Average area value
- 419,000.00 £Increased by 9.74 %
- Est sale value
- 597,375.90 £Increased by 2.22 %
- Average area rental value
- 1,467.00 £/moDecreased by 6.50 %
- Est letting value
- 1,439.46 £/moUnchanged by 0.00 %
- Est rental Yield
- 4.20 %Decreased by 14.81 %
- Crime Rate
- 13.00 %Unchanged by 0.00 %
Agent Activity
Waterhouse Estate Agents created the listing.
Nearby Schools
| Name | Type | Ofsted | Distance |
|---|---|---|---|
| Yealand Church Of England Primary School | Voluntary Aided School | Good | 0.33 KM |
| Prospect House | Other Independent School | Good | 0.87 KM |
| Warton Archbishop Hutton'S Vc Primary School | Voluntary Controlled School | Good | 3.12 KM |
| Beetham Cofe Primary School | Voluntary Aided School | Good | 3.97 KM |
| Carnforth Christ Church, Church Of England, Voluntary Aided Primary School | Voluntary Aided School | Good | 5.00 KM |
Images
Nearby Streets
| Name | Average Price | Average Sqft | Distance |
|---|---|---|---|
| Silverdale Road | £ 280,000 | 0 | 0.00 KM |
| Roseacre Lane | £ 975,000 | 0 | 0.00 KM |
| Hyning Road | £ 0 | 0 | 0.00 KM |
| Thrang Brow Lane | £ 103,250 | 0 | 0.00 KM |
Nearby Transport
| Name | NLC | TLC | Distance |
|---|---|---|---|
| Silverdale | 1968 | SVR | 4.43 KM |
| Carnforth | 2640 | CNF | 4.84 KM |
| Arnside | 1963 | ARN | 7.86 KM |
Nearby Listings
| Address | Price | Type | Score | Distance |
|---|---|---|---|---|
| Silverdale Road, Yealand Redmayne, LA5 | £ 565,000 | BUY | 7 / 10 | 0.00 KM |
| Cherry Tree Cottage, 43 Silverdale Road, Yealand Redmayne, LA5 9TA | £ 695,000 | BUY | 8 / 10 | 0.39 KM |
| 32 Silverdale Road, Yealand Redmayne, LA5 9TB | £ 450,000 | BUY | 6 / 10 | 0.53 KM |
| Yealand Road, Yealand Conyers, Carnforth, Lancashire | £ 675,000 | BUY | 7 / 10 | 0.72 KM |
| Yealand Road, Yealand Conyers, Carnforth, Lancashire | £ 575,000 | BUY | 6 / 10 | 0.76 KM |
Nearby Properties
| Address | Price | Distance |
|---|---|---|
| 19 The Meadows | £ 164,000 | 0.14 KM |
| 13 The Meadows | £ 168,000 | 0.14 KM |
| 10 The Meadows | £ 169,000 | 0.14 KM |
| 5 The Meadows | £ 55,000 | 0.14 KM |
| 16 The Meadows | £ 165,000 | 0.14 KM |