Jacobs Steel says ..
We are delighted to offer for sale this opportunity to acquire this rarely available spacious extended four bedroom two bathroom semi detached Victorian family home built in 1898, situated in this popular Southwick Green location.
Property Oracle says ..
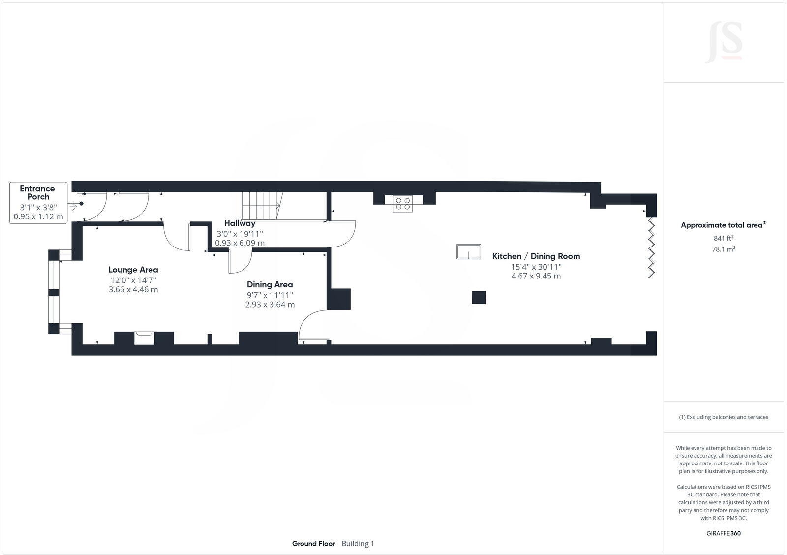
This property is located on Victoria Road in Southwick, West Sussex. The area benefits from nearby schools such as Shoreham Academy (Outstanding Ofsted rating) and several primary schools. Southwick railway station is also within walking distance, providing convenient access to Brighton and other locations. The house itself appears to be well-maintained and recently renovated, with a modern kitchen and extension. The images show a good-sized garden with patio area and additional outbuildings. While the average price per sqft in the area is £498, the listed price of £750,000 may be slightly higher than average depending on the actual sqft of the property. More information on the size would be needed to give a more definitive opinion on the price.
Therefore, we give this property 8 / 10. *Disclaimer: This is our option and does constitute a recommendation or financial advice. Do your own research. *
- Price
- 7
- Condition
- 9
- Location
- 9
- Land
- 8
- Bedrooms
- 4
- Bathrooms
- 2
- Sqft (est)
- 1,663.02
The heatmap indicates the level of crime in the area. The color of the heatmap indicates the crime severity and recency.
Metrics Year-on-Year
- Average area value
- 830,864.00 £Increased by 21.56 %
- Est sale value
- 1,473,435.72 £Increased by 57.65 %
- Average area rental value
- 1,899.00 £/moIncreased by 17.22 %
- Est letting value
- 3,326.04 £/moIncreased by 100.00 %
- Est rental Yield
- 2.74 %Decreased by 3.52 %
- Crime Rate
- 5.00 %Unchanged by 0.00 %
Agent Activity
Jacobs Steel created the listing.
Nearby Schools
| Name | Type | Ofsted | Distance |
|---|---|---|---|
| Glebe Primary School | Community School | Requires improvement | 0.28 KM |
| Shoreham College | Other Independent School | 0.60 KM | |
| Shoreham Academy | Academy Sponsor Led | Outstanding | 0.65 KM |
| Holmbush Primary Academy | Academy Converter | Good | 1.36 KM |
| Herons Dale School | Community Special School | Good | 1.38 KM |
Images
Nearby Streets
| Name | Average Price | Average Sqft | Distance |
|---|---|---|---|
| Grange Road | £ 0 | 0 | 0.00 KM |
| Spring Gardens | £ 185,000 | 0 | 0.00 KM |
| Amelia Close | £ 0 | 0 | 0.00 KM |
| Clarendon Road | £ 337,475 | 0 | 0.00 KM |
| Kent Close | £ 0 | 0 | 0.00 KM |
Nearby Transport
| Name | NLC | TLC | Distance |
|---|---|---|---|
| Southwick | 5286 | SWK | 0.59 KM |
| Fishersgate | 5284 | FSG | 2.42 KM |
| Shoreham-By-Sea | 5277 | SSE | 3.37 KM |
| Portslade | 5276 | PLD | 3.98 KM |
| Aldrington | 5280 | AGT | 6.36 KM |
Nearby Listings
| Address | Price | Type | Score | Distance |
|---|---|---|---|---|
| Victoria Road, Southwick | £ 750,000 | BUY | 8 / 10 | 0.00 KM |
| Victoria Road, Southwick, Brighton, BN42 4DH | £ 575,000 | BUY | Unknown | 0.04 KM |
| Victoria Road, Southwick | £ 275,000 | BUY | 7 / 10 | 0.04 KM |
| Victoria Road, Southwick | £ 800,000 | BUY | 7 / 10 | 0.07 KM |
| Park Lane, Southwick, BN42 | £ 2,000,000 | BUY | Unknown | 0.11 KM |
Nearby Properties
| Address | Price | Distance |
|---|---|---|
| 38 Victoria Road | £ 330,000 | 0.04 KM |
| 32 Victoria Road | £ 720,000 | 0.04 KM |
| 24 Victoria Road | £ 375,000 | 0.04 KM |
| 34 Victoria Road | £ 354,500 | 0.04 KM |
| 28a Victoria Road | £ 139,000 | 0.04 KM |