JLL says ..
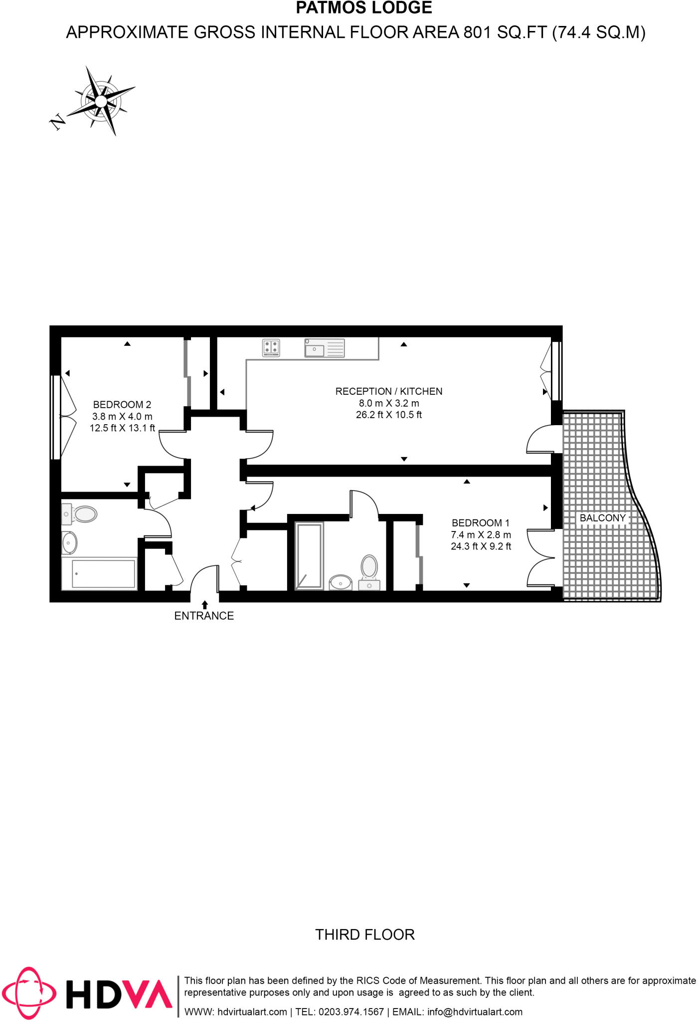
Two bedroom apartment | Private balcony | Third floor | 801 sq. ft. | Stamp duty contribution | Available to move in now
Property Oracle says ..
This is a modern 2-bedroom apartment in Vassall, Lambeth. The property is in excellent condition and benefits from a balcony. The property is located close to a number of schools and transport links. The property is slightly overpriced compared to other properties in the area.
Therefore, we give this property 7 / 10. *Disclaimer: This is our option and does constitute a recommendation or financial advice. Do your own research. *
- Price
- 7
- Condition
- 9
- Location
- 7
- Land
- 6
- Bedrooms
- 2
- Bathrooms
- 0
- Sqft (est)
- 63.00
The heatmap indicates the level of crime in the area. The color of the heatmap indicates the crime severity and recency.
Metrics Year-on-Year
- Average area value
- 603,750.00 £Decreased by 6.31 %
- Est sale value
- 33,012.00 £Decreased by 33.67 %
- Average area rental value
- 2,294.00 £/moIncreased by 2.69 %
- Est letting value
- 63.00 £/moDecreased by 50.00 %
- Est rental Yield
- 4.56 %Increased by 9.62 %
- Crime Rate
- 4.00 %Unchanged by 0.00 %
from 644,380.00 £
from 49,770.00 £
from 2,234.00 £/mo
from 126.00 £/mo
from 4.16 %
from 4.00 %
Agent Activity
JLL created the listing.
Nearby Schools
| Name | Type | Ofsted | Distance |
|---|---|---|---|
| Christ Church Primary Sw9 | Voluntary Aided School | Good | 0.06 KM |
| Van Gogh Primary | Academy Converter | 0.46 KM | |
| Liz Atkinson Children'S Centre | Children's Centre | 0.51 KM | |
| St John The Divine Church Of England Primary School | Voluntary Aided School | Good | 0.53 KM |
| Saint Gabriel'S College | Voluntary Aided School | Good | 0.62 KM |
Images
Nearby Streets
| Name | Average Price | Average Sqft | Distance |
|---|---|---|---|
| Lennox Road | £ 0 | 0 | 0.00 KM |
| Elliott Road | £ 0 | 0 | 0.00 KM |
| Cranmer Road | £ 825,000 | 0 | 0.00 KM |
| Cowley Mansions | £ 0 | 0 | 0.00 KM |
| Bolton Crescent | £ 515,000 | 0 | 0.00 KM |
Nearby Transport
| Name | NLC | TLC | Distance |
|---|---|---|---|
| Loughborough Junction | 5082 | LGJ | 1.33 KM |
| Brixton | 5081 | BRX | 1.65 KM |
| Vauxhall | 5597 | VXH | 1.95 KM |
| Elephant And Castle | 5246 | EPH | 2.18 KM |
| Denmark Hill | 5421 | DMK | 2.27 KM |
Nearby Listings
| Address | Price | Type | Score | Distance |
|---|---|---|---|---|
| Beam, Lambeth SW9 | £ 638,000 | BUY | Unknown | 0.00 KM |
| Patmos Lodge, Cancell Road, SW9 | £ 595,000 | BUY | 7 / 10 | 0.00 KM |
| Beam, Lambeth SW9 | £ 639,000 | BUY | 6 / 10 | 0.00 KM |
| Beam, Lambeth SW9 | £ 650,000 | BUY | 7 / 10 | 0.00 KM |
| Beam, Lambeth SW9 | £ 615,000 | BUY | 7 / 10 | 0.00 KM |
Nearby Properties
| Address | Price | Distance |
|---|---|---|
| 43 Cancell Road | £ 1,040,000 | 0.00 KM |
| 25 Cancell Road | £ 925,000 | 0.00 KM |
| 27 Cancell Road | £ 850,000 | 0.00 KM |
| 17 Cancell Road | £ 910,000 | 0.00 KM |
| 66 Vassall Road | £ 1,410,000 | 0.05 KM |