Percival Road, Eastbourne, East Sussex, BN22
By Angela Marden Estate Agents
£ 270,000
Reviews
3 out of 5 stars
Angela Marden Estate Agents says ..
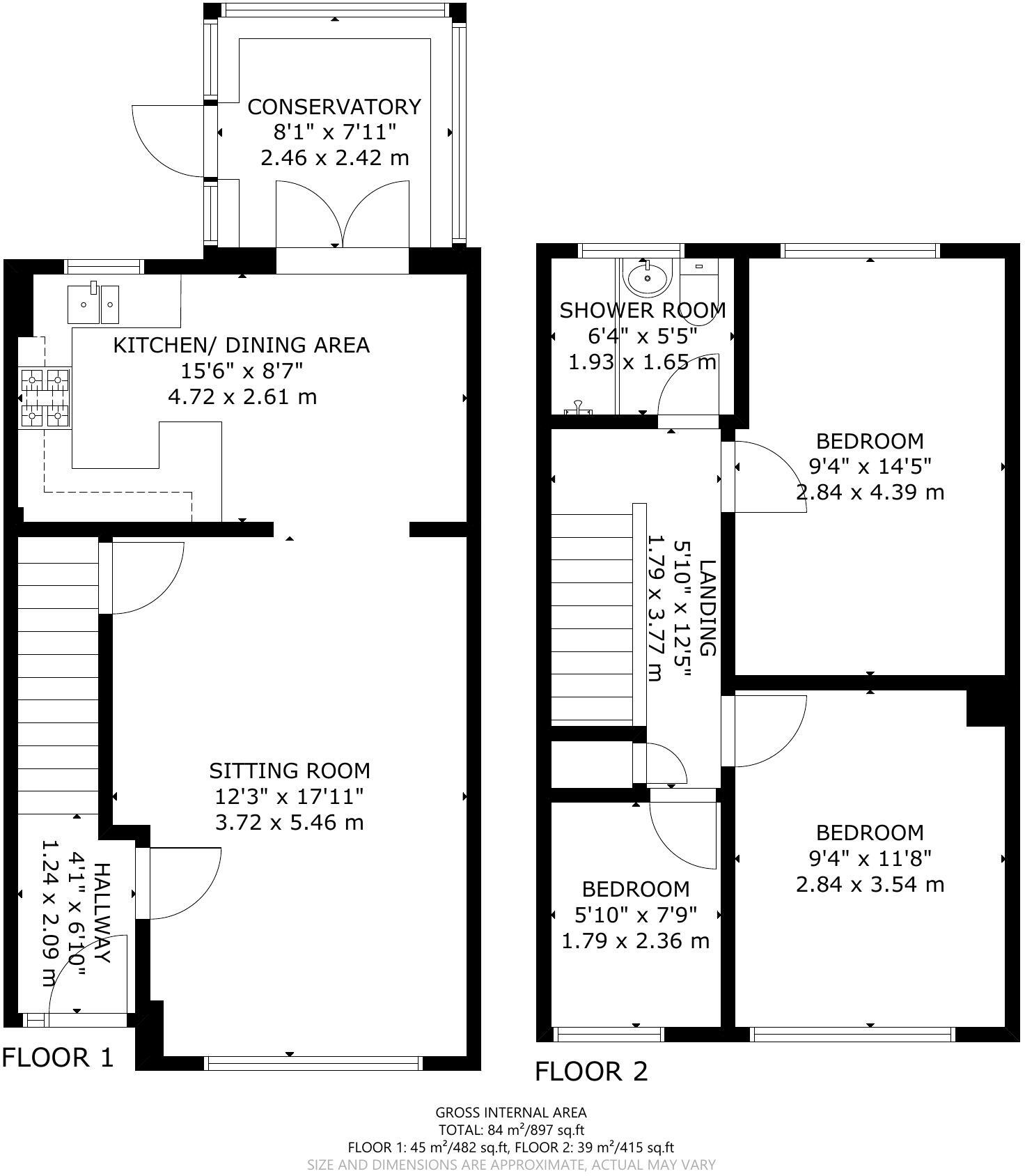
This fantastic house is ready and waiting for its new owners to move in, with bright and spacious accommodation on offer and having been recently refurbished with new carpets and newly painted inside, you won't be disappointed! The accommodation comprises on the ground floor, entrance ...
Property Oracle says ..
The property is a 3-bedroom terraced house located on Percival Road in Hampden Park, Eastbourne. The location benefits from being relatively close to Hampden Park train station (1.09km), providing convenient access to Eastbourne and other towns. Several schools are also within a reasonable distance, including College Central (0.62km) and Heron Park Primary Academy (0.86km). However, the provided data does not offer details on the quality of local shops or other amenities.
Based on the images, the property appears to be in good condition. The interior is presented in a clean and modern style, with recently fitted flooring and a contemporary kitchen. There is evidence of some modernisation, suggesting that significant renovation work is not needed. The garden is visible in the photos and appears to be of a modest size.
While the list price is £270,000, the average house price in the area is considerably higher at £556,862. The average price per square foot is £418.00, but the square footage of the subject property is not provided, preventing a precise comparison. However, considering the nearby comparable properties listed between £117,500 and £300,000, the list price of £270,000 seems to be at the higher end of the range for similar properties in the area. Further information on the property’s size would allow for a more detailed price analysis.
The property includes a conservatory, adding to its living space and potential value.
Therefore, we give this property 6 / 10. *Disclaimer: This is our option and does constitute a recommendation or financial advice. Do your own research. *
- Price
- 6
- Condition
- 8
- Location
- 7
- Land
- 6
- Bedrooms
- 3
- Bathrooms
- 0
The heatmap indicates the level of crime in the area. The color of the heatmap indicates the crime severity and recency.
Metrics Year-on-Year
- Average area value
- 318,317.00 £Decreased by 11.84 %
- Average area rental value
- 1,183.00 £/moDecreased by 9.00 %
- Est rental Yield
- 4.46 %Increased by 3.24 %
- Crime Rate
- 8.00 %Unchanged by 0.00 %
Agent Activity
Angela Marden Estate Agents created the listing.
Nearby Schools
| Name | Type | Ofsted | Distance |
|---|---|---|---|
| College Central | Academy Alternative Provision Converter | Good | 0.62 KM |
| Heron Park Primary Academy | Academy Sponsor Led | Requires improvement | 0.86 KM |
| The Turing School | Academy Sponsor Led | 1.13 KM | |
| The Eastbourne Academy | Academy Sponsor Led | Good | 1.37 KM |
| Parkland Junior School | Academy Converter | Good | 1.43 KM |
Images
Nearby Streets
| Name | Average Price | Average Sqft | Distance |
|---|---|---|---|
| The Paddock | £ 225,000 | 0 | 0.00 KM |
| Manor Road | £ 0 | 0 | 0.00 KM |
| Knoll Road | £ 0 | 0 | 0.00 KM |
| Brampton Road | £ 340,000 | 0 | 0.00 KM |
| Kennett Close | £ 0 | 0 | 0.00 KM |
Nearby Transport
| Name | NLC | TLC | Distance |
|---|---|---|---|
| Hampden Park (Sussex) | 5450 | HMD | 1.09 KM |
| Eastbourne | 5448 | EBN | 4.09 KM |
| Polegate | 5455 | PLG | 4.25 KM |
| Pevensey And Westham | 5461 | PEV | 5.02 KM |
| Pevensey Bay | 5462 | PEB | 7.02 KM |
Nearby Listings
| Address | Price | Type | Score | Distance |
|---|---|---|---|---|
| Percival Road, Eastbourne, East Sussex, BN22 | £ 270,000 | BUY | 6 / 10 | 0.00 KM |
| Percival Road, Eastbourne, East Sussex, BN22 | £ 300,000 | BUY | 7 / 10 | 0.00 KM |
| Attfield Walk, Eastbourne, East Sussex, BN22 | £ 250,000 | BUY | Unknown | 0.11 KM |
| Percival Road, Eastbourne | £ 290,000 | BUY | 5 / 10 | 0.14 KM |
| Winkney Road, Eastbourne | £ 249,950 | BUY | 6 / 10 | 0.14 KM |
Nearby Properties
| Address | Price | Distance |
|---|---|---|
| 217 Percival Road | £ 207,000 | 0.03 KM |
| 214 Percival Road | £ 125,000 | 0.03 KM |
| 215 Percival Road | £ 220,000 | 0.03 KM |
| 224 Percival Road | £ 243,000 | 0.03 KM |
| 201 Percival Road | £ 184,950 | 0.03 KM |