Avondale, Ash Vale, Surrey, GU12
By Bridges Estate Agents
£ 320,000
Reviews
3 out of 5 stars
Bridges Estate Agents says ..
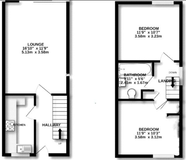
***NO ONWARD CHAIN*** Closely located to Ash Vale train station, as well as local amenities, is this spacious two double bedroom freehold house. The property downstairs boasts a light and airy living room/diner, with doors leading out into the garden and a kitchen with plenty of storage and work-...
Property Oracle says ..
This is a two-bedroom terraced house in Ash Vale, Surrey. The property is located near schools and transportation, making it a convenient location for families and commuters. The property has a garden, which is a desirable feature. The property appears to be in fair condition, but could benefit from some modernisation. The price is reasonable for the area and the size of the property.
Therefore, we give this property 6 / 10. *Disclaimer: This is our option and does constitute a recommendation or financial advice. Do your own research. *
- Price
- 7
- Condition
- 5
- Location
- 7
- Land
- 6
- Bedrooms
- 2
- Bathrooms
- 1
- Sqft (est)
- 485.71
The heatmap indicates the level of crime in the area. The color of the heatmap indicates the crime severity and recency.
Metrics Year-on-Year
- Average area value
- 325,000.00 £Increased by 41.85 %
- Est sale value
- 145,227.29 £Increased by 32.30 %
- Average area rental value
- 473.00 £/moDecreased by 55.08 %
- Est letting value
- 0.00 £/moDecreased by 100.00 %
- Est rental Yield
- 1.75 %Decreased by 68.30 %
- Crime Rate
- 18.00 %Unchanged by 0.00 %
Agent Activity
Bridges Estate Agents created the listing.
Nearby Schools
| Name | Type | Ofsted | Distance |
|---|---|---|---|
| Holly Lodge Primary Academy | Academy Converter | Good | 0.99 KM |
| Shawfield Primary School | Community School | Good | 1.75 KM |
| South Farnborough Infant School | Community School | Outstanding | 1.94 KM |
| Sycamore Children'S Centre | Children's Centre | 1.98 KM | |
| South Farnborough Junior School | Community School | Outstanding | 2.10 KM |
Images
Nearby Streets
| Name | Average Price | Average Sqft | Distance |
|---|---|---|---|
| Enterprise Estate | £ 0 | 0 | 0.00 KM |
| Newfield Road | £ 0 | 0 | 0.00 KM |
| Stirling Close | £ 475,000 | 0 | 0.00 KM |
| Denton Close | £ 0 | 0 | 0.00 KM |
| Station Approach | £ 238,333 | 0 | 0.00 KM |
Nearby Transport
| Name | NLC | TLC | Distance |
|---|---|---|---|
| Ash Vale | 5547 | AHV | 0.65 KM |
| North Camp | 5636 | NCM | 0.82 KM |
| Ash | 5641 | ASH | 2.74 KM |
| Farnborough North | 5688 | FNN | 4.01 KM |
| Farnborough (Main) | 5521 | FNB | 4.36 KM |
Nearby Listings
| Address | Price | Type | Score | Distance |
|---|---|---|---|---|
| Avondale, Ash Vale, Surrey, GU12 | £ 320,000 | BUY | 6 / 10 | 0.00 KM |
| Avondale, Ash Vale, Surrey, GU12 | £ 250,000 | BUY | 5 / 10 | 0.05 KM |
| Avondale, Ash Vale, Surrey, GU12 | £ 375,000 | BUY | 7 / 10 | 0.07 KM |
| Avondale, Ash Vale, Surrey, GU12 | £ 240,000 | BUY | 6 / 10 | 0.07 KM |
| Avondale, Ash Vale, Surrey, GU12 | £ 280,000 | BUY | 6 / 10 | 0.07 KM |
Nearby Properties
| Address | Price | Distance |
|---|---|---|
| 107 Avondale | £ 310,000 | 0.04 KM |
| 119 Avondale | £ 220,000 | 0.04 KM |
| 85 Avondale | £ 265,000 | 0.04 KM |
| 105 Avondale | £ 226,000 | 0.04 KM |
| 123 Avondale | £ 308,000 | 0.04 KM |