Buxton Road, Whaley Bridge, High Peak
By Gascoigne Halman
£ 235,000
Reviews
3 out of 5 stars
Gascoigne Halman says ..
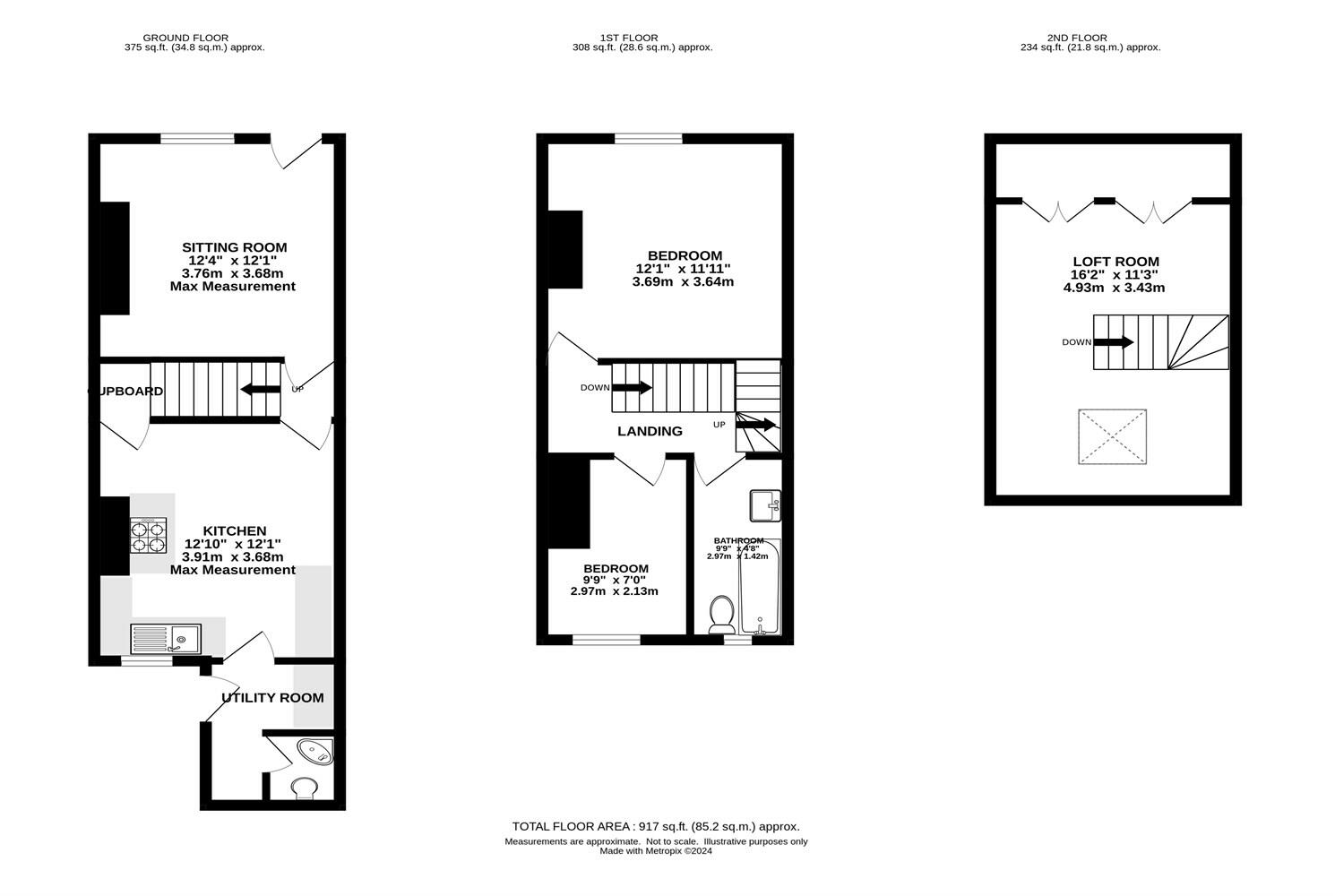
A garden fronted MID TERRACE HOME which has had the privilege of a RECENT MODERNISATION AND UPGRADE and represents a lovely home. Located well back from the road with a large front garden the property has a SITTING ROOM, NEWLY FITTED KITCHEN, Utility/WC, TWO BEDROOMS and LOFT CONVERSION. The loca...
Property Oracle says ..
This two-bedroom mid-terrace property in Whaley Bridge, Derbyshire, presents a mixed picture. The property has clearly benefitted from recent renovations to the kitchen and bathroom, giving these rooms a modern and appealing look. The kitchen is well-equipped and stylish. The bathroom is functional and modern. However, other areas of the house, such as the upstairs bedroom, show signs of needing finishing touches and potential repairs (visible in image of upstairs bedroom). The floors in some rooms display wear and tear. The exterior of the property is typical of the area. There is a small, manageable garden, which is a positive feature. The property’s location in Whaley Bridge is convenient, with a nearby train station and schools, suggesting ease of access to transport and education. However, the lack of detailed information on local amenities and the variation in prices for nearby properties make a definitive assessment challenging. The current listing price of £235,000 appears competitive for the area, particularly given the renovations completed. Potential buyers should be prepared for some minor work to fully complete the renovations and update older elements of the property to their personal tastes. Overall, the property could be an attractive purchase for a first-time buyer or investor seeking a property that requires minimal renovation but offers a convenient location.
Therefore, we give this property 6 / 10. *Disclaimer: This is our option and does constitute a recommendation or financial advice. Do your own research. *
- Price
- 7
- Condition
- 6
- Location
- 7
- Land
- 4
- Bedrooms
- 2
- Bathrooms
- 1
- Sqft (est)
- 917.00
The heatmap indicates the level of crime in the area. The color of the heatmap indicates the crime severity and recency.
Metrics Year-on-Year
- Average area value
- 334,167.00 £Increased by 24.23 %
- Est sale value
- 235,669.00 £Decreased by 19.44 %
- Average area rental value
- 1,252.00 £/moIncreased by 4.33 %
- Est letting value
- 0.00 £/moDecreased by 100.00 %
- Est rental Yield
- 4.50 %Decreased by 15.89 %
- Crime Rate
- 10.00 %Unchanged by 0.00 %
Agent Activity
Gascoigne Halman created the listing.
Nearby Schools
| Name | Type | Ofsted | Distance |
|---|---|---|---|
| Whaley Bridge Primary School | Community School | Requires improvement | 0.33 KM |
| Taxal And Fernilee Cofe Primary School | Voluntary Controlled School | Good | 0.69 KM |
| Buxworth Primary School | Community School | Good | 2.28 KM |
| Furness Vale Primary And Nursery School | Community School | Good | 2.71 KM |
| Kettleshulme St James Cofe (Va) Primary School | Voluntary Aided School | Good | 4.17 KM |
Images
Nearby Streets
| Name | Average Price | Average Sqft | Distance |
|---|---|---|---|
| Dale View | £ 602,500 | 0 | 0.00 KM |
| The Paddock | £ 235,000 | 0 | 0.00 KM |
| Manor Road | £ 0 | 0 | 0.00 KM |
| Vaughan Road | £ 0 | 0 | 0.00 KM |
| Foundry Lane | £ 0 | 0 | 0.00 KM |
Nearby Transport
| Name | NLC | TLC | Distance |
|---|---|---|---|
| Whaley Bridge | 2772 | WBR | 0.66 KM |
| Furness Vale | 2952 | FNV | 2.78 KM |
| Chinley | 2823 | CLY | 4.68 KM |
| New Mills Newtown | 2769 | NMN | 4.82 KM |
| New Mills Central | 2974 | NMC | 5.14 KM |
Nearby Listings
| Address | Price | Type | Score | Distance |
|---|---|---|---|---|
| Buxton Road, Whaley Bridge, High Peak | £ 235,000 | BUY | 6 / 10 | 0.00 KM |
| Old Road, Whaley Bridge, High Peak | £ 350,000 | BUY | 7 / 10 | 0.10 KM |
| Old Road, Whaley Bridge, High Peak, Derbyshire, SK23 | £ 525,000 | BUY | Unknown | 0.11 KM |
| Old Road, Whaley Bridge | £ 445,000 | BUY | 6 / 10 | 0.14 KM |
| Old Road, Whaley Bridge, High Peak | £ 335,000 | BUY | 7 / 10 | 0.14 KM |
Nearby Properties
| Address | Price | Distance |
|---|---|---|
| 16 Rock Bank | £ 102,000 | 0.09 KM |
| 20 Rock Bank | £ 299,950 | 0.09 KM |
| 6 Rock Bank | £ 250,000 | 0.09 KM |
| 12 Rock Bank | £ 340,000 | 0.09 KM |
| 15 Rock Bank | £ 250,000 | 0.10 KM |