Brennan Ayre O'Neill says ..
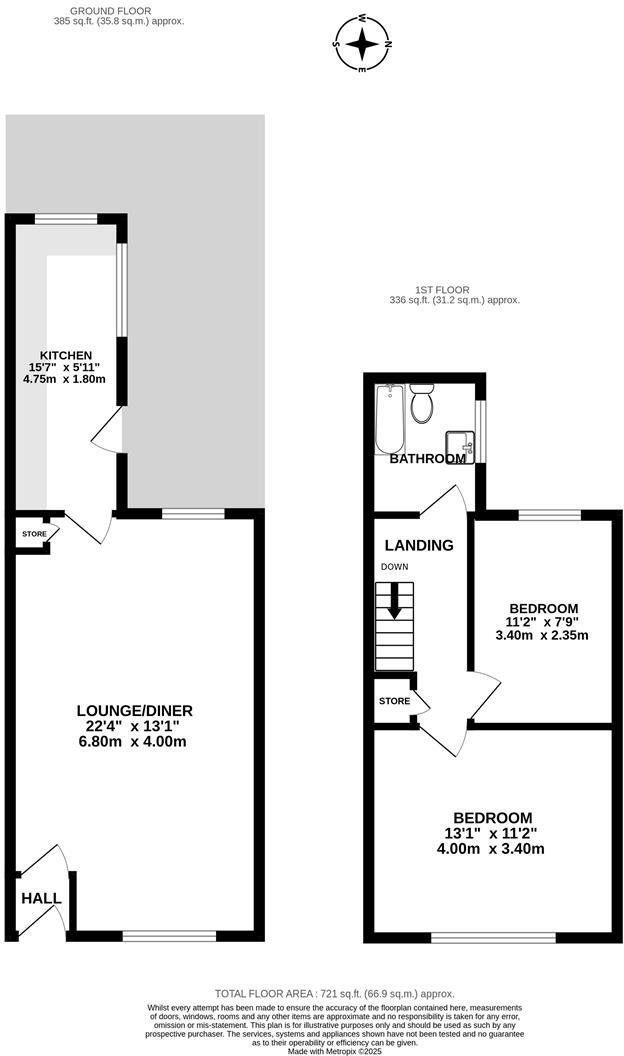
Prices Lane comprises a row of charming cottages to one half and bespoke town houses to the other. A a short, narrow road that runs within the very centre of the village. So whilst no car required for shopping and social outdoor entertainment, a parking space within a communal gated parking bay i...
Property Oracle says ..
Prices Lane, Oxton is located in a convenient area with nearby schools and transportation links. The property itself appears to be in reasonable condition, though the photos suggest it may benefit from some modernisation. While the property includes a small yard, it is not extensive. Considering the average price per square foot in the area and the condition of the property, the list price of £210,000 seems slightly below average for the area, potentially representing good value. However, the lack of square footage data prevents a more precise price-per-square-foot comparison. Further information on the property’s size and features would allow for a more comprehensive assessment.
Therefore, we give this property 5 / 10. *Disclaimer: This is our option and does constitute a recommendation or financial advice. Do your own research. *
- Price
- 7
- Condition
- 6
- Location
- 7
- Land
- 3
- Bedrooms
- 2
- Bathrooms
- 1
The heatmap indicates the level of crime in the area. The color of the heatmap indicates the crime severity and recency.
Metrics Year-on-Year
- Average area value
- 416,667.00 £Increased by 57.08 %
- Average area rental value
- 735.00 £/moDecreased by 0.41 %
- Est rental Yield
- 2.12 %Decreased by 36.53 %
- Crime Rate
- 5.00 %Unchanged by 0.00 %
Agent Activity
Brennan Ayre O'Neill created the listing.
Nearby Schools
| Name | Type | Ofsted | Distance |
|---|---|---|---|
| Prenton Preparatory School | Other Independent School | 0.36 KM | |
| St Joseph'S Catholic Primary School, Birkenhead | Academy Sponsor Led | 0.71 KM | |
| Woodchurch Road Primary School | Community School | Requires improvement | 0.75 KM |
| Birkenhead Park School | Academy Sponsor Led | Requires improvement | 0.97 KM |
| Oxton St Saviour'S Cofe Aided Primary School | Voluntary Aided School | Good | 0.98 KM |
Images
Nearby Streets
| Name | Average Price | Average Sqft | Distance |
|---|---|---|---|
| Victoria Lane | £ 0 | 0 | 0.00 KM |
| Columbia Lane | £ 850,000 | 0 | 0.00 KM |
| Dudley Close | £ 0 | 0 | 0.00 KM |
| Devonshire Close | £ 0 | 0 | 0.00 KM |
| Devonshire Road | £ 150,000 | 0 | 0.00 KM |
Nearby Transport
| Name | NLC | TLC | Distance |
|---|---|---|---|
| Birkenhead Park | 2220 | BKP | 1.76 KM |
| Birkenhead Central | 2217 | BKC | 2.50 KM |
| Conway Park | 3624 | CNP | 2.53 KM |
| Green Lane | 2218 | GNL | 2.88 KM |
| Birkenhead North | 2145 | BKN | 3.01 KM |
Nearby Listings
| Address | Price | Type | Score | Distance |
|---|---|---|---|---|
| Prices Lane, Oxton | £ 210,000 | BUY | 5 / 10 | 0.00 KM |
| Prices Lane, Prenton, Wirral | £ 200,000 | BUY | 6 / 10 | 0.01 KM |
| Claughton Firs, Oxton | £ 225,000 | BUY | 5 / 10 | 0.06 KM |
| Claughton Firs, Oxton, Wirral | £ 550,000 | BUY | 8 / 10 | 0.06 KM |
| Claughton Firs, Prenton, Wirral | £ 150,000 | BUY | 6 / 10 | 0.07 KM |
Nearby Properties
| Address | Price | Distance |
|---|---|---|
| 14 Prices Lane | £ 175,000 | 0.02 KM |
| 16 Prices Lane | £ 210,000 | 0.02 KM |
| 6 Prices Lane | £ 110,000 | 0.03 KM |
| 10 Prices Lane | £ 162,500 | 0.03 KM |
| 12 Prices Lane | £ 136,500 | 0.03 KM |