AN
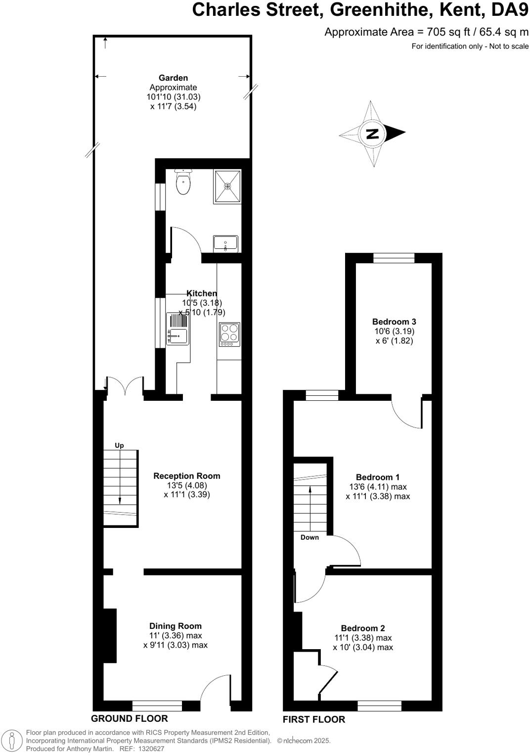
Charles Street, Greenhithe, Kent, DA9
By Anthony Martin
£ 330,000
Reviews
3 out of 5 stars
Anthony Martin says ..
A charming Victorian terraced home offering character, comfort, and modern convenience, ideally located on the ever-popular Charles Street in Greenhithe. This well-presented three-bedroom home is set over two floors and benefits from a thoughtful layout and a stylish finish throughout....
Property Oracle says ..
Therefore, we give this property 6 / 10. *Disclaimer: This is our option and does constitute a recommendation or financial advice. Do your own research. *
- Price
- 7
- Condition
- 6
- Location
- 7
- Land
- 7
- Bedrooms
- 3
- Bathrooms
- 1
- Sqft (est)
- 705.00
- Lot (est)
- 1,185.17
The heatmap indicates the level of crime in the area. The color of the heatmap indicates the crime severity and recency.
Metrics Year-on-Year
- Average area value
- 335,611.00 £Increased by 6.01 %
- Est sale value
- 332,760.00 £Increased by 36.42 %
- Average area rental value
- 1,744.00 £/moDecreased by 0.85 %
- Est letting value
- 1,410.00 £/moIncreased by 100.00 %
- Est rental Yield
- 6.24 %Decreased by 6.45 %
- Crime Rate
- 3.00 %Unchanged by 0.00 %
from 316,591.00 £
from 243,930.00 £
from 1,759.00 £/mo
from 705.00 £/mo
from 6.67 %
from 3.00 %
Agent Activity
Anthony Martin created the listing.
Nearby Schools
| Name | Type | Ofsted | Distance |
|---|---|---|---|
| Stone St Mary'S Cofe Primary School | Academy Converter | Good | 1.39 KM |
| Knockhall Primary School | Academy Sponsor Led | Requires improvement | 2.16 KM |
| Knockhall Children'S Centre | Children's Centre | 2.36 KM | |
| Stone Lodge School | Free Schools | 2.48 KM | |
| The Brent Primary School | Academy Converter | Outstanding | 2.78 KM |
Images
Nearby Streets
| Name | Average Price | Average Sqft | Distance |
|---|---|---|---|
| Church Road | £ 325,000 | 0 | 0.00 KM |
| Upper Church Hill | £ 0 | 0 | 0.00 KM |
| Orchard Terrace | £ 325,000 | 0 | 0.00 KM |
| Crossways Boulevard | £ 0 | 0 | 0.00 KM |
| Saint James Lane | £ 580,000 | 0 | 0.00 KM |
Nearby Transport
| Name | NLC | TLC | Distance |
|---|---|---|---|
| Stone Crossing | 5248 | SCG | 0.63 KM |
| Greenhithe For Bluewater | 5138 | GNH | 1.21 KM |
| Chafford Hundred | 7447 | CFH | 4.25 KM |
| Swanscombe | 5156 | SWM | 4.44 KM |
| Purfleet | 7453 | PFL | 4.86 KM |
Nearby Listings
| Address | Price | Type | Score | Distance |
|---|---|---|---|---|
| Charles Street, Greenhithe, Kent, DA9 | £ 330,000 | BUY | 6 / 10 | 0.00 KM |
| Charles Street, Greenhithe, Kent, DA9 | £ 325,000 | BUY | Unknown | 0.02 KM |
| Charles Street, Greenhithe, DA9 | £ 325,000 | BUY | Unknown | 0.03 KM |
| Charles Street, Greenhithe, Kent | £ 325,000 | BUY | 7 / 10 | 0.07 KM |
| Charles Street, Greenhithe, Kent, DA9 | £ 325,000 | BUY | 7 / 10 | 0.13 KM |
Nearby Properties
| Address | Price | Distance |
|---|---|---|
| 144 Charles Street | £ 31,350 | 0.01 KM |
| 110 Charles Street | £ 61,575 | 0.01 KM |
| 160 Charles Street | £ 145,000 | 0.01 KM |
| 156 Charles Street | £ 250,000 | 0.01 KM |
| 88 Charles Street | £ 95,000 | 0.01 KM |