Hamilton Bower says ..
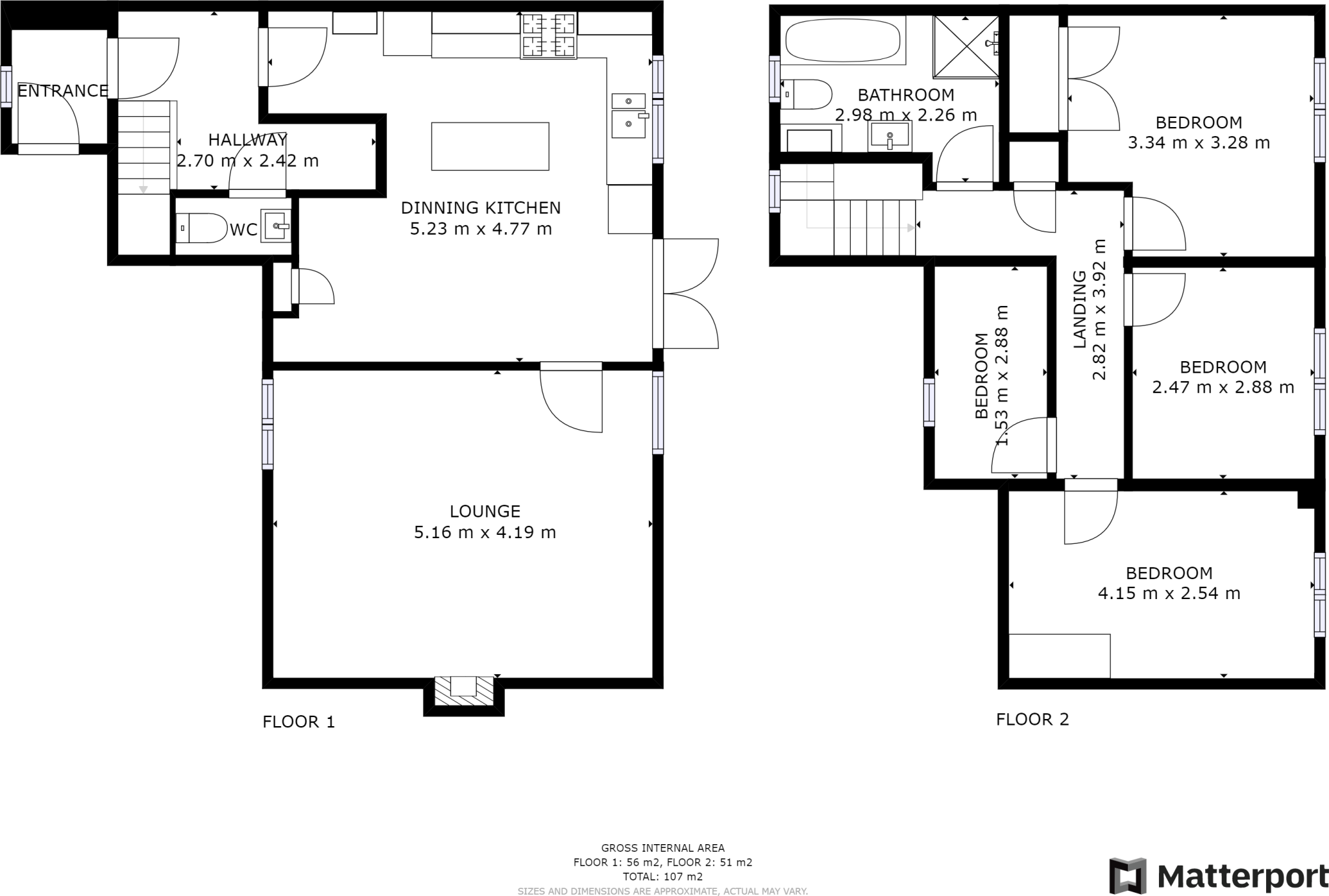
HAMILTON BOWER are pleased to offer FOR SALE this spacious and well-presented EXTENDED FOUR BEDROOM END TOWN HOUSE located on a quiet cul-de-sac development in Shelf, Halifax - HX3. With off-street parking for multiple cars, an open-plan dining kitchen, and within close proximity to local schools...
Property Oracle says ..
This four-bedroom end-terrace house in Shelf, Halifax is presented in excellent condition, having undergone a clear modernisation or refurbishment. The property boasts a modern and well-appointed kitchen, contemporary bathrooms, and tastefully decorated interiors. The inclusion of a garden, although seemingly not expansive, is a desirable feature. The listing highlights its proximity to well-regarded schools, which is a significant positive for families. The location offers a balance between a quieter residential area and accessibility to Halifax and other transport links. While specific price per square foot data is unavailable in the immediate vicinity, the listing price appears reasonable based on general market trends and the few comparable listings available in Shelf. A potential buyer should conduct independent research to confirm current market prices in the precise area to validate the price point. The property’s condition, combined with its proximity to schools and transportation, makes it a potentially attractive option for families or those seeking a modern, well-maintained home in a convenient location. However, it’s crucial to verify the size of the plot and conduct further local market research to ensure the listed price aligns with current market valuation for equivalent properties.
Therefore, we give this property 6 / 10. *Disclaimer: This is our option and does constitute a recommendation or financial advice. Do your own research. *
- Price
- 7
- Condition
- 9
- Location
- 7
- Land
- 4
- Bedrooms
- 4
- Bathrooms
- 1
- Sqft (est)
- 1,151.74
The heatmap indicates the level of crime in the area. The color of the heatmap indicates the crime severity and recency.
Metrics Year-on-Year
- Average area value
- 482,500.00 £Decreased by 52.31 %
- Est sale value
- 944,426.80 £Increased by 5.53 %
- Average area rental value
- 2,188.00 £/moIncreased by 5.19 %
- Est letting value
- 3,455.22 £/moIncreased by 200.00 %
- Est rental Yield
- 5.44 %Increased by 120.24 %
- Crime Rate
- 22.00 %Unchanged by 0.00 %
Agent Activity
Hamilton Bower created the listing.
Nearby Schools
| Name | Type | Ofsted | Distance |
|---|---|---|---|
| Shelf Junior And Infant School | Community School | Good | 0.46 KM |
| Northowram Primary School | Community School | Outstanding | 1.31 KM |
| Millcourt School | Other Independent Special School | 1.33 KM | |
| St Michael And All Angels Cofe Primary & Pre School | Foundation School | Good | 1.85 KM |
| Salterlee Primary School | Academy Converter | Good | 2.20 KM |
Images
Nearby Streets
| Name | Average Price | Average Sqft | Distance |
|---|---|---|---|
| Hartley Bank Lane | £ 0 | 0 | 0.00 KM |
| Aspen Grove | £ 535,000 | 0 | 0.00 KM |
| The Rise | £ 0 | 0 | 0.00 KM |
| Spruce Drive | £ 325,000 | 0 | 0.00 KM |
| Bowl Shaw Lane | £ 0 | 0 | 0.00 KM |
Nearby Transport
| Name | NLC | TLC | Distance |
|---|---|---|---|
| Halifax | 8411 | HFX | 4.50 KM |
| Brighouse | 8514 | BGH | 7.25 KM |
| Low Moor | 8416 | LMR | 7.66 KM |
| Bradford Interchange | 8345 | BDI | 9.43 KM |
| Bradford Forster Square | 8346 | BDQ | 9.48 KM |
Nearby Listings
| Address | Price | Type | Score | Distance |
|---|---|---|---|---|
| Cross Lane, Shelf, Halifax | £ 125,000 | BUY | Unknown | 0.02 KM |
| Cross Lane, Halifax | £ 250,000 | BUY | 7 / 10 | 0.02 KM |
| Cross Lane, Shelf, Halifax | £ 150,000 | BUY | Unknown | 0.02 KM |
| Cross Lane, Shelf, Halifax, West Yorkshire, HX3 | £ 150,000 | BUY | 7 / 10 | 0.04 KM |
| Hope Street, Shelf, Halifax | £ 170,000 | BUY | 5 / 10 | 0.05 KM |
Nearby Properties
| Address | Price | Distance |
|---|---|---|
| 5 Cross Lane | £ 60,000 | 0.01 KM |
| 1 Cross Lane | £ 162,000 | 0.01 KM |
| 23a Cross Lane | £ 100,000 | 0.01 KM |
| 14 Cross Lane | £ 130,000 | 0.01 KM |
| 16 Cross Lane | £ 127,500 | 0.01 KM |