KI
Western Road, Borough Green
By Kings Estate Agents
£ 435,000
Kings Estate Agents says ..
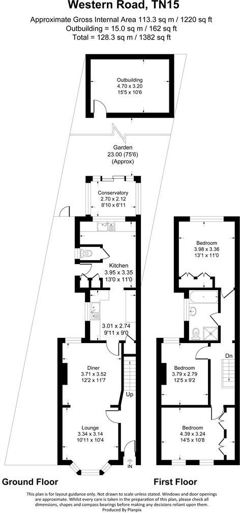
Offered chain free, is this extended Victorian end of terrace property located within the heart of Borough Green. This family home boasts lots of space and is a very short walk to the local amenities, bus stops and the train station.
- Bedrooms
- 3
- Bathrooms
- 1
The heatmap indicates the level of crime in the area. The color of the heatmap indicates the crime severity and recency.
Metrics Year-on-Year
- Average area value
- 573,333.00 £Increased by 4.59 %
- Average area rental value
- 2,650.00 £/moIncreased by 22.35 %
- Est rental Yield
- 5.55 %Increased by 17.09 %
- Crime Rate
- 98.00 %Unchanged by 0.00 %
from 548,161.00 £
from 2,166.00 £/mo
from 4.74 %
from 98.00 %
Agent Activity
Kings Estate Agents created the listing.
Nearby Schools
| Name | Type | Ofsted | Distance |
|---|---|---|---|
| Borough Green Primary School | Foundation School | Good | 0.48 KM |
| Grange Park School | Community Special School | Good | 0.94 KM |
| Wrotham School | Academy Converter | Good | 1.07 KM |
| St George'S Church Of England Voluntary Controlled Primary School | Voluntary Controlled School | Outstanding | 2.16 KM |
| Platt Church Of England Voluntary Aided Primary School | Voluntary Aided School | Good | 2.42 KM |
Images
Nearby Streets
| Name | Average Price | Average Sqft | Distance |
|---|---|---|---|
| School Approach | £ 0 | 0 | 0.00 KM |
| Wyatt Close | £ 475,000 | 0 | 0.00 KM |
| The Crescent | £ 0 | 0 | 0.00 KM |
| Plough Hill | £ 0 | 0 | 0.00 KM |
| New Walk | £ 0 | 0 | 0.00 KM |
Nearby Transport
| Name | NLC | TLC | Distance |
|---|---|---|---|
| Borough Green And Wrotham | 5130 | BRG | 0.20 KM |
| Kemsing | 5079 | KMS | 6.34 KM |
Nearby Listings
| Address | Price | Type | Score | Distance |
|---|---|---|---|---|
| Western Road, Borough Green | £ 435,000 | BUY | Unknown | 0.00 KM |
| Borough Green, TN15 | £ 185,000 | BUY | 6 / 10 | 0.03 KM |
| Borough Green, TN15 | £ 375,000 | BUY | 6 / 10 | 0.03 KM |
| Borough Green, TN15 | £ 185,000 | BUY | 6 / 10 | 0.03 KM |
| Borough Green, TN15 | £ 265,000 | BUY | 6 / 10 | 0.03 KM |
Nearby Properties
| Address | Price | Distance |
|---|---|---|
| 19 Western Road | £ 280,000 | 0.02 KM |
| 15 Western Road | £ 372,500 | 0.02 KM |
| 25 Western Road | £ 158,500 | 0.02 KM |
| 37 Western Road | £ 230,000 | 0.02 KM |
| 41 Western Road | £ 245,000 | 0.02 KM |