MA
Craven Hill, Notting Hill
By Marsh & Parsons
£ 1,895,000
Reviews
3 out of 5 stars
Marsh & Parsons says ..
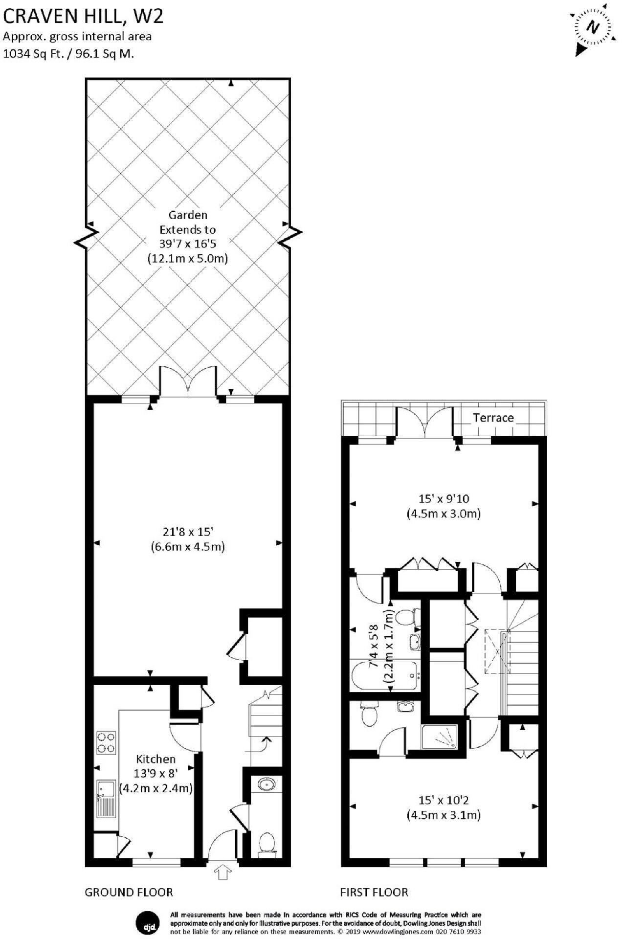
This charming property is currently configured over two floors with potential to extend upwards and downwards (subject to planning permission). The ground floor comprises a large reception/dining room leading onto the southerly garden, a separate kitchen and WC, whilst the upper floor boasts two ...
Property Oracle says ..
Therefore, we give this property 7 / 10. *Disclaimer: This is our option and does constitute a recommendation or financial advice. Do your own research. *
- Price
- 8
- Condition
- 6
- Location
- 9
- Land
- 7
- Bedrooms
- 2
- Bathrooms
- 2
- Sqft (est)
- 1,034.00
The heatmap indicates the level of crime in the area. The color of the heatmap indicates the crime severity and recency.
Metrics Year-on-Year
- Average area value
- 2,275,412.00 £Decreased by 6.74 %
- Est sale value
- 2,573,626.00 £Increased by 9.26 %
- Average area rental value
- 2,983.00 £/moIncreased by 5.00 %
- Est letting value
- 3,102.00 £/moIncreased by 50.00 %
- Est rental Yield
- 1.57 %Increased by 12.14 %
- Crime Rate
- 6.00 %Unchanged by 0.00 %
from 2,439,916.00 £
from 2,355,452.00 £
from 2,841.00 £/mo
from 2,068.00 £/mo
from 1.40 %
from 6.00 %
Agent Activity
Marsh & Parsons created the listing.
Nearby Schools
| Name | Type | Ofsted | Distance |
|---|---|---|---|
| St James & St John Church Of England Primary School | Voluntary Aided School | Good | 0.17 KM |
| Hallfield Primary School | Community School | Good | 0.61 KM |
| Marylebone Boys' School | Free Schools | Good | 0.83 KM |
| Hospital Home And Education Units Co St Mary'S Hospitial Tuition Unit | Miscellaneous | 0.91 KM | |
| Kensington Park School | Other Independent School | 0.96 KM |
Images
Nearby Streets
| Name | Average Price | Average Sqft | Distance |
|---|---|---|---|
| Chilworth Street | £ 0 | 0 | 0.00 KM |
| Westbourne Terrace Mews | £ 0 | 0 | 0.00 KM |
| Cerney Mews | £ 2,441,667 | 0 | 0.00 KM |
| Westbourne Bridge | £ 0 | 0 | 0.00 KM |
| Bishop's Bridge | £ 0 | 0 | 0.00 KM |
Nearby Transport
| Name | NLC | TLC | Distance |
|---|---|---|---|
| Paddington | 3087 | PAD | 0.66 KM |
| Marylebone | 1475 | MYB | 2.29 KM |
| Kilburn High Road | 1415 | KBN | 3.00 KM |
| South Hampstead | 1451 | SOH | 3.20 KM |
| West Brompton | 8875 | WBP | 3.28 KM |
Nearby Listings
| Address | Price | Type | Score | Distance |
|---|---|---|---|---|
| Craven Hill, Notting Hill | £ 1,895,000 | BUY | 7 / 10 | 0.00 KM |
| Craven Hill, Hyde Park | £ 850,000 | BUY | 7 / 10 | 0.01 KM |
| Craven Hill Gardens, Bayswater, London, W2 | £ 825,000 | BUY | 6 / 10 | 0.03 KM |
| Lancaster Gate, London, W2 | £ 1,850,000 | BUY | 6 / 10 | 0.05 KM |
| Craven Hill Gardens, London, W2 | £ 750,000 | BUY | 7 / 10 | 0.05 KM |
Nearby Properties
| Address | Price | Distance |
|---|---|---|
| 9a Craven Hill | £ 1,375,000 | 0.01 KM |
| 23a Craven Hill | £ 13,000,000 | 0.03 KM |
| 42 Lancaster Gate | £ 1,050,000 | 0.08 KM |
| 16 Craven Hill Mews | £ 1,885,000 | 0.08 KM |
| 28 Craven Hill Mews | £ 1,110,000 | 0.08 KM |