Leys Road, Pattishall, NN12
HO

Leys Road, Pattishall, NN12

By Howkins & Harrison LLP

£ 85,000

Reviews

3 out of 5 stars

Howkins & Harrison LLP says ..

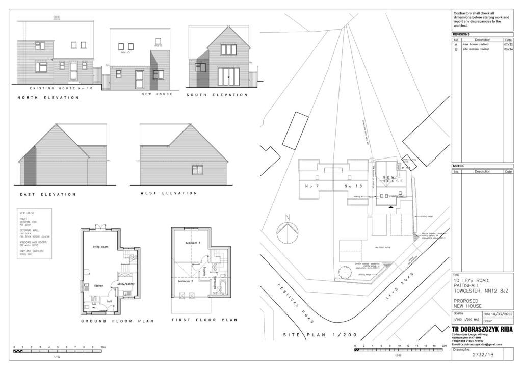
A rarely available single building plot, granted Full Planning Permission by West Northamptonshire Council, under reference 2024/1214/FULL, for a two-bedroom detached house, complete with a garden and driveway parking, situated within the popular village of Pattishall.

Property Oracle says ..

This is a plot of land in Pattishall with planning permission for a new house. The location offers a balance between rural charm and accessibility to local amenities and schools. Currently, the property is in poor condition as it requires complete construction. However, the asking price of £85,000 is considerably lower than the average property price in the area, making it an attractive opportunity for those looking to build a custom home. The plot size appears adequate for a garden and outdoor space, enhancing its appeal.

Therefore, we give this property 6 / 10. *Disclaimer: This is our option and does constitute a recommendation or financial advice. Do your own research. *

Price
9
Condition
2
Location
6
Land
7
Bedrooms
0
Bathrooms
0
Sqft (est)
710.00

The heatmap indicates the level of crime in the area. The color of the heatmap indicates the crime severity and recency.

Metrics Year-on-Year

Average area value
375,000.00 £
Decreased by 12.81 %
from 430,075.00 £
Est sale value
359,970.00 £
Increased by 58.93 %
from 226,490.00 £
Average area rental value
1,375.00 £/mo
Decreased by 6.53 %
from 1,471.00 £/mo
Est letting value
710.00 £/mo
Unchanged by 0.00 %
from 710.00 £/mo
Est rental Yield
4.40 %
Increased by 7.32 %
from 4.10 %
Crime Rate
210.00 %
Unchanged by 0.00 %
from 210.00 %

Agent Activity

  • Howkins & Harrison LLP created the listing.

Nearby Schools

NameTypeOfstedDistance
Pattishall Church Of England Primary SchoolVoluntary Controlled SchoolGood1.17 KM
Bugbrooke Community Primary SchoolCommunity SchoolGood3.74 KM
Greens Norton Church Of England Primary SchoolAcademy ConverterGood4.19 KM
Campion SchoolAcademy ConverterRequires improvement4.53 KM
The Bliss Charity SchoolVoluntary Aided SchoolGood4.62 KM

Images

Building Plot Adjacent 10 Leys Road, Pattishall (3 Building Plot Adjacent 10 Leys Road, Pattishall (2 Architect plans- adjacent to 10 Leys Road, Pattish Land App- Building plot adjacent to 10 Leys Road, Building Plot Adjacent 10 Leys Road, Pattishall (1 Building Plot Adjacent 10 Leys Road, Pattishall (6 Building Plot Adjacent 10 Leys Road, Pattishall (8 Building Plot Adjacent 10 Leys Road, Pattishall (9 Building Plot Adjacent 10 Leys Road, Pattishall (7

Nearby Streets

NameAverage PriceAverage SqftDistance
Orchard Court £ 000.00 KM
Blacksmith's Close £ 250,00000.00 KM
School Road £ 000.00 KM
Sutton's Walk £ 000.00 KM

Nearby Listings

AddressPriceTypeScoreDistance
Leys Road, Pattishall, NN12 £ 85,000BUY6 / 100.00 KM
Simons Walk, Pattishall, NN12 £ 250,000BUY6 / 100.10 KM
Simons Walk, Pattishall, NN12 £ 270,000BUYUnknown0.11 KM
Simons Walk, Pattishall, Towcester, Northamptonshire, NN12 £ 250,000BUY5 / 100.12 KM
Simons Walk, Pattishall, Towcester, Northamptonshire, NN12 £ 240,000BUY6 / 100.14 KM

Nearby Properties

AddressPriceDistance
48 Leys Road £ 203,0000.02 KM
34 Leys Road £ 155,0000.02 KM
32 Leys Road £ 305,0000.02 KM
46 Leys Road £ 190,0000.02 KM
26 Leys Road £ 65,0000.02 KM