Loxwood Avenue, Worthing, BN14
BA

Loxwood Avenue, Worthing, BN14

By Bacon & Company

£ 525,000

Reviews

3 out of 5 stars

Bacon & Company says ..

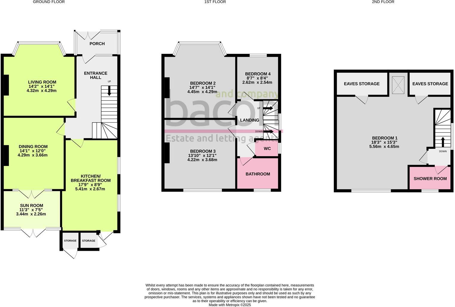
A four-bedroom, two-bathroom semi-detached family home for sale in the sought-after Loxwood Avenue. The accommodation briefly comprises: Ground Floor: Entrance porch, entrance hall, living room, dining room, kitchen/breakfast room, and ground floor cloakroom. First Floor: Landing, three bedrooms,...

Property Oracle says ..

The property is a semi-detached house located on Loxwood Avenue in Worthing, West Sussex. It features 4 bedrooms and 2 bathrooms, with a total square footage of 1,329.66. The location benefits from being within close proximity to several schools, including Thomas A Becket Junior School and Worthing High School, both rated as Good by Ofsted. Additionally, there are several transportation options nearby, such as West Worthing and Worthing train stations. Based on the images, the property appears to be in need of some updating and renovation. The interior design and fixtures seem dated, particularly in the kitchen and bathrooms. However, the property seems well-maintained and clean. The property includes a good-sized garden and a garage. The list price is £525,000. The average price per square foot in the area is £431. The property has a square footage of 1,329.66, working out at £394 per square foot, which seems reasonable.

Therefore, we give this property 6 / 10. *Disclaimer: This is our option and does constitute a recommendation or financial advice. Do your own research. *

Price
7
Condition
5
Location
8
Land
7
Bedrooms
4
Bathrooms
2
Sqft (est)
1,329.66

The heatmap indicates the level of crime in the area. The color of the heatmap indicates the crime severity and recency.

Metrics Year-on-Year

Average area value
375,000.00 £
Decreased by 3.05 %
from 386,801.00 £
Est sale value
573,083.46 £
Increased by 2.13 %
from 561,116.52 £
Average area rental value
1,088.00 £/mo
Decreased by 5.47 %
from 1,151.00 £/mo
Est letting value
1,329.66 £/mo
Unchanged by 0.00 %
from 1,329.66 £/mo
Est rental Yield
3.48 %
Decreased by 2.52 %
from 3.57 %
Crime Rate
1.00 %
Unchanged by 0.00 %
from 1.00 %

Agent Activity

  • Bacon & Company marked this listing as sold.

  • Bacon & Company created the listing.

Nearby Schools

NameTypeOfstedDistance
Thomas A Becket Junior SchoolCommunity SchoolGood0.53 KM
Worthing High SchoolAcademy ConverterGood0.64 KM
Tarring Children And Family CentreChildren's Centre Linked Site0.93 KM
Broadwater Cofe Primary SchoolVoluntary Aided SchoolOutstanding0.96 KM
Thomas A Becket Infant SchoolCommunity SchoolGood1.07 KM

Images

IMG_8622-IMG_8624.jpg IMG_8574-IMG_8576.jpg IMG_8607-IMG_8609.jpg IMG_8544-IMG_8546.jpg IMG_8550-IMG_8552.jpg IMG_8556-IMG_8558.jpg IMG_8484-IMG_8486.jpg IMG_8496-IMG_8498.jpg IMG_8514-IMG_8516.jpg IMG_8523-IMG_8525.jpg IMG_8505-IMG_8507.jpg IMG_8535-IMG_8537.jpg IMG_8568-IMG_8570.jpg IMG_8586-IMG_8588.jpg IMG_8595-IMG_8597.jpg IMG_8565-IMG_8567.jpg

Nearby Streets

NameAverage PriceAverage SqftDistance
Rectory Road £ 000.00 KM
Fairfields £ 000.00 KM
Carnegie Close £ 000.00 KM
Steeple View £ 000.00 KM
Valentine Close £ 000.00 KM

Nearby Transport

NameNLCTLCDistance
West Worthing5278WWO1.23 KM
Worthing5279WRH1.38 KM
Durrington-On-Sea5282DUR3.03 KM
East Worthing5283EWR3.44 KM
Goring-By-Sea5272GBS5.34 KM

Nearby Listings

AddressPriceTypeScoreDistance
Loxwood Avenue, Worthing, BN14 £ 525,000BUY6 / 100.00 KM
Loxwood Avenue, Worthing £ 650,000BUY8 / 100.01 KM
Loxwood Avenue, Worthing £ 500,000BUYUnknown0.04 KM
Loxwood Avenue, Worthing £ 625,000BUYUnknown0.04 KM
Loxwood Avenue, Worthing, BN14 7RF £ 600,000BUY7 / 100.09 KM

Nearby Properties

AddressPriceDistance
52 Loxwood Avenue £ 199,9500.04 KM
68 Loxwood Avenue £ 500,0000.04 KM
36 Loxwood Avenue £ 565,0000.04 KM
76 Loxwood Avenue £ 485,0000.04 KM
46 Loxwood Avenue £ 480,0000.04 KM