Clifton Road, Rugby Town Centre
By Picklescott Homes
£ 400,000
Reviews
3 out of 5 stars
Picklescott Homes says ..
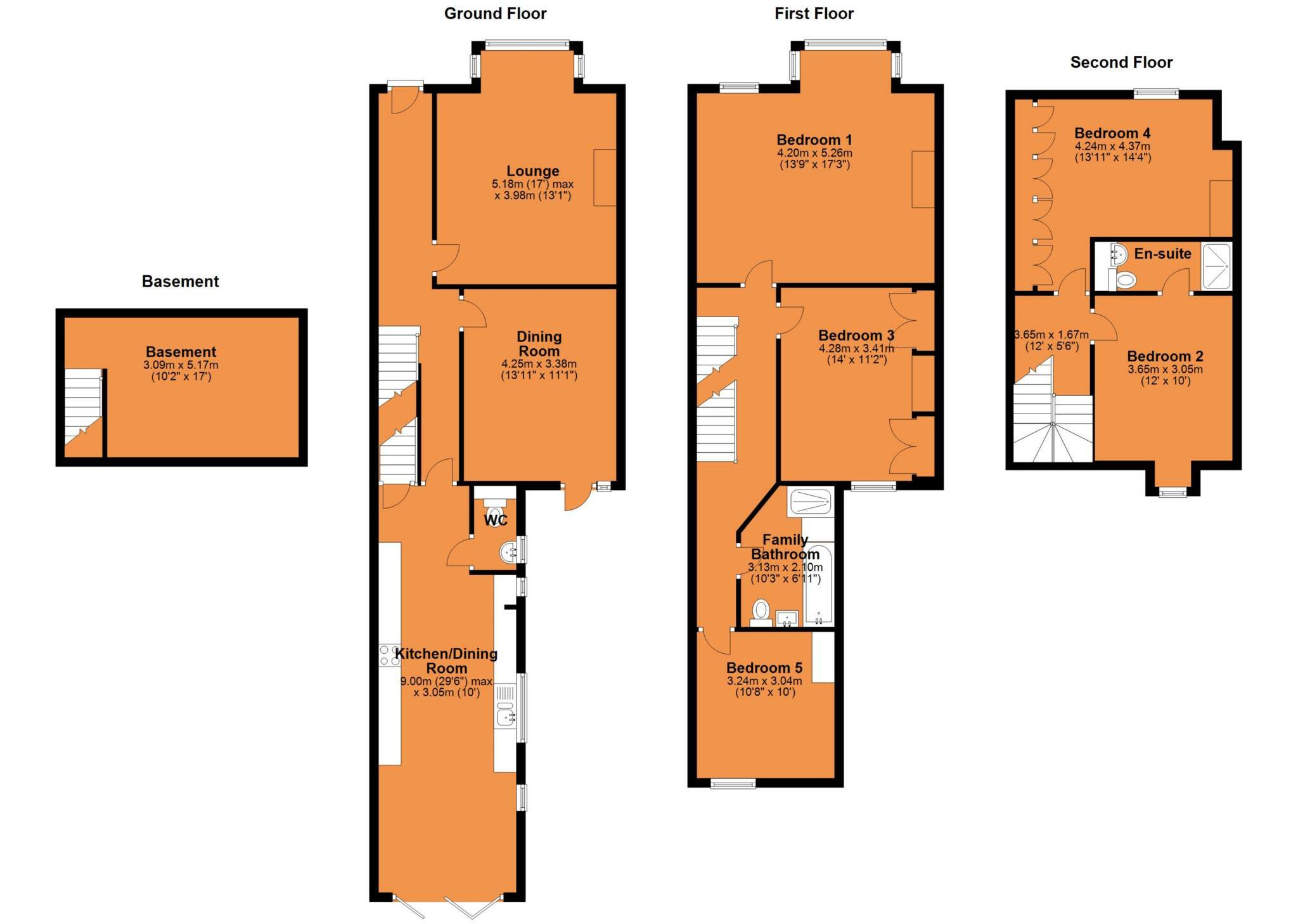
A mature town house with FIVE BEDROOMS set over four floors to include a basement. The kitchen/breakfast room is just under 30ft & has been refitted to a high standard with bifold doors opening to rear garden. 4 piece family bathroom & en suite to bedroom two. Rear off road parking
Property Oracle says ..
This five-bedroom, two-bathroom property located on Clifton Road in Rugby town centre presents a compelling proposition for a range of buyers. The property’s key strengths lie in its location within walking distance of Rugby town centre, providing convenient access to amenities and transport links. The close proximity to well-regarded primary schools is another significant advantage for families. The photographs reveal a recently modernised kitchen and bathrooms, suggesting a degree of recent investment and maintenance. The bedrooms vary in presentation. While some show a higher standard of modernity others retain elements of older decor and furnishings. The relatively small garden requires consideration, and prospective buyers should view the property in person to gain a comprehensive understanding of the property’s condition and overall layout. The listing price aligns with other properties of a similar size on Clifton Road and nearby streets, but specific pricing comparisons are limited due to missing square footage data for most of the nearby listings.
Therefore, we give this property 6 / 10. *Disclaimer: This is our option and does constitute a recommendation or financial advice. Do your own research. *
- Price
- 7
- Condition
- 7
- Location
- 7
- Land
- 4
- Bedrooms
- 5
- Bathrooms
- 2
- Sqft (est)
- 1,333.33
The heatmap indicates the level of crime in the area. The color of the heatmap indicates the crime severity and recency.
Metrics Year-on-Year
- Average area value
- 311,000.00 £Decreased by 0.23 %
- Est sale value
- 310,665.89 £Increased by 10.43 %
- Average area rental value
- 1,156.00 £/moIncreased by 4.81 %
- Est letting value
- 0.00 £/mo
- Est rental Yield
- 4.46 %Increased by 4.94 %
- Crime Rate
- 6.00 %Unchanged by 0.00 %
Agent Activity
Picklescott Homes marked this listing as sold.
Picklescott Homes created the listing.
Nearby Schools
| Name | Type | Ofsted | Distance |
|---|---|---|---|
| St Andrew'S Benn Cofe (Voluntary Aided) Primary School | Voluntary Aided School | Good | 0.41 KM |
| Eastlands Primary School | Community School | Good | 0.67 KM |
| Claremont Children'S Centre (Formerly Rugby Parents Centre) | Children's Centre | 0.88 KM | |
| Lawrence Sheriff School | Academy Converter | 1.44 KM | |
| Northlands Primary School | Community School | Good | 1.58 KM |
Images
Nearby Streets
| Name | Average Price | Average Sqft | Distance |
|---|---|---|---|
| Lawn Court | £ 0 | 0 | 0.00 KM |
| Barter Place | £ 0 | 0 | 0.00 KM |
| Willow Lane | £ 749,950 | 0 | 0.00 KM |
| Gavel Drive | £ 0 | 0 | 0.00 KM |
| Craven Road | £ 200,000 | 0 | 0.00 KM |
Nearby Transport
| Name | NLC | TLC | Distance |
|---|---|---|---|
| Rugby | 1087 | RUG | 1.07 KM |
Nearby Listings
| Address | Price | Type | Score | Distance |
|---|---|---|---|---|
| Clifton Road, Rugby Town Centre | £ 400,000 | BUY | 6 / 10 | 0.00 KM |
| Clifton Road, Rugby | £ 415,000 | BUY | 6 / 10 | 0.03 KM |
| Clifton Road, Rugby | £ 450,000 | BUY | Unknown | 0.07 KM |
| Winfield Street, Rugby Town Centre | £ 200,000 | BUY | 7 / 10 | 0.15 KM |
| Winfield Street, Rugby, CV21 | £ 180,000 | BUY | 6 / 10 | 0.17 KM |
Nearby Properties
| Address | Price | Distance |
|---|---|---|
| 279 Clifton Road | £ 157,000 | 0.04 KM |
| 275 Clifton Road | £ 375,000 | 0.04 KM |
| 84 Clifton Road | £ 317,500 | 0.04 KM |
| 267 Clifton Road | £ 430,000 | 0.04 KM |
| 283 Clifton Road | £ 250,000 | 0.04 KM |