MADE says ..
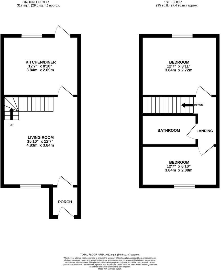
A bright and spacious two bedroom TERRACED HOUSE with a driveway located within a QUIET CUL-DE-SAC just a short walk from the seafront, Alexandra Park and Hastings Town centre offering shopping and leisure facilities as well as a mainline railway station with connections to London. The accommodat...
Property Oracle says ..
This property is a two-bedroom terraced house located in Hastings, East Sussex. It benefits from a good location, with nearby schools, transportation links and local amenities. The property is in reasonable condition and appears well maintained, although the garden is relatively small. The list price of £240,000 seems reasonable considering the average price per square foot in the area, although it is slightly below average size. The property also benefits from a small garden area. Overall, this property represents a good value for money option in a desirable location.
Therefore, we give this property 6 / 10. *Disclaimer: This is our option and does constitute a recommendation or financial advice. Do your own research. *
- Price
- 7
- Condition
- 7
- Location
- 8
- Land
- 4
- Bedrooms
- 2
- Bathrooms
- 1
- Sqft (est)
- 612.47
The heatmap indicates the level of crime in the area. The color of the heatmap indicates the crime severity and recency.
Metrics Year-on-Year
- Average area value
- 273,747.00 £Decreased by 7.23 %
- Est sale value
- 224,164.02 £Increased by 23.65 %
- Average area rental value
- 1,032.00 £/moDecreased by 0.77 %
- Est letting value
- 612.47 £/moUnchanged by 0.00 %
- Est rental Yield
- 4.52 %Increased by 6.86 %
- Crime Rate
- 9.00 %Unchanged by 0.00 %
Agent Activity
MADE created the listing.
Nearby Schools
| Name | Type | Ofsted | Distance |
|---|---|---|---|
| Hastings Town Children'S Centre | Children's Centre | 0.26 KM | |
| The Baird Primary Academy | Academy Sponsor Led | Good | 0.66 KM |
| The Flagship School | Free Schools Special | 0.70 KM | |
| Ark Castledown Primary Academy | Academy Sponsor Led | 0.71 KM | |
| Torfield School | Academy Special Converter | Outstanding | 0.91 KM |
Images
Nearby Streets
| Name | Average Price | Average Sqft | Distance |
|---|---|---|---|
| Saint James's Road | £ 0 | 0 | 0.00 KM |
| St Mary's Road | £ 0 | 0 | 0.00 KM |
| St James's Road | £ 0 | 0 | 0.00 KM |
| St Helen's Road | £ 0 | 0 | 0.00 KM |
| St Mary's Terrace | £ 0 | 0 | 0.00 KM |
Nearby Transport
| Name | NLC | TLC | Distance |
|---|---|---|---|
| Ore | 5021 | ORE | 0.84 KM |
| Hastings | 5219 | HGS | 1.09 KM |
| St Leonards Warrior Square | 5239 | SLQ | 2.88 KM |
| West St Leonards | 5242 | WLD | 5.13 KM |
| Three Oaks | 5028 | TOK | 5.27 KM |
Nearby Listings
| Address | Price | Type | Score | Distance |
|---|---|---|---|---|
| Beckett Mews, Hastings | £ 250,000 | BUY | 7 / 10 | 0.00 KM |
| Becket Close, Hastings | £ 240,000 | BUY | 6 / 10 | 0.00 KM |
| Becket Close, Hastings, TN34 | £ 249,995 | BUY | Unknown | 0.01 KM |
| Becket Close, Hastings | £ 249,995 | BUY | 6 / 10 | 0.02 KM |
| Becket Mews, Old School Path, Hastings | £ 250,000 | BUY | 6 / 10 | 0.04 KM |
Nearby Properties
| Address | Price | Distance |
|---|---|---|
| 9 Becket Close | £ 134,000 | 0.03 KM |
| 20 Becket Close | £ 124,000 | 0.03 KM |
| 7 Becket Close | £ 127,000 | 0.03 KM |
| 19 Becket Close | £ 174,000 | 0.03 KM |
| 4 Becket Close | £ 255,000 | 0.03 KM |