Brindley Place, Weston Court, UB8
By Christopher Nevill
£ 280,000
Reviews
3 out of 5 stars
Christopher Nevill says ..
A stunning first floor apartment in this tucked away gated development with concierge service. Conveniently located, this spacious home boasts a bright stylish interior and large bedroom.
Property Oracle says ..
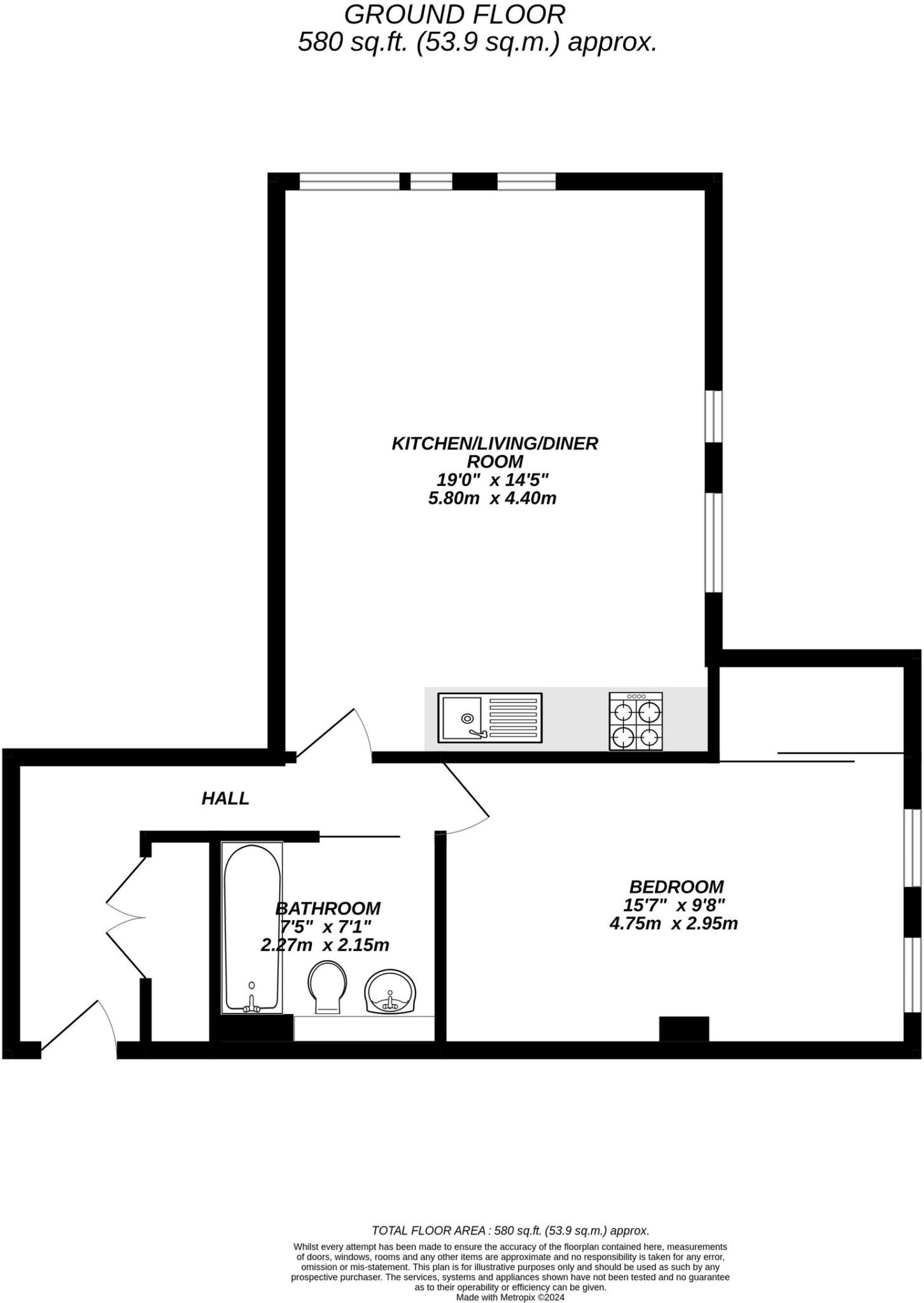
This property is a one bedroom flat located in Uxbridge, a town in the London Borough of Hillingdon. Based on the images provided, the property appears to be modern, well-maintained, and in excellent condition. The flat benefits from an open-plan living area, a modern kitchen, and a contemporary bathroom. The location is convenient, with nearby transportation links and schools. The list price of £280,000 is slightly below the average price for the area, which is £384,872. However, the average sqft is 709, and this property is only 580 sqft. Therefore, the price per sqft of this property is lower than the average price per sqft in the area. Considering the condition, location, and size, the price seems reasonable.
Therefore, we give this property 6 / 10. *Disclaimer: This is our option and does constitute a recommendation or financial advice. Do your own research. *
- Price
- 8
- Condition
- 10
- Location
- 7
- Land
- 1
- Bedrooms
- 1
- Bathrooms
- 1
- Sqft (est)
- 580.00
- Lot (est)
- 580.00
The heatmap indicates the level of crime in the area. The color of the heatmap indicates the crime severity and recency.
Metrics Year-on-Year
- Average area value
- 440,990.00 £Increased by 1.37 %
- Est sale value
- 345,100.00 £Increased by 7.59 %
- Average area rental value
- 1,722.00 £/moDecreased by 4.81 %
- Est letting value
- 1,160.00 £/moUnchanged by 0.00 %
- Est rental Yield
- 4.69 %Decreased by 6.01 %
- Crime Rate
- 14.00 %Unchanged by 0.00 %
Agent Activity
Christopher Nevill created the listing.
Nearby Schools
| Name | Type | Ofsted | Distance |
|---|---|---|---|
| Cowley Children'S Centre | Children's Centre | 0.71 KM | |
| Cowley St Laurence Cofe Primary School | Academy Converter | Good | 0.71 KM |
| Rabbsfarm Primary School | Community School | Good | 1.14 KM |
| The Young People'S Academy | Academy Special Sponsor Led | Good | 1.26 KM |
| St Matthew'S Cofe Primary School | Academy Converter | Requires improvement | 1.35 KM |
Images
Nearby Streets
| Name | Average Price | Average Sqft | Distance |
|---|---|---|---|
| Canal Way - London Loop | £ 0 | 0 | 0.00 KM |
| U70 | £ 0 | 0 | 0.00 KM |
| Saint Clement Close | £ 550,000 | 0 | 0.00 KM |
| St. Cuthbert Lane | £ 330,000 | 0 | 0.00 KM |
| Maygoods Green | £ 435,000 | 0 | 0.00 KM |
Nearby Transport
| Name | NLC | TLC | Distance |
|---|---|---|---|
| West Drayton | 3174 | WDT | 1.67 KM |
| Iver | 3170 | IVR | 2.97 KM |
| Heathrow Terminal 5 | 9846 | HWV | 5.70 KM |
| Heathrow Terminals 2 And 3 (Rail Station Only) | 7090 | HXX | 6.33 KM |
| Langley | 3171 | LNY | 6.66 KM |
Nearby Listings
| Address | Price | Type | Score | Distance |
|---|---|---|---|---|
| Brindley Place, Weston Court, UB8 | £ 280,000 | BUY | 6 / 10 | 0.00 KM |
| Brindley Place, Uxbridge, UB8 | £ 310,000 | BUY | 6 / 10 | 0.00 KM |
| 5 Brindley Place, Uxbridge, UB8 | £ 335,000 | BUY | Unknown | 0.00 KM |
| Brindley Place, Uxbridge | £ 210,000 | BUY | 6 / 10 | 0.01 KM |
| Brindley Place, Uxbridge | £ 290,000 | BUY | 6 / 10 | 0.03 KM |
Nearby Properties
| Address | Price | Distance |
|---|---|---|
| 18 Fernes Close | £ 248,500 | 0.12 KM |
| 13 Fernes Close | £ 149,500 | 0.12 KM |
| 19 Fernes Close | £ 285,000 | 0.12 KM |
| 15 Fernes Close | £ 150,000 | 0.12 KM |
| 14 Fernes Close | £ 230,000 | 0.12 KM |