Twickenham Close, Beddington, CR0
By Rosindale Pavitt
£ 299,950
Reviews
3 out of 5 stars
Rosindale Pavitt says ..
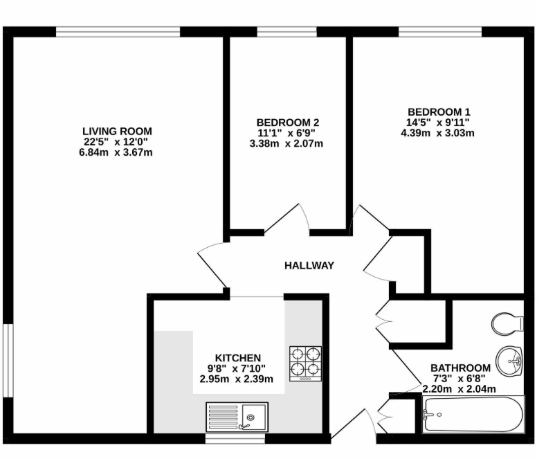
This beautifully presented two-double bedroom top apartment features a bright & spacious lounge/dining room, a seperate modem fitted kitchen, large master bedroom with space for wardrobes, a good sized second bedroom and a modern bathroom. Other benefits include gas central heating, dou...
Property Oracle says ..
This property is a two-bedroom apartment located in Beddington, Sutton, with a list price of £299,950. The apartment appears to be in good condition, with modern updates to the kitchen and bathroom. The living area is spacious and well-presented. The property benefits from allocated parking and is within close proximity to local schools and transportation links. However, the lack of information regarding square footage and plot size makes it difficult to fully assess the value. Compared to nearby properties, the price seems reasonable, although further information is needed to make a definitive conclusion. The location is convenient, with good access to transportation and amenities. Overall, this property presents a good opportunity for a buyer looking for a modern and well-maintained apartment in a convenient location.
Therefore, we give this property 6 / 10. *Disclaimer: This is our option and does constitute a recommendation or financial advice. Do your own research. *
- Price
- 7
- Condition
- 8
- Location
- 7
- Land
- 3
- Bedrooms
- 2
- Bathrooms
- 1
- Sqft (est)
- 595.00
The heatmap indicates the level of crime in the area. The color of the heatmap indicates the crime severity and recency.
Metrics Year-on-Year
- Average area value
- 393,750.00 £Decreased by 16.75 %
- Est sale value
- 378,420.00 £Increased by 10.03 %
- Average area rental value
- 2,150.00 £/moIncreased by 26.03 %
- Est letting value
- 1,785.00 £/moIncreased by 50.00 %
- Est rental Yield
- 6.55 %Increased by 51.27 %
- Crime Rate
- 4.00 %Unchanged by 0.00 %
Agent Activity
Rosindale Pavitt created the listing.
Nearby Schools
| Name | Type | Ofsted | Distance |
|---|---|---|---|
| Link Secondary School | Academy Special Converter | 0.37 KM | |
| Link Primary School | Academy Special Converter | Outstanding | 0.56 KM |
| Beddington Park Primary Children'S Centre | Children's Centre | 0.82 KM | |
| Beddington Park Academy | Academy Sponsor Led | 0.94 KM | |
| High View A Sure Start Children'S Centre | Children's Centre | 1.10 KM |
Images
Nearby Streets
| Name | Average Price | Average Sqft | Distance |
|---|---|---|---|
| The Ridgeway | £ 525,000 | 0 | 0.00 KM |
| Aldwick Road | £ 585,000 | 0 | 0.00 KM |
| Plough Lane | £ 0 | 0 | 0.00 KM |
| Central Avenue | £ 0 | 0 | 0.00 KM |
| East Avenue | £ 0 | 0 | 0.00 KM |
Nearby Transport
| Name | NLC | TLC | Distance |
|---|---|---|---|
| Waddon | 5392 | WDO | 0.95 KM |
| West Croydon | 5411 | WCY | 2.61 KM |
| Wallington | 5394 | WLT | 3.10 KM |
| Hackbridge | 5364 | HCB | 3.27 KM |
| East Croydon | 5355 | ECR | 3.60 KM |
Nearby Listings
| Address | Price | Type | Score | Distance |
|---|---|---|---|---|
| Twickenham Close, Beddington, CR0 | £ 299,950 | BUY | 6 / 10 | 0.00 KM |
| Chiswick Close, Croydon | £ 280,000 | BUY | 6 / 10 | 0.11 KM |
| Flat 8, Findon Court, 1 Chiswick Close, Croydon, Surrey | £ 220,000 | BUY | 5 / 10 | 0.11 KM |
| Richmond Road, Beddington | £ 490,000 | BUY | 7 / 10 | 0.12 KM |
| Chiswick Close, Beddington, CR0 | £ 375,000 | BUY | 7 / 10 | 0.16 KM |
Nearby Properties
| Address | Price | Distance |
|---|---|---|
| 17 Twickenham Close | £ 265,000 | 0.01 KM |
| 14 Twickenham Close | £ 365,000 | 0.01 KM |
| 15 Twickenham Close | £ 328,000 | 0.01 KM |
| 5 Twickenham Close | £ 245,000 | 0.01 KM |
| 16 Twickenham Close | £ 235,000 | 0.01 KM |