Links Estate Agents says ..
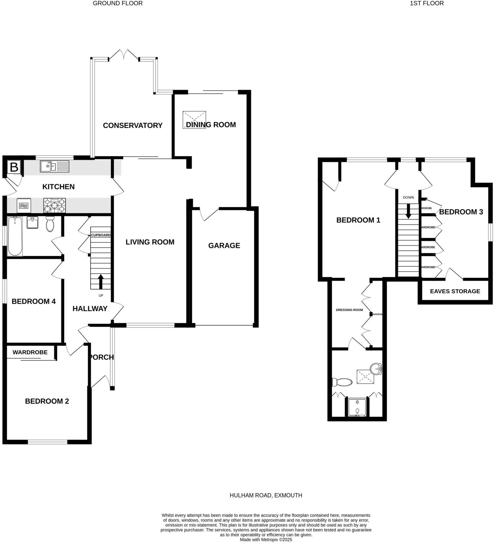
Offered for sale with NO ONWARD CHAIN and offering flexible, 2 Storey living accommodation is this deceptively spacious, 4 bedroom, 2 reception room and 2 bathroom detached chalet style property with a garage, brick paved driveway and a Southerly facing rear garden.
Property Oracle says ..
This property is a 4-bedroom, 2-bathroom detached house located in Exmouth, Devon. The property benefits from a good-sized garden and a conservatory. The location is desirable, being within reasonable proximity to local schools and transport links. While the property appears well-maintained and in good condition from the provided images, there is limited information on the plot size. The list price of £525,000 is above the average price for the area (£397,395), however, the average price per sqft in the area is significantly lower (£372) than what might be expected for a property of this size and apparent condition. More information on the plot size would be beneficial to determine a more precise price analysis.
Therefore, we give this property 7 / 10. *Disclaimer: This is our option and does constitute a recommendation or financial advice. Do your own research. *
- Price
- 6
- Condition
- 8
- Location
- 8
- Land
- 7
- Bedrooms
- 4
- Bathrooms
- 2
- Sqft (est)
- 1,670.00
The heatmap indicates the level of crime in the area. The color of the heatmap indicates the crime severity and recency.
Metrics Year-on-Year
- Average area value
- 391,731.00 £Decreased by 6.30 %
- Est sale value
- 551,100.00 £Decreased by 27.79 %
- Average area rental value
- 1,432.00 £/moIncreased by 19.33 %
- Est letting value
- 1,670.00 £/moUnchanged by 0.00 %
- Est rental Yield
- 4.39 %Increased by 27.62 %
- Crime Rate
- 1.00 %Unchanged by 0.00 %
Agent Activity
Links Estate Agents created the listing.
Nearby Schools
| Name | Type | Ofsted | Distance |
|---|---|---|---|
| Withycombe Raleigh Church Of England Primary School | Voluntary Controlled School | Good | 0.89 KM |
| Exmouth Community College | Academy Converter | Requires improvement | 1.02 KM |
| Brixington Primary Academy | Academy Sponsor Led | Requires improvement | 1.14 KM |
| Exmouth & District Children'S Centre | Children's Centre | 1.27 KM | |
| Marpool Primary School | Foundation School | Good | 1.37 KM |
Images
Nearby Streets
| Name | Average Price | Average Sqft | Distance |
|---|---|---|---|
| Pound Lane | £ 0 | 0 | 0.00 KM |
| Shackleton Close | £ 0 | 0 | 0.00 KM |
| Seymour Road | £ 0 | 0 | 0.00 KM |
| Orchard Close | £ 440,000 | 0 | 0.00 KM |
| School Lane | £ 0 | 0 | 0.00 KM |
Nearby Transport
| Name | NLC | TLC | Distance |
|---|---|---|---|
| Exmouth | 5756 | EXM | 2.00 KM |
| Lympstone Village | 5761 | LYM | 3.25 KM |
| Starcross | 3413 | SCS | 4.89 KM |
| Lympstone Commando | 5762 | LYC | 4.98 KM |
| Exton | 5760 | EXN | 5.67 KM |
Nearby Listings
| Address | Price | Type | Score | Distance |
|---|---|---|---|---|
| Hulham Road, Exmouth | £ 525,000 | BUY | 7 / 10 | 0.00 KM |
| Hulham Road, Exmouth, EX8 4RD | £ 785,000 | BUY | Unknown | 0.07 KM |
| Littlemead Lane, Exmouth | £ 650,000 | BUY | 7 / 10 | 0.11 KM |
| Littlemead Lane, Exmouth | £ 420,000 | BUY | Unknown | 0.14 KM |
| Pound Lane, Exmouth, EX8 3LE | £ 385,000 | BUY | 7 / 10 | 0.19 KM |
Nearby Properties
| Address | Price | Distance |
|---|---|---|
| 130 Hulham Road | £ 197,500 | 0.06 KM |
| 136 Hulham Road | £ 372,500 | 0.06 KM |
| 77 Hulham Road | £ 259,500 | 0.06 KM |
| 81 Hulham Road | £ 250,000 | 0.06 KM |
| 132 Hulham Road | £ 225,000 | 0.06 KM |