Haywood Gardens, Weston super Mare - GREAT LOCATION
By Ashley Leahy Estate Agents
£ 295,000
Reviews
3 out of 5 stars
Ashley Leahy Estate Agents says ..
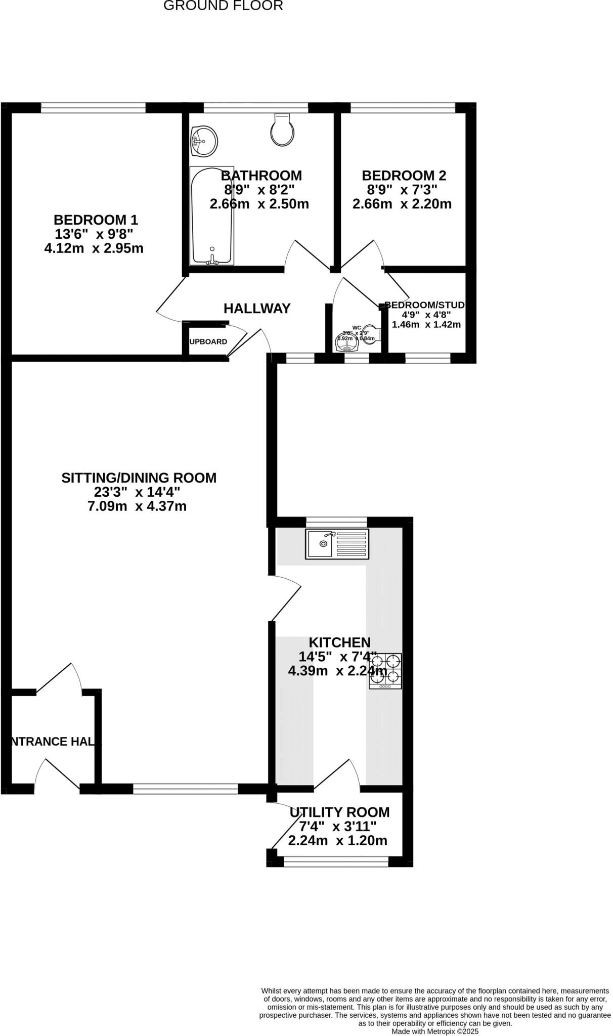
A beautifully situated detached bungalow offering surprisingly roomy 2/3 bedroom accommodation, located on the Southern fringes of the town. This lovely bungalow boasts an elevated position in this quiet cul de sac and has a wonderful wooded backdrop, making this ideal for nature lovers. L...
Property Oracle says ..
This is a detached bungalow in Weston-super-Mare Uphill. The property has three bedrooms and one bathroom. It is listed for £295,000 and has a floor area of 756.70 sqft. The property benefits from a garage and a garden with a shed. While the property is in reasonable condition, it would benefit from some modernisation. The location is good, with local schools and transport links nearby. The price seems reasonable for the area and property type.
Therefore, we give this property 7 / 10. *Disclaimer: This is our option and does constitute a recommendation or financial advice. Do your own research. *
- Price
- 8
- Condition
- 6
- Location
- 7
- Land
- 7
- Bedrooms
- 3
- Bathrooms
- 1
- Sqft (est)
- 756.70
The heatmap indicates the level of crime in the area. The color of the heatmap indicates the crime severity and recency.
Metrics Year-on-Year
- Average area value
- 881,250.00 £Increased by 10.74 %
- Est sale value
- 522,123.00 £Increased by 54.71 %
- Average area rental value
- 1,300.00 £/moDecreased by 43.36 %
- Est letting value
- 756.70 £/moUnchanged by 0.00 %
- Est rental Yield
- 1.77 %Decreased by 48.84 %
- Crime Rate
- 6.00 %Unchanged by 0.00 %
Agent Activity
Ashley Leahy Estate Agents created the listing.
Nearby Schools
| Name | Type | Ofsted | Distance |
|---|---|---|---|
| Oldmixon Primary School | Academy Converter | 0.28 KM | |
| Voyage Learning Campus | Pupil Referral Unit | Good | 0.94 KM |
| Windwhistle Primary School | Academy Converter | 1.56 KM | |
| South Weston Children'S Centre | Children's Centre | 1.65 KM | |
| Bournville Primary School | Academy Converter | 1.78 KM |
Images
Nearby Streets
| Name | Average Price | Average Sqft | Distance |
|---|---|---|---|
| Broadway | £ 310,000 | 0 | 0.00 KM |
| Bruton | £ 0 | 0 | 0.00 KM |
| Bloomfield | £ 230,000 | 0 | 0.00 KM |
| Butcombe | £ 0 | 0 | 0.00 KM |
| Broadway | £ 220,000 | 0 | 0.00 KM |
Nearby Transport
| Name | NLC | TLC | Distance |
|---|---|---|---|
| Weston-Super-Mare | 3391 | WSM | 3.23 KM |
| Weston Milton | 3388 | WNM | 3.38 KM |
| Worle | 3390 | WOR | 6.49 KM |
Nearby Listings
| Address | Price | Type | Score | Distance |
|---|---|---|---|---|
| Haywood Gardens, Weston super Mare - GREAT LOCATION | £ 295,000 | BUY | 7 / 10 | 0.00 KM |
| Walnut Close, Weston-super-Mare | £ 300,000 | BUY | 7 / 10 | 0.10 KM |
| Oldmixon Road, Weston-super-Mare, North Somerset, BS24 | £ 575,000 | BUY | 6 / 10 | 0.14 KM |
| Oldmixon Road, Weston-super-Mare, Somerset, BS24 | £ 290,000 | BUY | 7 / 10 | 0.16 KM |
| Oldmixon Road, Weston-super-Mare | £ 293,500 | BUY | 7 / 10 | 0.21 KM |
Nearby Properties
| Address | Price | Distance |
|---|---|---|
| 27 Haywood Gardens | £ 178,000 | 0.03 KM |
| 23 Haywood Gardens | £ 162,000 | 0.04 KM |
| 1 Haywood Gardens | £ 308,000 | 0.04 KM |
| 25 Haywood Gardens | £ 155,000 | 0.04 KM |
| 19 Haywood Gardens | £ 185,000 | 0.04 KM |