9 Rosslyn Crescent, Wembley, Greater London, HA9
By Allsop
£ 450,000
Reviews
3 out of 5 stars
Allsop says ..
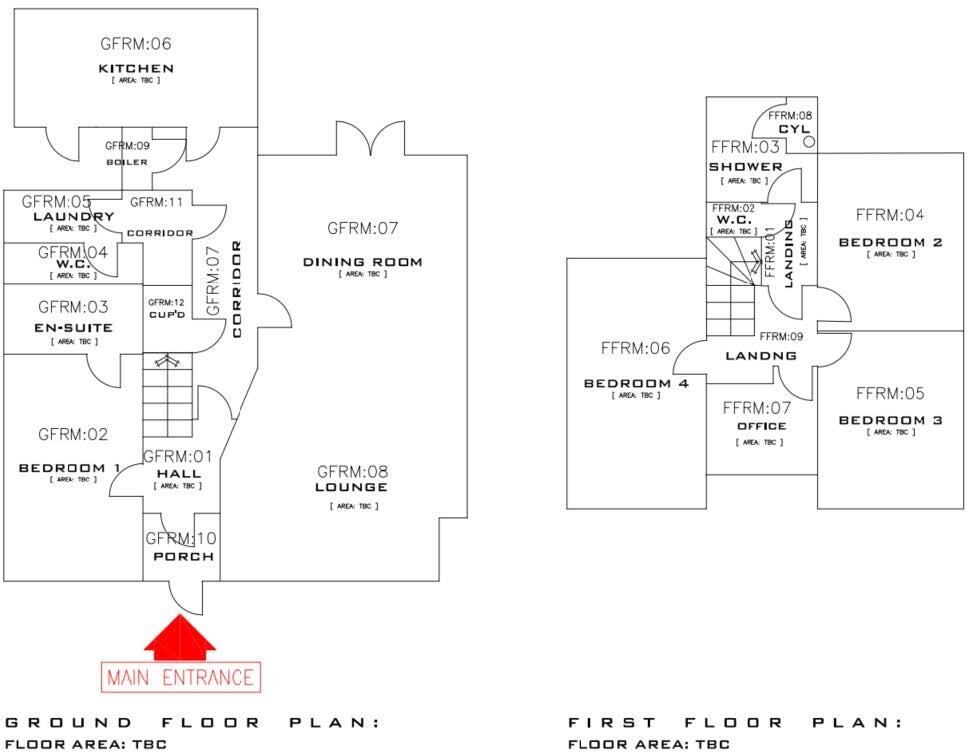
Auction date - 22/10/2025 & 23/10/2025. Possible Potential for Change of Use, subject to consents, Ground Floor: Reception/Dining Room, Bedroom with Ensuite, WC, Laundry, Kitchen, First Floor: Three Bedrooms, Office, Shower Room, WC, Approximate GIA 143 sq m (1,539 sq ft), Off Street Parking....
Property Oracle says ..
This retirement property located on Rosslyn Crescent in Wembley presents a good opportunity for buyers. The property is located in a good location with good access to transport and schools. The property does require some modernisation. It also benefits from a garden. The price seems reasonable.
Therefore, we give this property 6 / 10. *Disclaimer: This is our option and does constitute a recommendation or financial advice. Do your own research. *
- Price
- 7
- Condition
- 4
- Location
- 7
- Land
- 7
- Bedrooms
- 4
- Bathrooms
- 4
The heatmap indicates the level of crime in the area. The color of the heatmap indicates the crime severity and recency.
Metrics Year-on-Year
- Average area value
- 376,395.00 £Decreased by 3.15 %
- Average area rental value
- 1,667.00 £/moDecreased by 3.31 %
- Est rental Yield
- 5.31 %Decreased by 0.19 %
- Crime Rate
- 5.00 %Unchanged by 0.00 %
Agent Activity
Allsop created the listing.
Nearby Schools
| Name | Type | Ofsted | Distance |
|---|---|---|---|
| Buxlow Preparatory School | Other Independent School | 0.09 KM | |
| Wembley Primary Children'S Centre | Children's Centre | 0.23 KM | |
| Wembley Primary School | Community School | Good | 0.37 KM |
| Ashley College | Pupil Referral Unit | Good | 0.66 KM |
| Park Lane Primary School | Community School | Good | 0.73 KM |
Images
Nearby Streets
| Name | Average Price | Average Sqft | Distance |
|---|---|---|---|
| 2013-11-29 | £ 0 | 0 | 0.00 KM |
| Blenheim Gardens | £ 808,333 | 0 | 0.00 KM |
| Ashley Gardens | £ 649,950 | 0 | 0.00 KM |
| Pellatt Road | £ 0 | 0 | 0.00 KM |
| Public Right of Way 54 | £ 225,000 | 0 | 0.00 KM |
Nearby Transport
| Name | NLC | TLC | Distance |
|---|---|---|---|
| North Wembley | 1422 | NWB | 0.78 KM |
| Wembley Central | 1423 | WMB | 1.04 KM |
| Wembley Stadium | 1509 | WCX | 1.49 KM |
| South Kenton | 1453 | SOK | 1.59 KM |
| Sudbury And Harrow Road | 1483 | SUD | 2.19 KM |
Nearby Listings
| Address | Price | Type | Score | Distance |
|---|---|---|---|---|
| 9 Rosslyn Crescent, Wembley, Greater London, HA9 | £ 450,000 | BUY | 6 / 10 | 0.00 KM |
| Wembley, HA9 | £ 775,000 | BUY | 7 / 10 | 0.01 KM |
| Rosslyn Crescent, Wembley, HA9 | £ 850,000 | BUY | Unknown | 0.07 KM |
| Hirst Crescent, North Wembley, Wembley, HA9 | £ 365,000 | BUY | Unknown | 0.10 KM |
| Bell House, Hirst Crescent, Wembley, HA9 7HE | £ 339,000 | BUY | Unknown | 0.11 KM |
Nearby Properties
| Address | Price | Distance |
|---|---|---|
| 50 East Lane | £ 765,000 | 0.08 KM |
| 48 East Lane | £ 895,000 | 0.08 KM |
| 46 East Lane | £ 730,000 | 0.08 KM |
| 4 Castleton Gardens | £ 125,000 | 0.12 KM |
| 32 Rosslyn Crescent | £ 310,000 | 0.12 KM |