Shaw & Co says ..
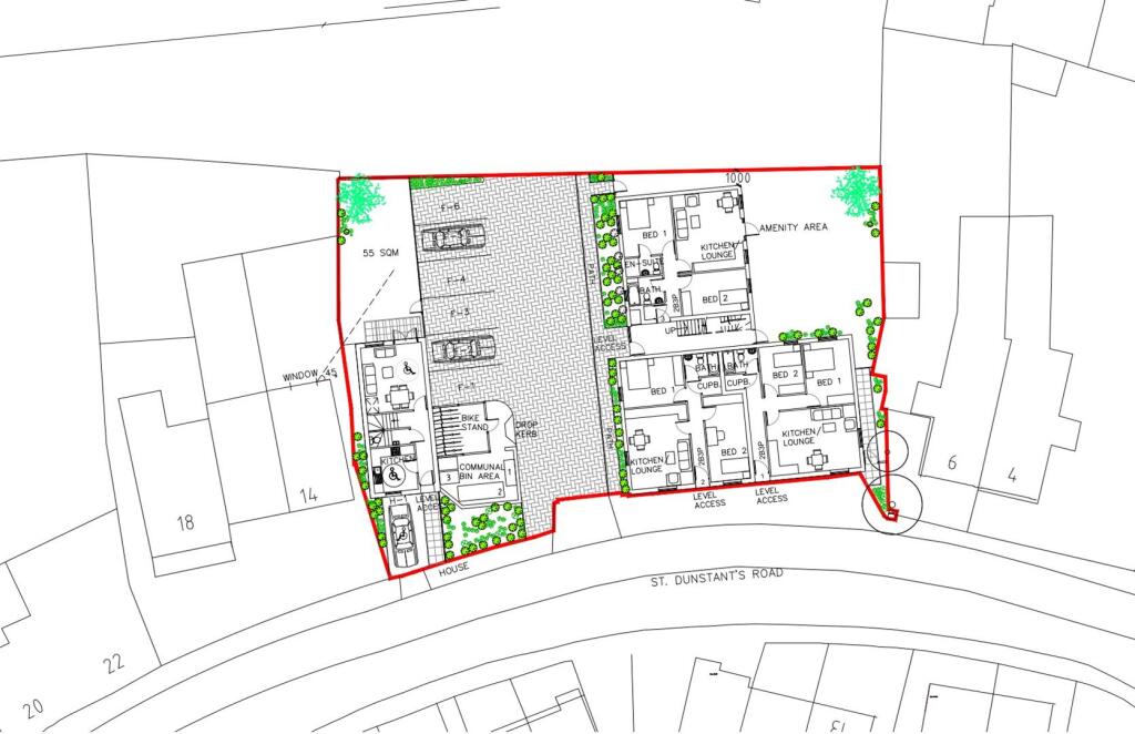
Freehold vacant parcel of land and existing building. Benefitting with planning permission approved to convert and further extend the existing building into 6 flats and construct a new 2 bedroom detached house. Located in a quiet residential location, close to amenities and Feltham High Street. L...
Property Oracle says ..
Therefore, we give this property 5 / 10. *Disclaimer: This is our option and does constitute a recommendation or financial advice. Do your own research. *
- Price
- 4
- Condition
- 0
- Location
- 7
- Land
- 6
- Bedrooms
- 0
- Bathrooms
- 0
The heatmap indicates the level of crime in the area. The color of the heatmap indicates the crime severity and recency.
Metrics Year-on-Year
- Average area value
- 307,492.00 £Decreased by 14.02 %
- Average area rental value
- 1,833.00 £/moIncreased by 10.36 %
- Est rental Yield
- 7.15 %Increased by 28.37 %
- Crime Rate
- 6.00 %Unchanged by 0.00 %
from 357,621.00 £
from 1,661.00 £/mo
from 5.57 %
from 6.00 %
Agent Activity
Shaw & Co marked this listing as sold.
Shaw & Co created the listing.
Nearby Schools
| Name | Type | Ofsted | Distance |
|---|---|---|---|
| Oak Hill Academy | Academy Converter | Good | 0.21 KM |
| Feltham Hill Infant And Nursery School | Community School | Outstanding | 0.23 KM |
| Edward Pauling Primary School | Community School | Outstanding | 0.77 KM |
| Southville Primary School | Community School | 1.12 KM | |
| Reach Academy Feltham | Free Schools | Outstanding | 1.20 KM |
Images
Nearby Streets
| Name | Average Price | Average Sqft | Distance |
|---|---|---|---|
| Avenue Road | £ 129,500 | 0 | 0.00 KM |
| Lancing Road | £ 0 | 0 | 0.00 KM |
| Grange Mews | £ 465,000 | 0 | 0.00 KM |
| Vineyard Road | £ 355,000 | 0 | 0.00 KM |
| Rose Gardens | £ 0 | 0 | 0.00 KM |
Nearby Transport
| Name | NLC | TLC | Distance |
|---|---|---|---|
| Feltham | 5559 | FEL | 1.64 KM |
| Sunbury | 5608 | SUU | 2.33 KM |
| Kempton Park Racecourse | 5678 | KMP | 2.39 KM |
| Upper Halliford | 5613 | UPH | 3.06 KM |
| Heathrow Terminal 4 | 7091 | HAF | 3.41 KM |
Nearby Listings
| Address | Price | Type | Score | Distance |
|---|---|---|---|---|
| St. Dunstans Road, Feltham | £ 1,075,000 | BUY | 5 / 10 | 0.00 KM |
| Bedfont Road, Feltham, TW13 | £ 300,000 | BUY | 5 / 10 | 0.04 KM |
| Westbourne Road, Feltham, Middlesex, TW13 | £ 500,000 | BUY | 7 / 10 | 0.12 KM |
| Bedfont Road, Feltham | £ 449,950 | BUY | 6 / 10 | 0.16 KM |
| Westbourne Road, Feltham, Middlesex, TW13 | £ 480,000 | BUY | 6 / 10 | 0.18 KM |
Nearby Properties
| Address | Price | Distance |
|---|---|---|
| 54 Bedfont Road | £ 235,000 | 0.16 KM |
| 26 Bedfont Road | £ 185,000 | 0.16 KM |
| 28 Bedfont Road | £ 485,000 | 0.16 KM |
| 22 Bedfont Road | £ 447,000 | 0.16 KM |
| 34 Bedfont Road | £ 410,000 | 0.16 KM |