St. Andrews Road, London
GO

St. Andrews Road, London

By Go View London

£ 700,000

Reviews

3 out of 5 stars

Go View London says ..

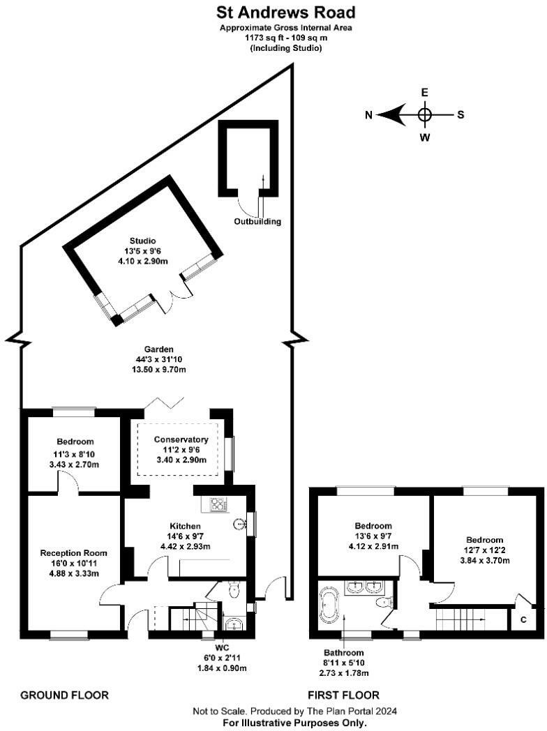
An excellent opportunity to purchase an exceptional three-bedroom freehold house in a sought-after road in East Acton. The property comes in excellent order throughout along with large private garden and studio to rear with no onward chain. In brief the property comes with three good siz...

Property Oracle says ..

This three-bedroom house located on St. Andrews Road in East Acton, Ealing presents a compelling opportunity for prospective buyers. The property’s significant features include a recently updated interior, and a sizeable garden with a dedicated studio. The photos showcase a modern kitchen with a seamless extension into the garden space, and a bright and airy feel throughout the property. The inclusion of the studio offers versatile uses, such as home office, guest accommodation or additional living space. The property’s proximity to well-regarded primary schools and several transport links enhances its appeal to families. While the lack of precise square footage data for nearby properties makes direct comparisons challenging, the listed price seems relatively competitive when the property’s condition, size, and additional features are considered. The property benefits from access to local transportation, such as Acton Central and Acton Main Line train stations, making it well-connected to various areas of London. In summary, this property offers a blend of modern convenience and suburban charm within a desirable area of West London. However, it is advised that buyers conduct their own thorough research into property values in the local market to verify the listed price against comparable properties before committing to purchase.

Therefore, we give this property 7 / 10. *Disclaimer: This is our option and does constitute a recommendation or financial advice. Do your own research. *

Price
7
Condition
8
Location
7
Land
6
Bedrooms
3
Bathrooms
1
Sqft (est)
1,173.27

The heatmap indicates the level of crime in the area. The color of the heatmap indicates the crime severity and recency.

Metrics Year-on-Year

Average area value
602,363.00 £
Decreased by 3.66 %
from 625,246.00 £
Est sale value
895,205.01 £
Increased by 25.49 %
from 713,348.16 £
Average area rental value
2,309.00 £/mo
Increased by 9.48 %
from 2,109.00 £/mo
Est letting value
2,346.54 £/mo
Unchanged by 0.00 %
from 2,346.54 £/mo
Est rental Yield
4.60 %
Increased by 13.58 %
from 4.05 %
Crime Rate
8.00 %
Unchanged by 0.00 %
from 8.00 %

Agent Activity

  • Go View London marked this listing as sold.

  • Go View London created the listing.

Nearby Schools

NameTypeOfstedDistance
John Perryn Primary SchoolCommunity SchoolGood0.49 KM
King Fahad AcademyOther Independent School0.50 KM
East Acton Primary SchoolCommunity SchoolGood0.70 KM
North West London Independent Special SchoolOther Independent Special SchoolOutstanding0.85 KM
Old Oak Primary SchoolCommunity SchoolGood0.94 KM

Images

GV- 36 St Andrews Rd (2).jpg GV- 36 St Andrews Rd (17).jpg GV- 36 St Andrews Rd (6).jpg GV- 36 St Andrews Rd (19).jpg GV- 36 St Andrews Rd (16).jpg GV- 36 St Andrews Rd (24).jpg GV- 36 St Andrews Rd (9).jpg GV- 36 St Andrews Rd (10).jpg GV- 36 St Andrews Rd (11).jpg GV- 36 St Andrews Rd (12).jpg GV- 36 St Andrews Rd (15).jpg GV- 36 St Andrews Rd (23).jpg GV- 36 St Andrews Rd (8).jpg GV- 36 St Andrews Rd (18).jpg GV- 36 St Andrews Rd (4).jpg GV- 36 St Andrews Rd (13).jpg GV- 36 St Andrews Rd (14).jpg GV- 36 St Andrews Rd (22).jpg GV- 36 St Andrews Rd (21).jpg GV- 36 St Andrews Rd (27).jpg GV- 36 St Andrews Rd (26).jpg

Nearby Streets

NameAverage PriceAverage SqftDistance
St. Andrews Road £ 000.00 KM
Glendun Court £ 000.00 KM
Taylor's Green £ 000.00 KM
A4000 £ 000.00 KM
Larch Avenue £ 000.00 KM

Nearby Transport

NameNLCTLCDistance
Acton Central1404ACC1.46 KM
Acton Main Line3000AML1.62 KM
Willesden Junction1457WIJ2.00 KM
Harlesden1521HDN2.32 KM
South Acton1452SAT2.71 KM

Nearby Listings

AddressPriceTypeScoreDistance
Muirfield, Acton £ 750,000BUY6 / 100.07 KM
Brassie Avenue, Golf Links, Acton, London £ 675,000BUY4 / 100.10 KM
The Fairway, East Acton, Acton, W3 £ 425,000BUY6 / 100.14 KM
Brassie Avenue, Acton £ 1,000,000BUY7 / 100.16 KM
Brassie Avenue, Acton, London, W3 £ 1,000,000BUY7 / 100.16 KM

Nearby Properties

AddressPriceDistance
12 Muirfield £ 287,0000.08 KM
24 Muirfield £ 310,0000.08 KM
25 Muirfield £ 290,0000.08 KM
7 Muirfield £ 720,0000.08 KM
17 Muirfield £ 325,0000.08 KM