Enfield Drive, Evercreech, Shepton Mallet, Somerset, BA4
By British Homesellers
£ 150,000
Reviews
3 out of 5 stars
British Homesellers says ..
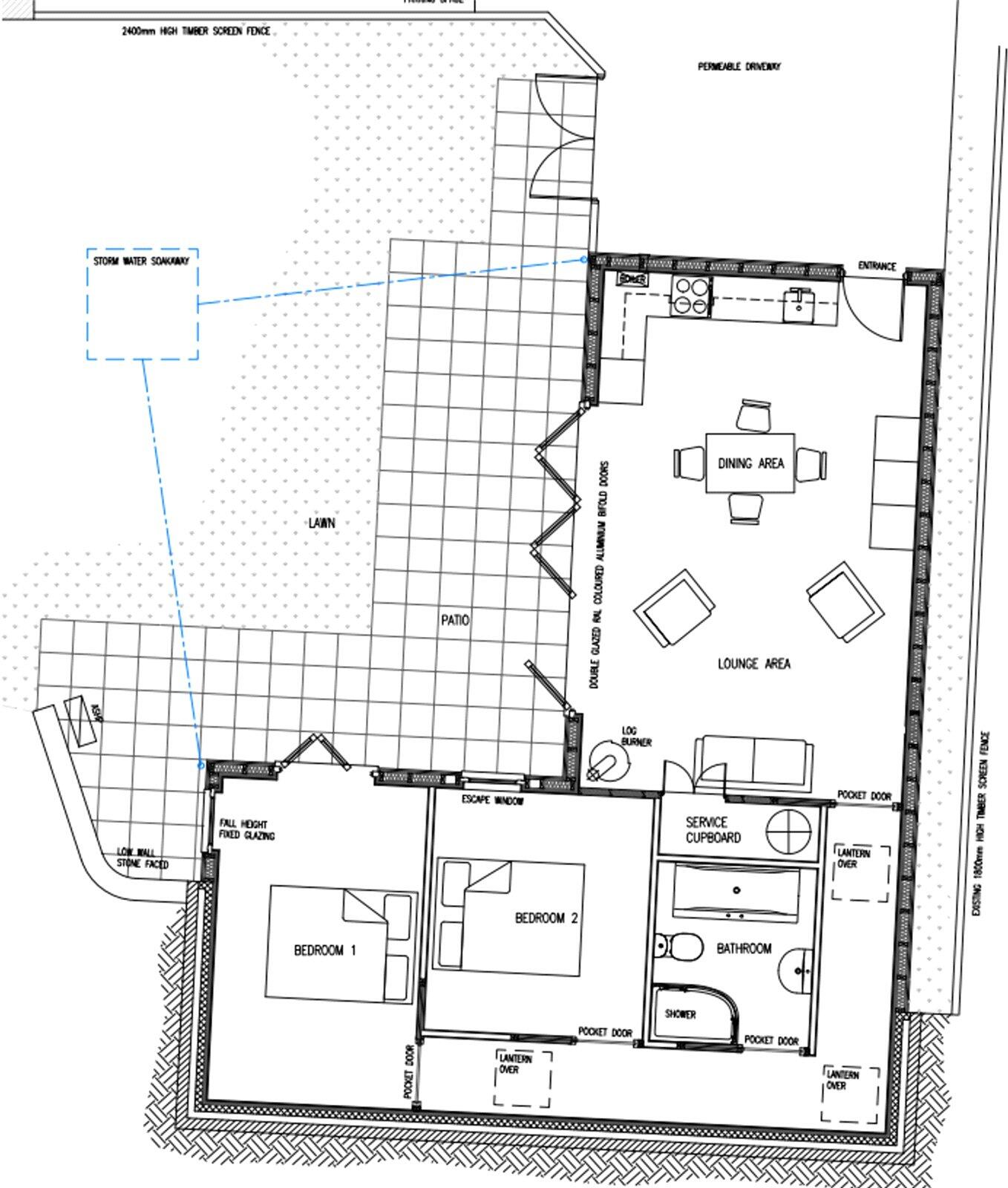
Approved Planning Permission for a Two-Bedroom Eco-Dwelling in Evercreech, Somerset This unique opportunity offers the construction of a highly sustainable, single-storey two-bedroom home on surplus back land within the quiet village of Evercreech, Somerset. Designed to blend seamlessl...
Property Oracle says ..
Therefore, we give this property 7 / 10. *Disclaimer: This is our option and does constitute a recommendation or financial advice. Do your own research. *
- Price
- 8
- Condition
- 0
- Location
- 7
- Land
- 7
- Bedrooms
- 0
- Bathrooms
- 0
- Sqft (est)
- 602.00
The heatmap indicates the level of crime in the area. The color of the heatmap indicates the crime severity and recency.
Metrics Year-on-Year
- Average area value
- 595,000.00 £Increased by 63.08 %
- Est sale value
- 165,550.00 £Decreased by 8.33 %
- Average area rental value
- 925.00 £/moDecreased by 3.95 %
- Est letting value
- 0.00 £/mo
- Est rental Yield
- 1.87 %Decreased by 41.01 %
- Crime Rate
- 31.00 %Unchanged by 0.00 %
from 364,846.00 £
from 180,600.00 £
from 963.00 £/mo
from 0.00 £/mo
from 3.17 %
from 31.00 %
Agent Activity
British Homesellers created the listing.
Nearby Schools
| Name | Type | Ofsted | Distance |
|---|---|---|---|
| Evercreech Church Of England Primary School | Voluntary Controlled School | Good | 0.67 KM |
| The Mendip School | Free Schools Special | Good | 2.01 KM |
| St Aldhelm'S Church Of England Primary School | Voluntary Aided School | Good | 4.22 KM |
| Ditcheat Primary School | Community School | Good | 4.30 KM |
| Whitstone | Academy Converter | Good | 5.59 KM |
Images
Nearby Streets
| Name | Average Price | Average Sqft | Distance |
|---|---|---|---|
| Kingfisher Road | £ 408,333 | 0 | 0.00 KM |
| Woodpecker Crescent | £ 0 | 0 | 0.00 KM |
| Pheasant Close | £ 262,000 | 0 | 0.00 KM |
| Prestleigh Road | £ 0 | 0 | 0.00 KM |
| Rope Walk | £ 0 | 0 | 0.00 KM |
Nearby Transport
| Name | NLC | TLC | Distance |
|---|---|---|---|
| Castle Cary | 5703 | CLC | 5.84 KM |
| Bruton | 5702 | BRU | 8.12 KM |
Nearby Listings
| Address | Price | Type | Score | Distance |
|---|---|---|---|---|
| Enfield Drive, Evercreech, Shepton Mallet, Somerset, BA4 | £ 150,000 | BUY | 7 / 10 | 0.00 KM |
| Evercreech, Shepton Mallet | £ 170,000 | BUY | 6 / 10 | 0.04 KM |
| Enfield Road, Evercreech, Shepton Mallet | £ 475,000 | BUY | 7 / 10 | 0.12 KM |
| Enfield Road, Evercreech, Shepton Mallet, BA4 | £ 385,000 | BUY | Unknown | 0.17 KM |
| Flat 9, Shepton Mallet | £ 135,000 | BUY | 5 / 10 | 0.18 KM |
Nearby Properties
| Address | Price | Distance |
|---|---|---|
| Fair Place | £ 220,000 | 0.04 KM |
| 6 Enfield Drive | £ 350,000 | 0.04 KM |
| 7 Enfield Drive | £ 188,000 | 0.04 KM |
| 4 Enfield Drive | £ 220,000 | 0.04 KM |
| Maestone | £ 199,950 | 0.04 KM |