Julian Marks says ..
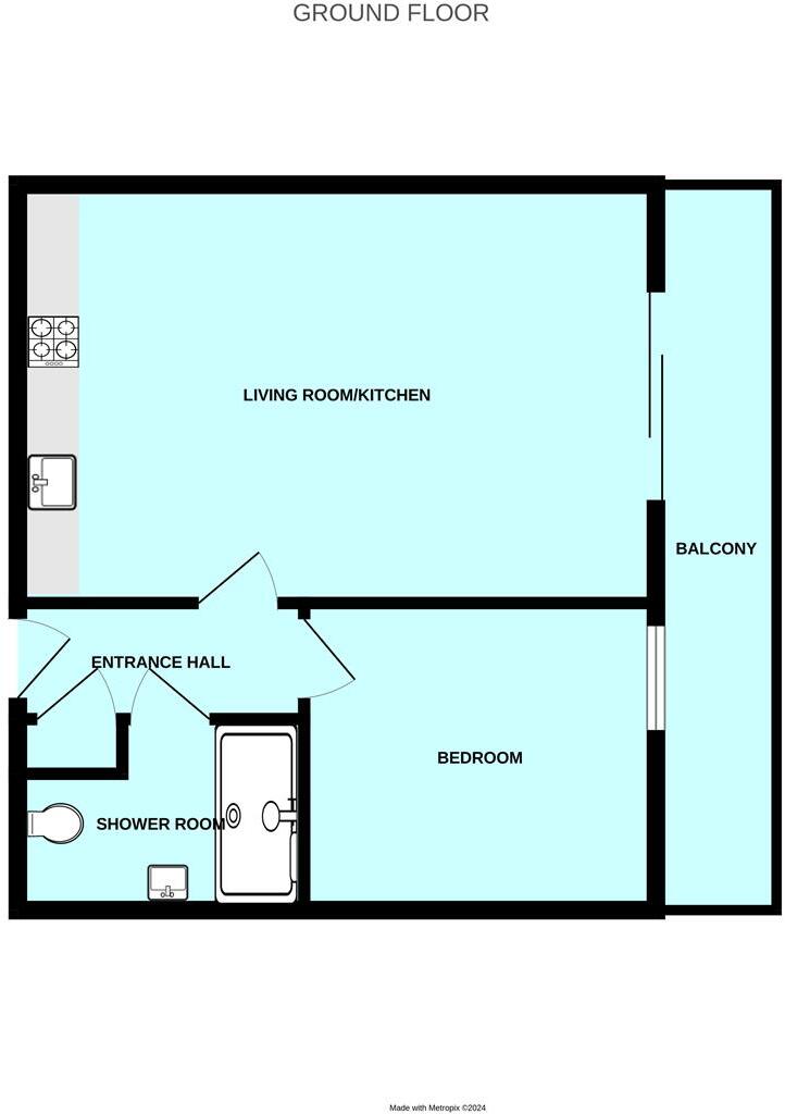
Spend time in viewing this purpose-built fourth floor flat located in a convenient central part of Plymouth. The accommodation briefly comprises an open-plan living/kitchen area with door leading out onto a balcony, double bedroom & bathroom. Double-glazing & gas central heating. No onward chain.
Property Oracle says ..
This one-bedroom, one-bathroom apartment in Plymouth offers a modern living space with waterfront views. Located in the St Peter And The Waterfront locality, it benefits from relative proximity to transportation and schools. The apartment’s interior appears clean and well-maintained, although a full survey would be recommended to assess the overall condition. The property’s lack of outdoor space and the limited comparable sales data make a definitive assessment of its value challenging. However, the price appears reasonable considering the location and apparent condition. Potential buyers should carefully consider the lack of plot size and conduct thorough due diligence before making an offer. The proximity to the waterfront is a significant positive, offering attractive views and potential lifestyle benefits. However, buyers should also research the local amenities and potential noise levels associated with a waterfront location. The nearby schools’ Ofsted ratings should also be investigated to assess their suitability for families.
Therefore, we give this property 5 / 10. *Disclaimer: This is our option and does constitute a recommendation or financial advice. Do your own research. *
- Price
- 7
- Condition
- 6
- Location
- 7
- Land
- 1
- Bedrooms
- 1
- Bathrooms
- 1
- Sqft (est)
- 520.00
The heatmap indicates the level of crime in the area. The color of the heatmap indicates the crime severity and recency.
Metrics Year-on-Year
- Average area value
- 219,909.00 £Decreased by 3.89 %
- Est sale value
- 148,200.00 £Increased by 14.46 %
- Average area rental value
- 987.00 £/moIncreased by 16.53 %
- Est letting value
- 520.00 £/mo
- Est rental Yield
- 5.39 %Increased by 21.40 %
- Crime Rate
- 13.00 %Unchanged by 0.00 %
Agent Activity
Julian Marks marked this listing as sold.
Julian Marks created the listing.
Nearby Schools
| Name | Type | Ofsted | Distance |
|---|---|---|---|
| Millbay Academy | Free Schools | 0.36 KM | |
| Manor Street Children'S Centre | Children's Centre | 0.38 KM | |
| High Street Primary Academy | Academy Sponsor Led | Serious Weaknesses | 0.56 KM |
| St George'S Cofe Primary Academy | Academy Sponsor Led | Good | 0.70 KM |
| St Peter'S Cofe Primary School | Academy Converter | 0.70 KM |
Images
Nearby Streets
| Name | Average Price | Average Sqft | Distance |
|---|---|---|---|
| Manor Street | £ 105,000 | 0 | 0.00 KM |
| Queen's Gate | £ 200,000 | 0 | 0.00 KM |
| Harmony Court Stairs | £ 0 | 0 | 0.00 KM |
| Victoria Avenue | £ 260,000 | 0 | 0.00 KM |
| Melbourne Place | £ 0 | 0 | 0.00 KM |
Nearby Transport
| Name | NLC | TLC | Distance |
|---|---|---|---|
| Plymouth | 3580 | PLY | 1.80 KM |
| Devonport | 3579 | DPT | 1.95 KM |
| Dockyard (Devonport) | 3588 | DOC | 2.65 KM |
| Keyham | 3571 | KEY | 3.51 KM |
| St Budeaux Ferry Road | 3590 | SBF | 4.98 KM |
Nearby Listings
| Address | Price | Type | Score | Distance |
|---|---|---|---|---|
| Brittany Street, Plymouth | £ 125,000 | BUY | 5 / 10 | 0.00 KM |
| Brittany Street, Plymouth | £ 70,000 | BUY | 6 / 10 | 0.01 KM |
| Brittany Street, Plymouth, Devon | £ 80,500 | BUY | 6 / 10 | 0.01 KM |
| Brittany Street, Plymouth, Devon | £ 120,000 | BUY | 6 / 10 | 0.02 KM |
| Brittany Street, Plymouth, PL1 | £ 170,000 | BUY | 6 / 10 | 0.02 KM |
Nearby Properties
| Address | Price | Distance |
|---|---|---|
| 175 Brittany Street | £ 95,000 | 0.01 KM |
| 161 Brittany Street | £ 129,000 | 0.01 KM |
| 113 Brittany Street | £ 156,800 | 0.01 KM |
| 173 Brittany Street | £ 159,950 | 0.01 KM |
| 111 Brittany Street | £ 195,000 | 0.02 KM |