Pearsons says ..
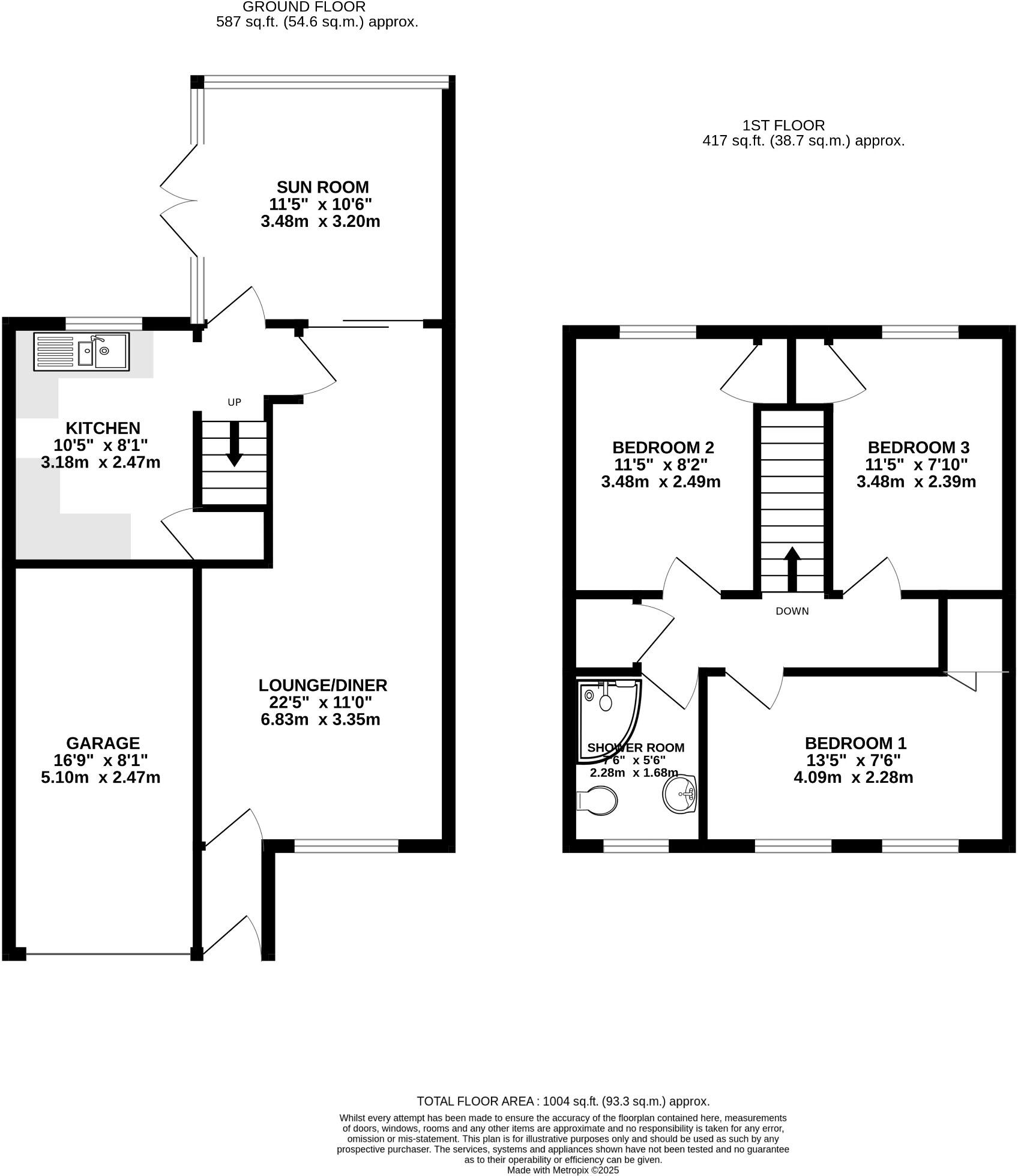
A three bedroom semi-detached house located in a cul de sac position to the west of Fareham town centre. The property's accommodation briefly comprises; entrance hall, full length lounge/diner, a double glazed sun room with a vaulted ceiling and a re-fitted kitchen. On the first floor, three well...
Property Oracle says ..
This is a three-bedroom semi-detached property located on Wild Ridings in Fareham. The property benefits from a garden and a conservatory. While the property is in reasonable condition, it would benefit from some modernisation. The property is located close to local schools and transport links. The asking price of £315,000 seems reasonable given the location and the size of the property.
Therefore, we give this property 7 / 10. *Disclaimer: This is our option and does constitute a recommendation or financial advice. Do your own research. *
- Price
- 8
- Condition
- 6
- Location
- 7
- Land
- 7
- Bedrooms
- 3
- Bathrooms
- 1
- Sqft (est)
- 910.84
The heatmap indicates the level of crime in the area. The color of the heatmap indicates the crime severity and recency.
Metrics Year-on-Year
- Average area value
- 629,500.00 £Increased by 11.99 %
- Est sale value
- 404,412.96 £Increased by 17.15 %
- Average area rental value
- 1,800.00 £/moIncreased by 14.07 %
- Est letting value
- 910.84 £/moUnchanged by 0.00 %
- Est rental Yield
- 3.43 %Increased by 1.78 %
- Crime Rate
- 3.00 %Unchanged by 0.00 %
Agent Activity
Pearsons created the listing.
Nearby Schools
| Name | Type | Ofsted | Distance |
|---|---|---|---|
| Heathfield Special School | Community Special School | Good | 0.34 KM |
| Ranvilles Junior School | Community School | Good | 0.38 KM |
| Ranvilles Infant School | Community School | Outstanding | 0.38 KM |
| St Francis Special School | Community Special School | Good | 0.40 KM |
| The Henry Cort Community College | Community School | Good | 1.37 KM |
Images
Nearby Streets
| Name | Average Price | Average Sqft | Distance |
|---|---|---|---|
| Sandisplatt | £ 254,975 | 0 | 0.00 KM |
| Rowan Way | £ 300,000 | 0 | 0.00 KM |
| Brendon Road | £ 269,950 | 0 | 0.00 KM |
| Poppy Gardens | £ 0 | 0 | 0.00 KM |
| The Poplars | £ 0 | 0 | 0.00 KM |
Nearby Transport
| Name | NLC | TLC | Distance |
|---|---|---|---|
| Fareham | 5900 | FRM | 2.84 KM |
| Swanwick | 5920 | SNW | 6.07 KM |
| Botley | 5894 | BOE | 8.73 KM |
Nearby Listings
| Address | Price | Type | Score | Distance |
|---|---|---|---|---|
| WILD RIDINGS, FAREHAM | £ 315,000 | BUY | 7 / 10 | 0.00 KM |
| Wild Ridings, Fareham | £ 349,995 | BUY | Unknown | 0.02 KM |
| Thornbury Close, Fareham, Hampshire, PO14 | £ 350,000 | BUY | 7 / 10 | 0.16 KM |
| The Timbers, Fareham, Hampshire, PO15 | £ 525,000 | BUY | 8 / 10 | 0.18 KM |
| The Timbers, Fareham | £ 715,000 | BUY | 7 / 10 | 0.20 KM |
Nearby Properties
| Address | Price | Distance |
|---|---|---|
| 58 Wild Ridings | £ 205,000 | 0.02 KM |
| 92 Wild Ridings | £ 202,000 | 0.02 KM |
| 78 Wild Ridings | £ 300,000 | 0.02 KM |
| 64 Wild Ridings | £ 275,000 | 0.02 KM |
| 62 Wild Ridings | £ 235,000 | 0.02 KM |