Chancellors says ..
Two bedroom retirement apartment positioned within a desirable development, well presented throughout and offered with no onward chain. Within a highly regarded community, guest suites, organised communal events.
Property Oracle says ..
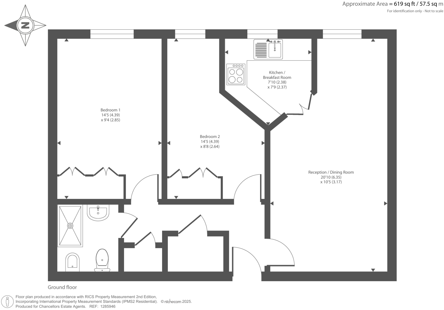
This retirement property is located in Headington, Oxford, a desirable area with good access to transportation links, schools, and amenities. The property itself is a two-bedroom, one-bathroom apartment with a relatively small square footage (619 sqft) compared to the area average (1489 sqft). The images show the property to be in reasonable condition, though the kitchen and bathroom appear dated and might benefit from some modernisation. The apartment benefits from communal gardens, as shown in the images. At £300,000, the property is significantly below the average price for the area (£536,963), however, this is likely due to its size and the fact that it is a retirement property. Considering the location, condition, and size, the price may represent reasonable value for money, especially for a retirement property.
Therefore, we give this property 6 / 10. *Disclaimer: This is our option and does constitute a recommendation or financial advice. Do your own research. *
- Price
- 7
- Condition
- 7
- Location
- 8
- Land
- 4
- Bedrooms
- 2
- Bathrooms
- 1
- Sqft (est)
- 619.00
The heatmap indicates the level of crime in the area. The color of the heatmap indicates the crime severity and recency.
Metrics Year-on-Year
- Average area value
- 830,000.00 £Increased by 35.78 %
- Est sale value
- 510,675.00 £Increased by 59.57 %
- Average area rental value
- 2,009.00 £/moIncreased by 17.62 %
- Est letting value
- 619.00 £/moUnchanged by 0.00 %
- Est rental Yield
- 2.90 %Decreased by 13.43 %
- Crime Rate
- 7.00 %Unchanged by 0.00 %
Agent Activity
Chancellors created the listing.
Nearby Schools
| Name | Type | Ofsted | Distance |
|---|---|---|---|
| Headington School | Other Independent School | 0.38 KM | |
| Oxford Brookes University | Higher Education Institutions | Good | 0.71 KM |
| Cheney School | Academy Converter | Good | 0.75 KM |
| Rye St Antony | Other Independent School | 0.84 KM | |
| Ruskin College | Further Education | Good | 0.93 KM |
Images
Nearby Streets
| Name | Average Price | Average Sqft | Distance |
|---|---|---|---|
| Brookside | £ 0 | 0 | 0.00 KM |
| Ingle Close | £ 775,000 | 0 | 0.00 KM |
| North Way | £ 0 | 0 | 0.00 KM |
| Old Road | £ 850,000 | 0 | 0.00 KM |
| Cecil Sharp Place | £ 0 | 0 | 0.00 KM |
Nearby Transport
| Name | NLC | TLC | Distance |
|---|---|---|---|
| Oxford | 3115 | OXF | 5.76 KM |
| Islip | 3110 | ISP | 7.81 KM |
| Oxford Parkway | 3121 | OXP | 8.03 KM |
| Radley | 3118 | RAD | 8.41 KM |
Nearby Listings
| Address | Price | Type | Score | Distance |
|---|---|---|---|---|
| Headington, Oxford, OX3 | £ 300,000 | BUY | 6 / 10 | 0.00 KM |
| London Road, Headington, Oxford | £ 145,000 | BUY | Unknown | 0.02 KM |
| London Road, Headington, OX3 | £ 299,000 | BUY | 7 / 10 | 0.02 KM |
| The Albany, London Road, Headington | £ 220,000 | BUY | Unknown | 0.05 KM |
| Headington, Oxford, OX3 | £ 190,000 | BUY | Unknown | 0.06 KM |
Nearby Properties
| Address | Price | Distance |
|---|---|---|
| 4 Sandfield Road | £ 758,000 | 0.10 KM |
| 6 Sandfield Road | £ 1,015,000 | 0.10 KM |
| 7 Sandfield Road | £ 482,000 | 0.10 KM |
| 2 Sandfield Road | £ 725,000 | 0.10 KM |
| 35 Woodlands Close | £ 249,950 | 0.18 KM |