OC
Dingle Close, Sea Mills, Bristol
By Ocean
£ 425,000
Ocean says ..
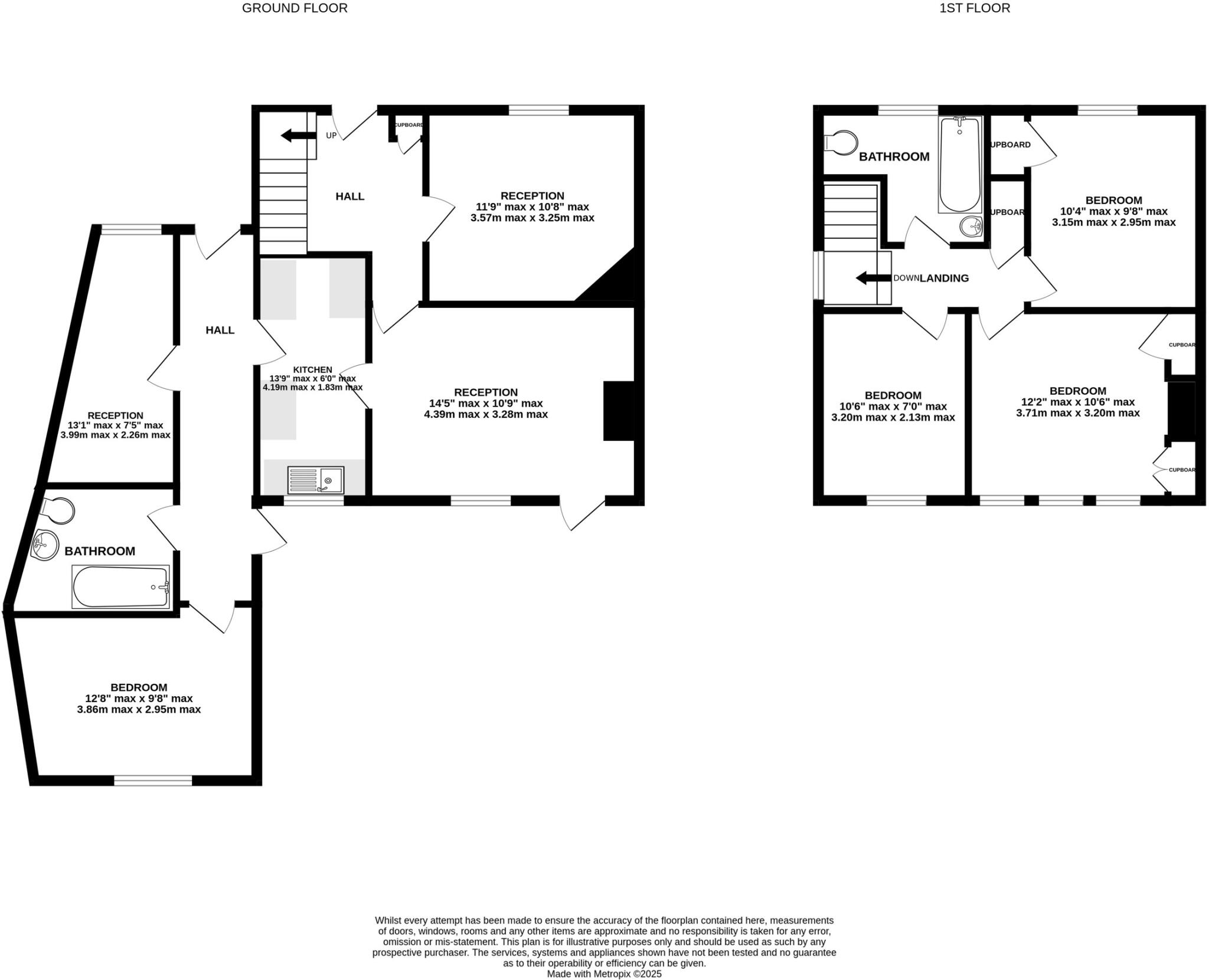
Extended semi-detached home with flexible living accommodation as a four bedroom house or three bedroom with annexe living space.
- Bedrooms
- 4
- Bathrooms
- 2
The heatmap indicates the level of crime in the area. The color of the heatmap indicates the crime severity and recency.
Metrics Year-on-Year
- Average area value
- 1,248,571.00 £Increased by 64.32 %
- Average area rental value
- 1,599.00 £/moDecreased by 19.61 %
- Est rental Yield
- 1.54 %Decreased by 50.96 %
- Crime Rate
- 29.00 %Unchanged by 0.00 %
from 759,864.00 £
from 1,989.00 £/mo
from 3.14 %
from 29.00 %
Agent Activity
Ocean created the listing.
Nearby Schools
| Name | Type | Ofsted | Distance |
|---|---|---|---|
| Sea Mills Primary School | Community School | Good | 0.39 KM |
| Sea Mills Primary School And Children'S Centre | Children's Centre | 0.40 KM | |
| Stoke Bishop Church Of England Primary School | Academy Converter | Good | 0.88 KM |
| Kingsweston School | Community Special School | Good | 1.51 KM |
| Grace Garden School | Other Independent Special School | 1.91 KM |
Images
Nearby Streets
| Name | Average Price | Average Sqft | Distance |
|---|---|---|---|
| Saint Edyths Road | £ 575,000 | 0 | 0.00 KM |
| Mead Way | £ 0 | 0 | 0.00 KM |
| East Parade | £ 395,000 | 0 | 0.00 KM |
| Ashcroft Road | £ 0 | 0 | 0.00 KM |
| Bell Barn | £ 0 | 0 | 0.00 KM |
Nearby Transport
| Name | NLC | TLC | Distance |
|---|---|---|---|
| Sea Mills | 3254 | SML | 0.78 KM |
| Shirehampton | 3206 | SHH | 3.52 KM |
| Clifton Down | 3202 | CFN | 4.66 KM |
| Redland | 3247 | RDA | 5.73 KM |
| Avonmouth | 3200 | AVN | 5.94 KM |
Nearby Listings
| Address | Price | Type | Score | Distance |
|---|---|---|---|---|
| Dingle Close, Sea Mills, Bristol | £ 425,000 | BUY | Unknown | 0.00 KM |
| Shirehampton Road, BRISTOL | £ 475,000 | BUY | 8 / 10 | 0.08 KM |
| Failand Walk, Bristol, Somerset, BS9 | £ 365,000 | BUY | 8 / 10 | 0.10 KM |
| Brookleaze, Bristol | £ 375,000 | BUY | 8 / 10 | 0.11 KM |
| Shirehampton Road, Sea Mills, Bristol | £ 250,000 | BUY | Unknown | 0.11 KM |
Nearby Properties
| Address | Price | Distance |
|---|---|---|
| 13 Failand Walk | £ 301,995 | 0.07 KM |
| 129b Shirehampton Road | £ 108,000 | 0.08 KM |
| 127a Shirehampton Road | £ 130,000 | 0.08 KM |
| 129a Shirehampton Road | £ 110,000 | 0.08 KM |
| 133 Shirehampton Road | £ 326,500 | 0.08 KM |