eXp UK says ..
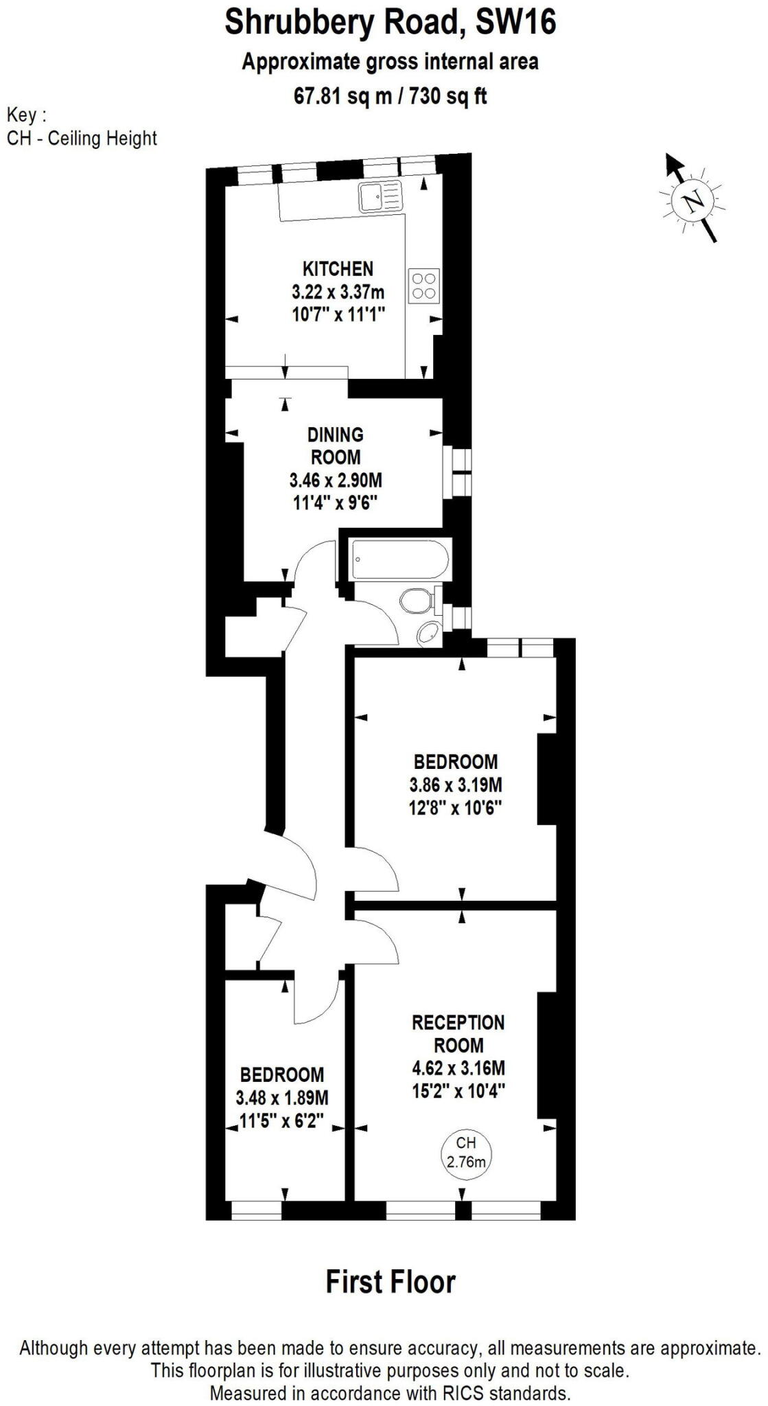
Quote CD0819 For All Enquiries Guide Price £350k - £375k This spacious and characterful first-floor Victorian conversion offers over 700 sq ft of beautifully presented living space, combining period charm with thoughtful modern updates. Set within an attractive...
Property Oracle says ..
This property is a 2-bedroom flat in Streatham, South London. While the list price is below the average for the area, comparable properties suggest it may be reasonably priced considering its size. The property appears to be in good condition and benefits from a convenient location near transport links and schools. The small plot size is a factor to consider.
Therefore, we give this property 7 / 10. *Disclaimer: This is our option and does constitute a recommendation or financial advice. Do your own research. *
- Price
- 7
- Condition
- 8
- Location
- 9
- Land
- 4
- Bedrooms
- 2
- Bathrooms
- 1
- Sqft (est)
- 178.14
- Lot (est)
- 730.00
The heatmap indicates the level of crime in the area. The color of the heatmap indicates the crime severity and recency.
Metrics Year-on-Year
- Average area value
- 471,429.00 £Decreased by 10.60 %
- Est sale value
- 117,394.26 £Increased by 3.29 %
- Average area rental value
- 2,093.00 £/moIncreased by 9.07 %
- Est letting value
- 356.28 £/moUnchanged by 0.00 %
- Est rental Yield
- 5.33 %Increased by 21.97 %
- Crime Rate
- 9.00 %Unchanged by 0.00 %
Agent Activity
eXp UK created the listing.
Nearby Schools
| Name | Type | Ofsted | Distance |
|---|---|---|---|
| Sunnyhill Primary School And Children'S Centre | Children's Centre | 0.67 KM | |
| St Andrew'S Catholic Primary School | Voluntary Aided School | Outstanding | 0.70 KM |
| Streatham Hub Children'S Centre | Children's Centre | 0.81 KM | |
| St Leonard'S Church Of England Primary School | Academy Converter | 0.88 KM | |
| The Livity School | Community Special School | Good | 0.90 KM |
Images
Nearby Streets
| Name | Average Price | Average Sqft | Distance |
|---|---|---|---|
| Sunnyhill Road | £ 325,000 | 0 | 0.00 KM |
| Cherry Tree Drive | £ 0 | 0 | 0.00 KM |
| Barrow Road | £ 0 | 0 | 0.00 KM |
| Leigham Court Road | £ 0 | 0 | 0.00 KM |
| Tooting Bec Road | £ 400,000 | 0 | 0.00 KM |
Nearby Transport
| Name | NLC | TLC | Distance |
|---|---|---|---|
| Streatham | 5383 | STE | 0.60 KM |
| Streatham Hill | 5435 | SRH | 0.91 KM |
| Streatham Common | 5384 | SRC | 1.53 KM |
| Norbury | 5428 | NRB | 2.19 KM |
| West Norwood | 5438 | WNW | 2.71 KM |
Nearby Listings
| Address | Price | Type | Score | Distance |
|---|---|---|---|---|
| Shrubbery Road, Streatham, SW16 | £ 350,000 | BUY | 7 / 10 | 0.00 KM |
| Shrubbery Road, Streatham | £ 300,000 | BUY | 5 / 10 | 0.00 KM |
| Shrubbery Road, SW16 | £ 600,000 | BUY | 5 / 10 | 0.01 KM |
| Shrubbery Road, London, SW16 | £ 550,000 | BUY | 7 / 10 | 0.02 KM |
| Shrubbery Road, Streatham | £ 525,000 | BUY | 6 / 10 | 0.02 KM |
Nearby Properties
| Address | Price | Distance |
|---|---|---|
| 51 Shrubbery Road | £ 265,000 | 0.01 KM |
| 49b Shrubbery Road | £ 215,000 | 0.01 KM |
| 31 Shrubbery Road | £ 224,000 | 0.01 KM |
| 67 Shrubbery Road | £ 267,000 | 0.01 KM |
| 13a Shrubbery Road | £ 302,000 | 0.01 KM |