Dart & Partners says ..
*Superb sized plot* A unique detached bungalow set in a "tucked away" predominantly west facing wrap around plot extending to over a third of an acre and with tranquil brook. Huge potential to improve further.
Property Oracle says ..
Therefore, we give this property 7 / 10. *Disclaimer: This is our option and does constitute a recommendation or financial advice. Do your own research. *
- Price
- 7
- Condition
- 7
- Location
- 8
- Land
- 9
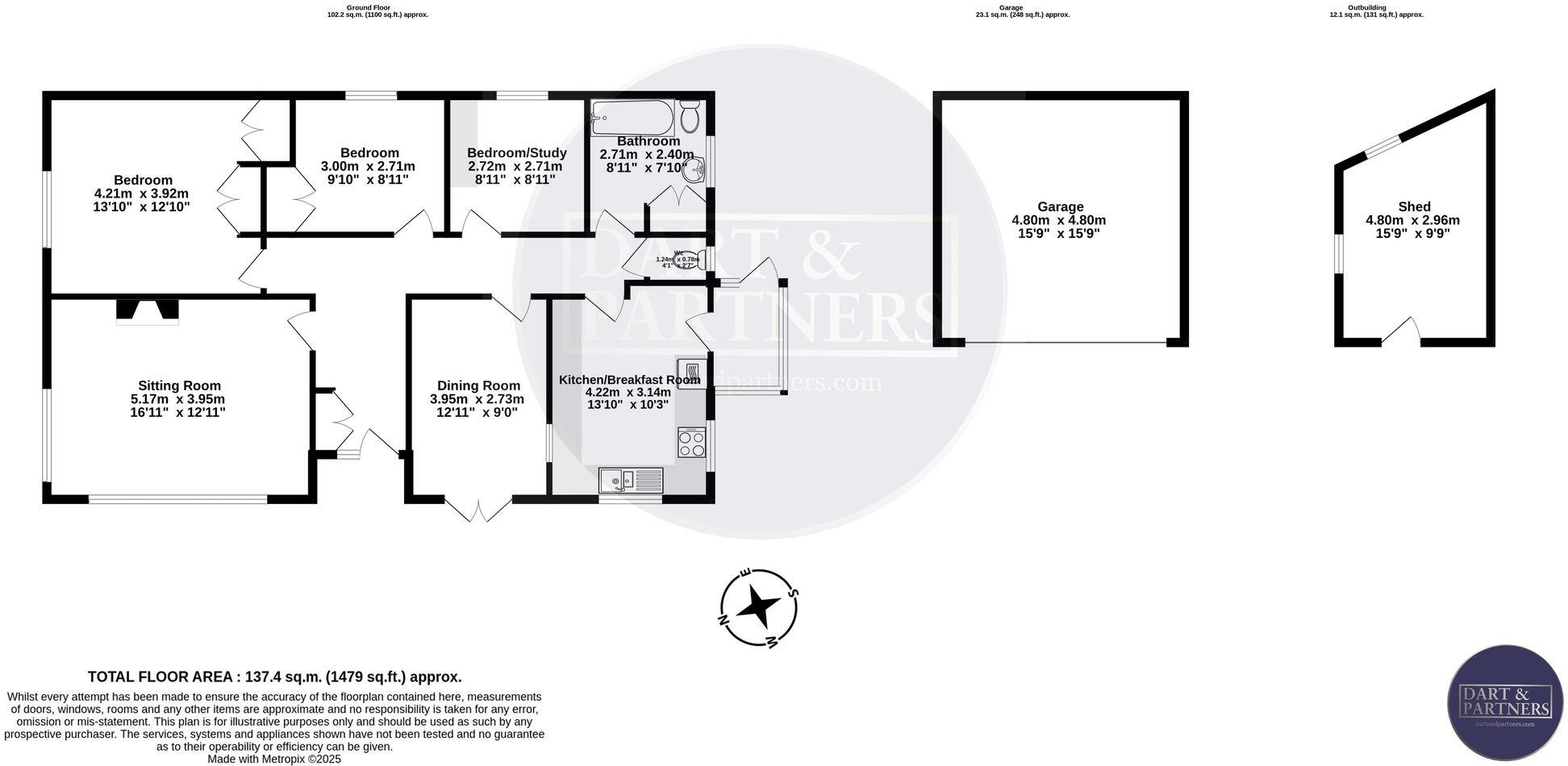
- Bedrooms
- 3
- Bathrooms
- 1
- Sqft (est)
- 1,478.96
The heatmap indicates the level of crime in the area. The color of the heatmap indicates the crime severity and recency.
Metrics Year-on-Year
- Average area value
- 305,488.00 £Decreased by 9.52 %
- Est sale value
- 520,593.92 £Increased by 33.84 %
- Average area rental value
- 1,004.00 £/moDecreased by 1.08 %
- Est letting value
- 1,478.96 £/mo
- Est rental Yield
- 3.94 %Increased by 9.14 %
- Crime Rate
- 0.00 %
from 337,636.00 £
from 388,966.48 £
from 1,015.00 £/mo
from 0.00 £/mo
from 3.61 %
from 0.00 %
Agent Activity
Dart & Partners created the listing.
Nearby Schools
| Name | Type | Ofsted | Distance |
|---|---|---|---|
| Shaldon Primary School | Academy Converter | 0.90 KM | |
| Teignmouth Children'S Centre | Children's Centre | 1.31 KM | |
| Dawlish Children'S Centre | Children's Centre | 1.31 KM | |
| Our Lady And St Patrick'S Roman Catholic Primary School | Academy Sponsor Led | Good | 1.69 KM |
| Teignmouth Community School, Mill Lane | Academy Converter | Good | 1.74 KM |
Images
Nearby Streets
| Name | Average Price | Average Sqft | Distance |
|---|---|---|---|
| Brook Lane | £ 865,000 | 0 | 0.00 KM |
| The Strand | £ 0 | 0 | 0.00 KM |
| Oystercatcher Court | £ 0 | 0 | 0.00 KM |
| The Embankment | £ 0 | 0 | 0.00 KM |
| Home Yards | £ 420,000 | 0 | 0.00 KM |
Nearby Transport
| Name | NLC | TLC | Distance |
|---|---|---|---|
| Teignmouth | 3430 | TGM | 2.69 KM |
| Dawlish | 3408 | DWL | 7.48 KM |
| Torre | 3432 | TRR | 7.91 KM |
| Torquay | 3434 | TQY | 9.03 KM |
| Newton Abbot | 3426 | NTA | 9.16 KM |
Nearby Listings
| Address | Price | Type | Score | Distance |
|---|---|---|---|---|
| Brook Lane, Shaldon, TQ14 | £ 700,000 | BUY | 7 / 10 | 0.00 KM |
| Brook Lane, Shaldon, TQ14 | £ 1,200,000 | BUY | 8 / 10 | 0.10 KM |
| Salty Lane, Shaldon, Devon | £ 650,000 | BUY | 8 / 10 | 0.25 KM |
| Higher Ringmore Road, Shaldon, TQ14 | £ 450,000 | BUY | 8 / 10 | 0.27 KM |
| Palk Close, Shaldon, Devon | £ 415,000 | BUY | 6 / 10 | 0.28 KM |
Nearby Properties
| Address | Price | Distance |
|---|---|---|
| Virginia Cottage | £ 722,500 | 0.09 KM |
| Savoyards | £ 700,000 | 0.09 KM |
| Brimhill | £ 493,000 | 0.09 KM |
| Littlecote | £ 457,500 | 0.09 KM |
| Mountrath | £ 335,000 | 0.09 KM |