Walter & Mair says ..
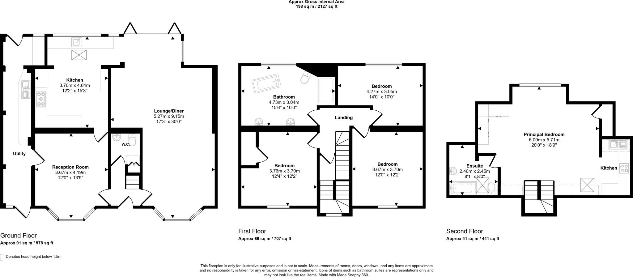
Full of character and period charm, this impressive double-fronted detached home offers generous and versatile accommodation arranged over three floors, situated within walking distance of local shops, open green spaces and excellent transport links into London.
Property Oracle says ..
This detached property on Chipstead Valley Road in Coulsdon presents a well-maintained family home with a generous garden. The interior features modern amenities, including updated bathrooms and a functional kitchen. Its location offers convenient access to local schools, transportation, and amenities, making it a desirable residence for families seeking a balance of suburban tranquility and urban accessibility. The property’s price is competitive, reflecting its condition and the overall market dynamics in Coulsdon.
Therefore, we give this property 7 / 10. *Disclaimer: This is our option and does constitute a recommendation or financial advice. Do your own research. *
- Price
- 7
- Condition
- 7
- Location
- 7
- Land
- 8
- Bedrooms
- 4
- Bathrooms
- 2
The heatmap indicates the level of crime in the area. The color of the heatmap indicates the crime severity and recency.
Metrics Year-on-Year
- Average area value
- 1,268,750.00 £Increased by 29.81 %
- Average area rental value
- 2,317.00 £/moIncreased by 19.00 %
- Est rental Yield
- 2.19 %Decreased by 8.37 %
- Crime Rate
- 10.00 %Unchanged by 0.00 %
Agent Activity
Walter & Mair created the listing.
Nearby Schools
| Name | Type | Ofsted | Distance |
|---|---|---|---|
| St Aidan'S Catholic Primary School | Academy Converter | Good | 0.68 KM |
| Smitham Primary School | Community School | Good | 0.89 KM |
| Chipstead Valley Primary School | Academy Converter | 0.97 KM | |
| Woodcote High School | Academy Converter | Good | 1.83 KM |
| Woodcote Primary School | Academy Converter | 1.85 KM |
Images
Nearby Streets
| Name | Average Price | Average Sqft | Distance |
|---|---|---|---|
| Brigstock Road | £ 625,000 | 0 | 0.00 KM |
| Bennett Close | £ 600,000 | 0 | 0.00 KM |
| Downland Close | £ 0 | 0 | 0.00 KM |
| Lime Tree Avenue | £ 0 | 0 | 0.00 KM |
| Chelwood Close | £ 750,000 | 0 | 0.00 KM |
Nearby Transport
| Name | NLC | TLC | Distance |
|---|---|---|---|
| Woodmansterne | 5441 | WME | 0.26 KM |
| Coulsdon South | 5408 | CDS | 1.58 KM |
| Coulsdon Town | 5382 | CDN | 1.98 KM |
| Chipstead | 5353 | CHP | 2.19 KM |
| Reedham (London) | 5431 | RHM | 3.46 KM |
Nearby Listings
| Address | Price | Type | Score | Distance |
|---|---|---|---|---|
| Coulsdon, Surrey | £ 750,000 | BUY | 7 / 10 | 0.00 KM |
| Chipstead Valley Road, Coulsdon | £ 612,500 | BUY | Unknown | 0.02 KM |
| Chipstead Valley Road, Coulsdon | £ 650,000 | BUY | 7 / 10 | 0.03 KM |
| Chipstead Valley Road, Coulsdon | £ 600,000 | BUY | 7 / 10 | 0.03 KM |
| Rickman Hill, Coulsdon, CR5 | £ 625,000 | BUY | Unknown | 0.09 KM |
Nearby Properties
| Address | Price | Distance |
|---|---|---|
| 233 Chipstead Valley Road | £ 260,000 | 0.05 KM |
| 231 Chipstead Valley Road | £ 90,000 | 0.05 KM |
| 233a Chipstead Valley Road | £ 174,000 | 0.05 KM |
| 231b Chipstead Valley Road | £ 250,000 | 0.05 KM |
| 253 Chipstead Valley Road | £ 274,000 | 0.06 KM |