Jackie Stanley says ..
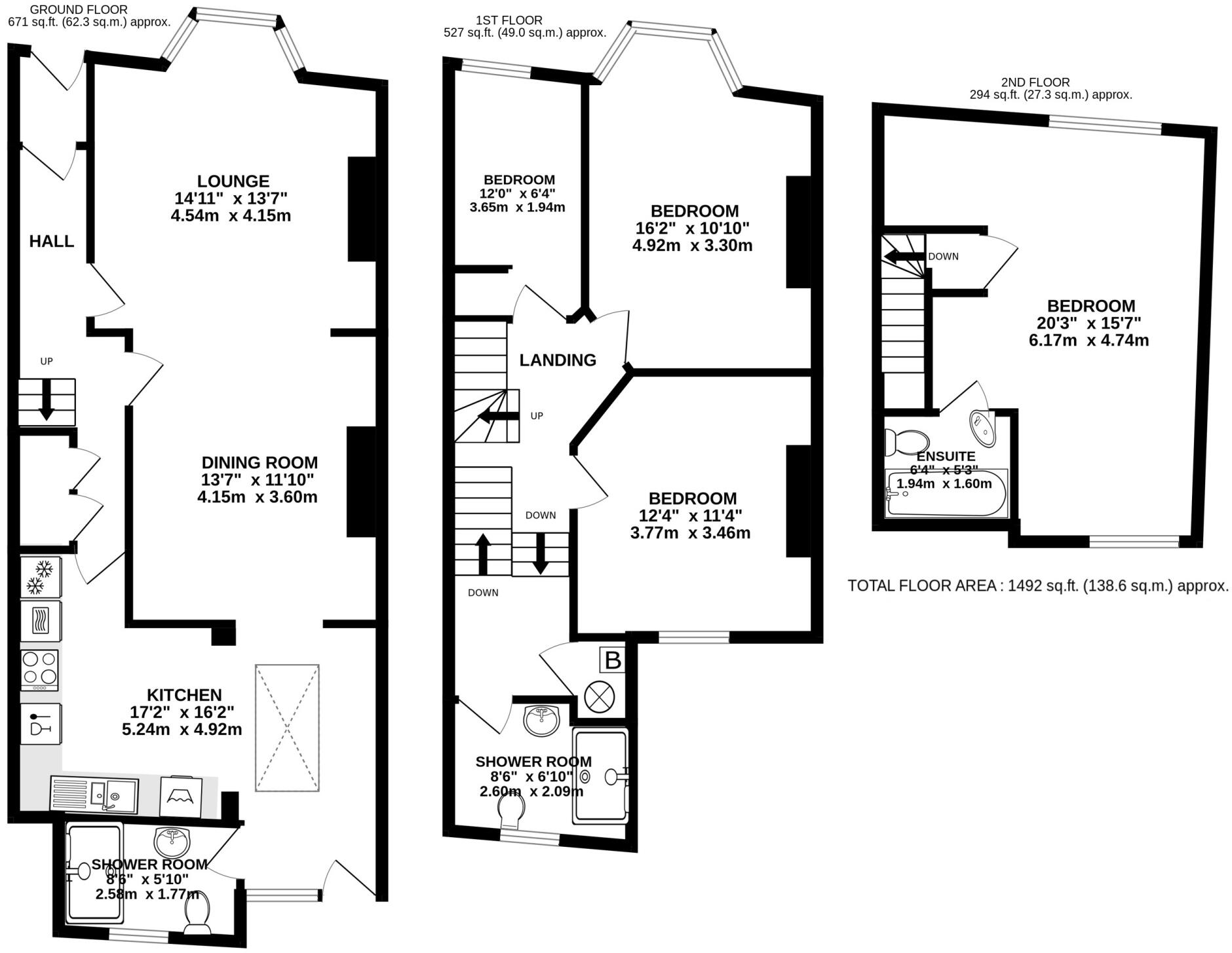
Positioned in a convenient and sought after old town area of Padstow moments from the harbour, Heron Cottage is an attractive end terrace Victorian townhouse. Behind its imposing façade, you'll find fully refurbished accommodation, a host of traditional features, modern fixtures and fittings ...
Property Oracle says ..
This four-bedroom, three-bathroom Victorian townhouse located in the sought-after Padstow, Cornwall, is presented in excellent condition after a recent refurbishment. The property boasts a modern and stylish interior, complete with updated kitchen and bathrooms, adding to its appeal to both residents and potential holiday home buyers. While the property’s location in Padstow’s old town offers close proximity to the harbour and local amenities and several schools, the lack of detailed information about local transportation options necessitates further investigation. The included garden appears to be relatively small, not exceptionally extensive. However, the current list price appears largely consistent with surrounding property prices within Padstow, although precise comparisons are hampered by the unavailability of detailed square footage information. Overall, the property presents a desirable package but may be more attractive to buyers with specific needs given the size of the garden and lack of direct transport links. This makes a well-informed property appraisal require a more in depth analysis.
Therefore, we give this property 6 / 10. *Disclaimer: This is our option and does constitute a recommendation or financial advice. Do your own research. *
- Price
- 7
- Condition
- 7
- Location
- 8
- Land
- 4
- Bedrooms
- 4
- Bathrooms
- 3
- Sqft (est)
- 1,491.88
The heatmap indicates the level of crime in the area. The color of the heatmap indicates the crime severity and recency.
Metrics Year-on-Year
- Average area value
- 1,382,727.00 £Increased by 100.01 %
- Est sale value
- 1,214,390.32 £Increased by 36.58 %
- Average area rental value
- 1,638.00 £/moIncreased by 35.60 %
- Est letting value
- 0.00 £/moDecreased by 100.00 %
- Est rental Yield
- 1.42 %Decreased by 32.38 %
- Crime Rate
- 129.00 %Unchanged by 0.00 %
Agent Activity
Jackie Stanley created the listing.
Nearby Schools
| Name | Type | Ofsted | Distance |
|---|---|---|---|
| Padstow School | Academy Converter | Requires improvement | 0.85 KM |
| St Issey Church Of England Primary School | Academy Converter | 4.01 KM | |
| St Minver School | Academy Converter | Good | 5.11 KM |
| St Merryn School | Academy Converter | Good | 6.60 KM |
| Trevisker Primary School | Academy Converter | Good | 8.15 KM |
Images
Nearby Streets
| Name | Average Price | Average Sqft | Distance |
|---|---|---|---|
| School Hill | £ 815,000 | 0 | 0.00 KM |
| Mill Road | £ 550,000 | 0 | 0.00 KM |
| Hill Street | £ 425,000 | 0 | 0.00 KM |
| Dennis Road | £ 977,661 | 0 | 0.00 KM |
| Station Road | £ 974,975 | 0 | 0.00 KM |
Nearby Listings
| Address | Price | Type | Score | Distance |
|---|---|---|---|---|
| New Street, Padstow, PL28 | £ 815,000 | BUY | 6 / 10 | 0.00 KM |
| Hill Street, Padstow, Cornwall, PL28 | £ 575,000 | BUY | 8 / 10 | 0.05 KM |
| An Dyji, Padstow, PL28 | £ 1,150,000 | BUY | Unknown | 0.10 KM |
| Mill Road, Padstow, Cornwall, PL28 | £ 600,000 | BUY | 5 / 10 | 0.11 KM |
| St Petroc, Padstow, PL28 | £ 699,995 | BUY | 7 / 10 | 0.11 KM |
Nearby Properties
| Address | Price | Distance |
|---|---|---|
| 16 New Street | £ 360,000 | 0.05 KM |
| 11 New Street | £ 385,000 | 0.05 KM |
| 24a New Street | £ 345,000 | 0.05 KM |
| 32 - 34 New Street | £ 337,836 | 0.05 KM |
| 10 New Street | £ 455,000 | 0.05 KM |