Heathermount, Bracknell, Berkshire, RG12
By Prospect Estate Agency
£ 625,000
Reviews
3 out of 5 stars
Prospect Estate Agency says ..
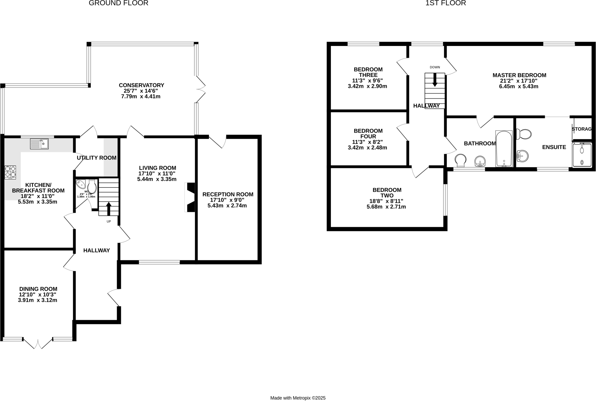
NO ONWARD CHAIN SPANNING OVER 2000 SQ FT Located within a private cul-de-sac, conveniently situated for local shops, Harmans Water Primary school and within easy access of the M3/M4 and Martin Heron train station sits this detached property. The property offers large an...
Property Oracle says ..
The property is located in Harmans Water, Bracknell, Berkshire. Based on the provided data, it’s a four-bedroom, two-bathroom house with a total area of 2,053.50 sqft. The list price is £625,000.
The property appears to be in reasonable condition, although some minor cosmetic updates might enhance its appeal. The kitchen and bathrooms look functional but could benefit from some modernisation. The garden is relatively small and requires some landscaping work. The property’s location is positive, being close to Harmans Water Primary School (rated ‘Good’ by Ofsted) and other amenities. The proximity to Martins Heron train station provides convenient transport links.
Considering the average house price in the area is £249,063 and the average price per sqft is £269, the property’s list price of £625,000 appears high relative to the average. However, the property’s size (2,053.50 sqft) is significantly larger than the average (924 sqft), which partially justifies the higher price. The lack of plot size information makes a complete price comparison difficult. Nearby comparable properties are needed for a more accurate assessment. Further investigation into similar properties sold recently in the area would provide a more robust price rationale.
Therefore, we give this property 6 / 10. *Disclaimer: This is our option and does constitute a recommendation or financial advice. Do your own research. *
- Price
- 6
- Condition
- 7
- Location
- 8
- Land
- 4
- Bedrooms
- 4
- Bathrooms
- 2
- Sqft (est)
- 2,053.50
The heatmap indicates the level of crime in the area. The color of the heatmap indicates the crime severity and recency.
Metrics Year-on-Year
- Average area value
- 456,250.00 £Increased by 6.24 %
- Est sale value
- 979,519.50 £Increased by 35.51 %
- Average area rental value
- 1,660.00 £/moDecreased by 3.60 %
- Est letting value
- 2,053.50 £/moUnchanged by 0.00 %
- Est rental Yield
- 4.37 %Decreased by 9.15 %
- Crime Rate
- 4.00 %Unchanged by 0.00 %
Agent Activity
Prospect Estate Agency created the listing.
Nearby Schools
| Name | Type | Ofsted | Distance |
|---|---|---|---|
| Harmans Water Primary School | Community School | Good | 0.25 KM |
| The Sycamores Children'S Centre | Children's Centre Linked Site | 0.33 KM | |
| Crown Wood Primary School | Academy Converter | 1.03 KM | |
| St Joseph'S Catholic Primary School, Bracknell | Voluntary Aided School | Outstanding | 1.14 KM |
| Holly Spring Primary School | Community School | Good | 1.16 KM |
Images
Nearby Streets
| Name | Average Price | Average Sqft | Distance |
|---|---|---|---|
| Hambleden Court | £ 0 | 0 | 0.00 KM |
| Abingdon Close | £ 0 | 0 | 0.00 KM |
| Martins Lane | £ 0 | 0 | 0.00 KM |
| Savernake Park | £ 0 | 0 | 0.00 KM |
| Brants Bridge Apartments | £ 0 | 0 | 0.00 KM |
Nearby Transport
| Name | NLC | TLC | Distance |
|---|---|---|---|
| Martins Heron | 5692 | MAO | 1.21 KM |
| Bracknell | 5693 | BCE | 2.01 KM |
| Ascot (Berks) | 5666 | ACT | 6.56 KM |
| Bagshot | 5681 | BAG | 6.90 KM |
| Camberley | 5682 | CAM | 7.79 KM |
Nearby Listings
| Address | Price | Type | Score | Distance |
|---|---|---|---|---|
| Heathermount, Bracknell, Berkshire, RG12 | £ 625,000 | BUY | 6 / 10 | 0.00 KM |
| Heathermount, Bracknell | £ 625,000 | BUY | 6 / 10 | 0.03 KM |
| Heathermount, Bracknell, Berkshire, RG12 | £ 625,000 | BUY | 6 / 10 | 0.04 KM |
| Thornhill, Bracknell, Berkshire, RG12 | £ 175,000 | BUY | 7 / 10 | 0.09 KM |
| Woodmere, Bracknell, Berkshire | £ 400,000 | BUY | 6 / 10 | 0.10 KM |
Nearby Properties
| Address | Price | Distance |
|---|---|---|
| 43 Woodmere | £ 206,000 | 0.09 KM |
| 40 Woodmere | £ 225,000 | 0.09 KM |
| 38 Woodmere | £ 132,000 | 0.09 KM |
| 32 Woodmere | £ 170,000 | 0.09 KM |
| 8 Woodmere | £ 190,000 | 0.09 KM |