Wigan Road, Euxton, Chorley
BE

Wigan Road, Euxton, Chorley

By Ben Rose

£ 329,995

Reviews

3 out of 5 stars

Ben Rose says ..

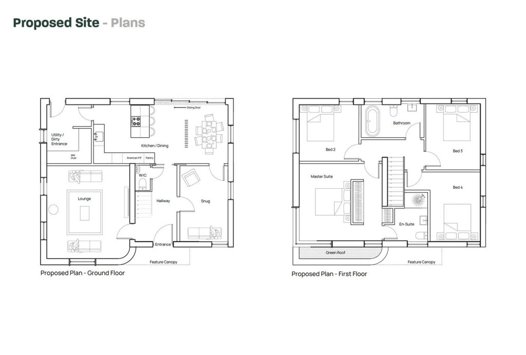
Ben Rose Estate Agents are pleased to present to market this charming, three-bedroom, detached home situated in the desirable area of Euxton, Lancashire. This property offers an excellent opportunity for families, or those seeking a project home, with recently approved plans for an impressive two...

Property Oracle says ..

This three-bedroom detached property located on Wigan Road in Euxton, Chorley offers a blend of established charm and potential for enhancement. The property benefits from a recently updated kitchen and bathroom, shown in the images to have contemporary design and fittings. The interior boasts a neutral and bright aesthetic, with hardwood flooring enhancing the sense of spaciousness. The inclusion of a well-proportioned garden is a considerable asset in a desirable residential area. The property’s proximity to outstanding-rated schools is a key selling point for families. Additional nearby amenities include a railway station providing access to nearby towns and cities. The property also has approved plans for a substantial extension, which if completed would significantly increase the size and value of the property. However, potential buyers should consider the costs and time associated with these developments. While the listing lacks precise square footage data, preventing precise price-per-square-foot analysis, the asking price, in comparison to similar properties on nearby streets, indicates a potentially reasonable offering, considering both the current state and future possibilities afforded by the approved planning permission.

Therefore, we give this property 6 / 10. *Disclaimer: This is our option and does constitute a recommendation or financial advice. Do your own research. *

Price
7
Condition
7
Location
7
Land
6
Bedrooms
3
Bathrooms
1

The heatmap indicates the level of crime in the area. The color of the heatmap indicates the crime severity and recency.

Metrics Year-on-Year

Average area value
362,000.00 £
Decreased by 15.58 %
from 428,824.00 £
Average area rental value
1,148.00 £/mo
Increased by 13.55 %
from 1,011.00 £/mo
Est rental Yield
3.81 %
Increased by 34.63 %
from 2.83 %
Crime Rate
10.00 %
Unchanged by 0.00 %
from 10.00 %

Agent Activity

  • Ben Rose created the listing.

Nearby Schools

NameTypeOfstedDistance
Euxton Church Of England Voluntary Aided Primary SchoolVoluntary Aided SchoolOutstanding0.52 KM
St. Mary'S Catholic Primary School EuxtonVoluntary Aided SchoolOutstanding0.63 KM
Balshaw Lane Community Primary SchoolCommunity SchoolOutstanding1.06 KM
Euxton Primrose Hill Primary SchoolCommunity SchoolOutstanding1.50 KM
Lancashire College Of Adult EducationMiscellaneous2.63 KM

Images

Front Garden Plans CGI Exterior Lounge Kitchen/Diner Kitchen/Diner Kitchen/Diner Kitchen/Diner Lounge Rear Garden Lounge Utility Room Utility Room Landing Master Bedroom Master Bedroom Bedroom Two Bedroom Two Bedroom Three Bedroom Three Family Bathroom Family Bathroom Driveway Driveway Rear Garden Rear Garden Front External Rear Garden Proposed Floor Plan Plans CGI Exterior Plans CGI Exterior Plans CGI Exterior Plans CGI Interior (Example) Plans CGI Interior (Example) Plans CGI Interior (Example) Plans CGI Interior (Example)

Nearby Streets

NameAverage PriceAverage SqftDistance
Brookside £ 000.00 KM
Dunnock Drive £ 000.00 KM
Talbot Row £ 000.00 KM
Coniston Avenue £ 210,00000.00 KM
Marquess Avenue £ 000.00 KM

Nearby Transport

NameNLCTLCDistance
Euxton Balshaw Lane2080EBA0.25 KM
Buckshaw Parkway7501BSV2.00 KM
Leyland2710LEY4.43 KM
Chorley2745CRL5.32 KM
Lostock Hall2689LOH7.17 KM

Nearby Listings

AddressPriceTypeScoreDistance
Balshaw Avenue, Euxton, Chorley £ 139,995BUY5 / 100.09 KM
Euxton Hall Gardens, Euxton, PR7 £ 599,950BUYUnknown0.14 KM
Wigan Road, Euxton, PR7 6HZ £ 495,000BUY7 / 100.15 KM
Euxton Hall Mews, Euxton, Chorley £ 279,995BUY6 / 100.15 KM
Park Avenue, Euxton, Chorley, Lancashire, PR7 £ 200,000BUYUnknown0.17 KM

Nearby Properties

AddressPriceDistance
8 Balshaw Avenue £ 82,5000.09 KM
The Bungalow £ 380,0000.09 KM
6 Balshaw Avenue £ 153,0000.09 KM
3 Balshaw Avenue £ 115,0000.09 KM
1 Balshaw Avenue £ 115,0000.09 KM