Stanwell Road, Ashford
By Aspen Residential Services LLP
£ 670,000
Reviews
3 out of 5 stars
Aspen Residential Services LLP says ..
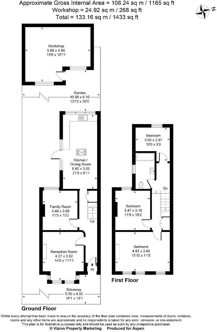
This immaculately presented three-bedroom semi-detached family home effortlessly combines period charm with modern luxury. Ideally located within a short walk of the train station, town centre, Ashford’s highly regarded schools, and beautiful recreation parks, this character property has been ref...
Property Oracle says ..
This is a semi-detached property located on Stanwell Road, Ashford. It features three bedrooms and two bathrooms, with a square footage of 1,165.09. The property includes a generously sized garden with a patio area. Ashford (Surrey) station and Thomas Knyvett College are within walking distance. The property appears to be in generally good condition, with a modern kitchen and well-maintained bathrooms. However, some areas may benefit from updating or redecoration. The property is listed for £670,000, which is slightly more expensive than the average price per square foot in the area.
Therefore, we give this property 7 / 10. *Disclaimer: This is our option and does constitute a recommendation or financial advice. Do your own research. *
- Price
- 6
- Condition
- 7
- Location
- 7
- Land
- 8
- Bedrooms
- 3
- Bathrooms
- 2
- Sqft (est)
- 1,165.09
The heatmap indicates the level of crime in the area. The color of the heatmap indicates the crime severity and recency.
Metrics Year-on-Year
- Average area value
- 564,495.00 £Increased by 18.72 %
- Est sale value
- 605,846.80 £Increased by 9.24 %
- Average area rental value
- 1,114.00 £/moDecreased by 25.39 %
- Est letting value
- 1,165.09 £/moUnchanged by 0.00 %
- Est rental Yield
- 2.37 %Decreased by 37.14 %
- Crime Rate
- 6.00 %Unchanged by 0.00 %
Agent Activity
Aspen Residential Services LLP created the listing.
Nearby Schools
| Name | Type | Ofsted | Distance |
|---|---|---|---|
| Fordway Centre | Academy Alternative Provision Converter | 0.61 KM | |
| Thomas Knyvett College | Academy Converter | Good | 0.65 KM |
| St James Senior Boys' School | Other Independent School | 0.70 KM | |
| Clarendon Primary School | Community School | Good | 0.77 KM |
| Clarendon School & Sure Start Children'S Centre | Children's Centre | 0.79 KM |
Images
Nearby Streets
| Name | Average Price | Average Sqft | Distance |
|---|---|---|---|
| Hanover Close | £ 0 | 0 | 0.00 KM |
| Connaught Avenue | £ 325,000 | 0 | 0.00 KM |
| Portland Road | £ 568,333 | 0 | 0.00 KM |
| Badgers Close | £ 0 | 0 | 0.00 KM |
| Badgers Close | £ 0 | 0 | 0.00 KM |
Nearby Transport
| Name | NLC | TLC | Distance |
|---|---|---|---|
| Ashford (Surrey) | 5667 | AFS | 0.57 KM |
| Staines | 5670 | SNS | 3.41 KM |
| Heathrow Terminal 4 | 7091 | HAF | 4.04 KM |
| Heathrow Terminal 5 | 9846 | HWV | 4.52 KM |
| Heathrow Terminals 2 And 3 (Rail Station Only) | 7090 | HXX | 4.64 KM |
Nearby Listings
| Address | Price | Type | Score | Distance |
|---|---|---|---|---|
| Stanwell Road, Ashford | £ 670,000 | BUY | 7 / 10 | 0.00 KM |
| Stanwell Road,Ashford,TW15 3QL | £ 850,000 | BUY | 7 / 10 | 0.03 KM |
| Stanwell Road, Ashford, TW15 3QL | £ 825,000 | BUY | Unknown | 0.03 KM |
| Stanwell Road, Ashford, Surrey, TW15 | £ 850,000 | BUY | Unknown | 0.09 KM |
| Stanwell Road, Ashford, Surrey, TW15 | £ 250,000 | BUY | 6 / 10 | 0.12 KM |
Nearby Properties
| Address | Price | Distance |
|---|---|---|
| 105 Stanwell Road | £ 327,000 | 0.04 KM |
| 107 Stanwell Road | £ 500,000 | 0.04 KM |
| 104 Stanwell Road | £ 375,000 | 0.05 KM |
| 100 Stanwell Road | £ 453,000 | 0.05 KM |
| 130 Stanwell Road | £ 487,500 | 0.05 KM |