Blythwood Drive, Frimley, Camberley, Surrey, GU16 8TZ
By Avocado Property
£ 525,000
Reviews
3 out of 5 stars
Avocado Property says ..
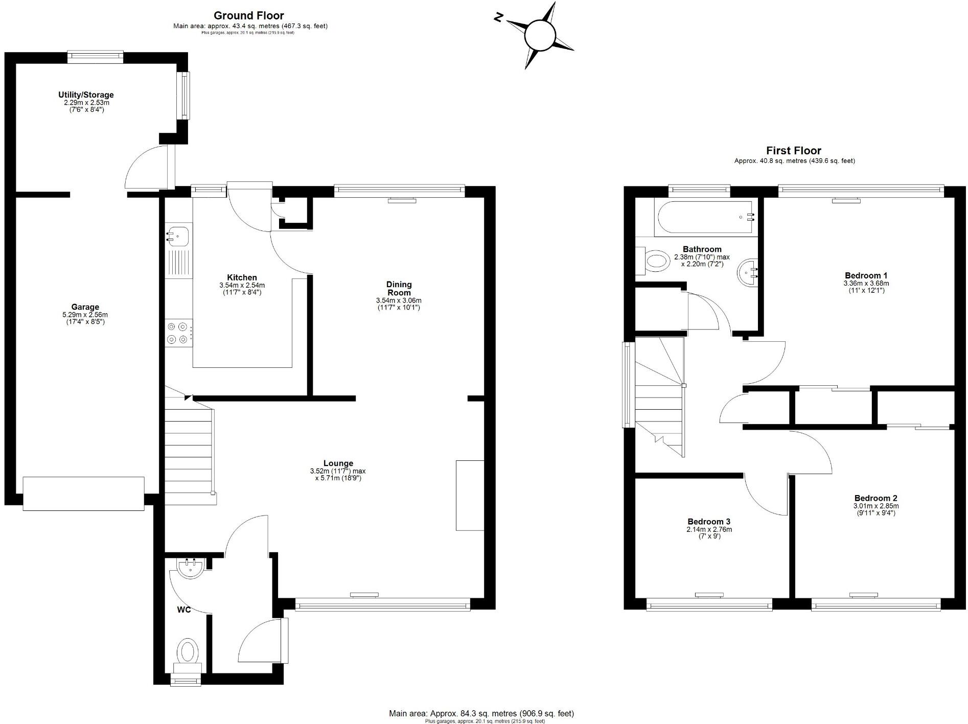
A three bedroom link-detached family home on the ever popular Parkside development, within walking distance of some great local schools, Frimley Park Hospital, and Frimley High Street & Station. There are two reception areas, a large rear garden with a summer house/office, plus driveway and garage.
Property Oracle says ..
Therefore, we give this property 7 / 10. *Disclaimer: This is our option and does constitute a recommendation or financial advice. Do your own research. *
- Price
- 9
- Condition
- 7
- Location
- 8
- Land
- 6
- Bedrooms
- 3
- Bathrooms
- 1
- Sqft (est)
- 1,004.27
The heatmap indicates the level of crime in the area. The color of the heatmap indicates the crime severity and recency.
Metrics Year-on-Year
- Average area value
- 563,842.00 £Increased by 75.09 %
- Est sale value
- 702,989.00 £Increased by 145.61 %
- Average area rental value
- 1,093.00 £/moDecreased by 30.87 %
- Est letting value
- 1,004.27 £/moUnchanged by 0.00 %
- Est rental Yield
- 2.33 %Decreased by 60.44 %
- Crime Rate
- 3.00 %Unchanged by 0.00 %
from 322,027.00 £
from 286,216.95 £
from 1,581.00 £/mo
from 1,004.27 £/mo
from 5.89 %
from 3.00 %
Agent Activity
Avocado Property created the listing.
Nearby Schools
| Name | Type | Ofsted | Distance |
|---|---|---|---|
| The Grove Primary Academy | Academy Converter | Good | 0.68 KM |
| Lakeside Nursery & Primary Academy | Academy Converter | Good | 1.08 KM |
| Kings International College | Foundation School | Good | 1.38 KM |
| Tomlinscote School | Academy Converter | 1.52 KM | |
| St Augustine'S Catholic Primary School | Academy Converter | 1.53 KM |
Images
Nearby Streets
| Name | Average Price | Average Sqft | Distance |
|---|---|---|---|
| The Boulevard | £ 0 | 0 | 0.00 KM |
| Martin Way | £ 0 | 0 | 0.00 KM |
| Chobham Road Footpath | £ 1,000,000 | 0 | 0.00 KM |
| The Grove | £ 0 | 0 | 0.00 KM |
| Beech Avenue | £ 0 | 0 | 0.00 KM |
Nearby Transport
| Name | NLC | TLC | Distance |
|---|---|---|---|
| Frimley | 5683 | FML | 1.61 KM |
| Camberley | 5682 | CAM | 1.69 KM |
| Farnborough North | 5688 | FNN | 2.39 KM |
| Farnborough (Main) | 5521 | FNB | 3.55 KM |
| Blackwater | 5625 | BAW | 4.46 KM |
Nearby Listings
| Address | Price | Type | Score | Distance |
|---|---|---|---|---|
| Blythwood Drive, Frimley, Camberley, Surrey, GU16 8TZ | £ 525,000 | BUY | 7 / 10 | 0.00 KM |
| Blythwood Drive, Frimley, Camberley, Surrey, GU16 | £ 550,000 | BUY | 6 / 10 | 0.08 KM |
| Sandown Drive, Frimley, Surrey, GU16 | £ 650,000 | BUY | 8 / 10 | 0.09 KM |
| Bayfield Avenue, Frimley, Camberley, Surrey, GU16 | £ 565,000 | BUY | 7 / 10 | 0.12 KM |
| Sandown Drive, Frimley, Surrey, GU16 | £ 575,000 | BUY | Unknown | 0.14 KM |
Nearby Properties
| Address | Price | Distance |
|---|---|---|
| 7 Overdale Rise | £ 387,000 | 0.10 KM |
| 4 Overdale Rise | £ 580,000 | 0.10 KM |
| 2 Overdale Rise | £ 355,000 | 0.11 KM |
| 15 Overdale Rise | £ 375,000 | 0.11 KM |
| 13 Overdale Rise | £ 275,000 | 0.11 KM |