The Pastures, Southport, Merseyside, PR9
Ball & Percival logo

The Pastures, Southport, Merseyside, PR9

By Ball & Percival

£ 170,000

Reviews

3 out of 5 stars

Ball & Percival says ..

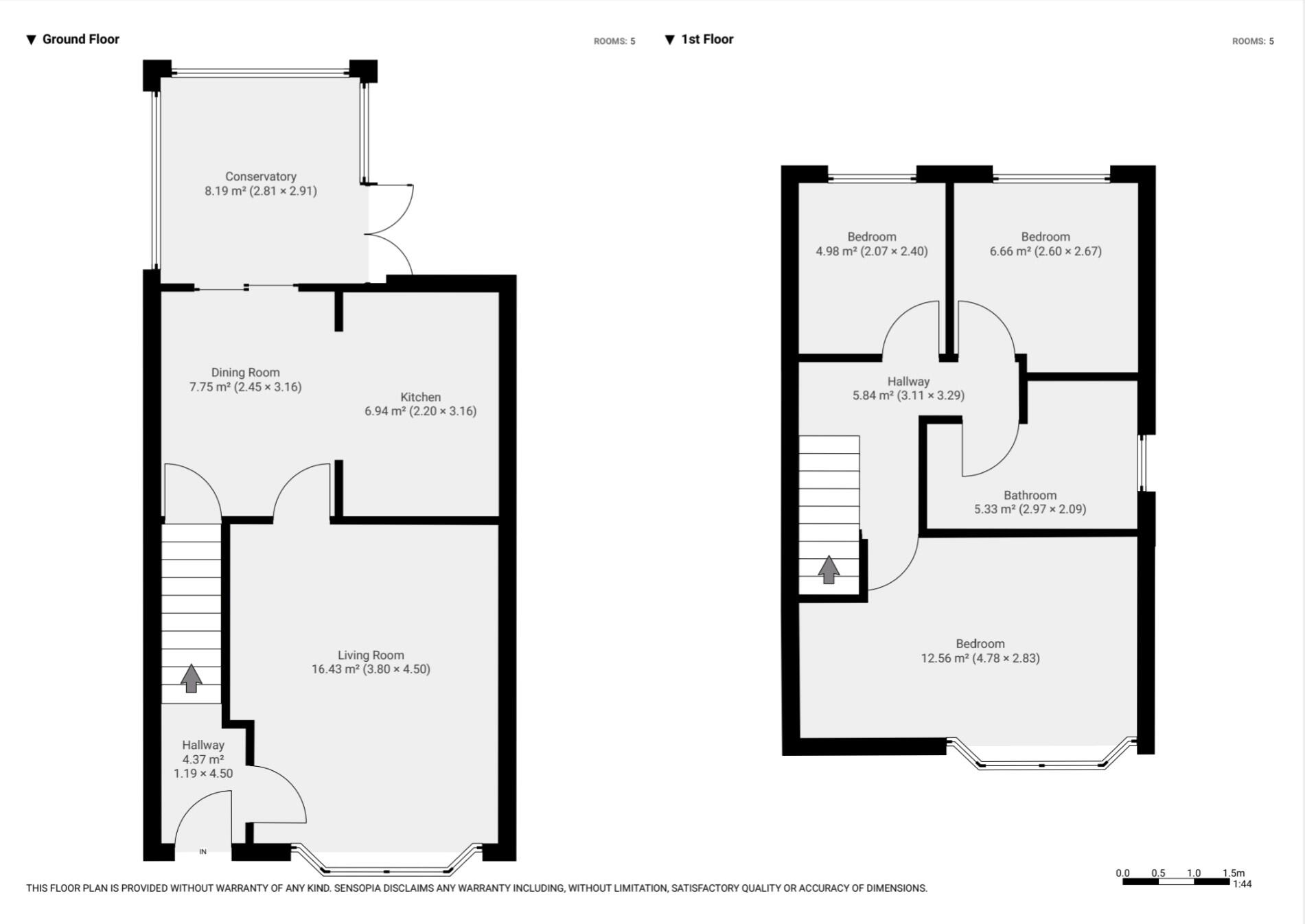
Located in the highly desirable residential area of Crossens, this well-presented semi-detached property offers a fantastic opportunity for first-time buyers or families looking to create their ideal home. With excellent transport links and a wide range of local amenities nearby, the location is ...

Property Oracle says ..

The property is located in Meols, Southport, Merseyside, an area with good schools and transportation links. The property itself needs significant modernisation and renovation; however, it includes a garden. Priced at £170,000, it is potentially below market value compared to the average area price, reflecting the need for renovation. More precise comparison is difficult due to a lack of plot size and comparable property square footage data.

Therefore, we give this property 6 / 10. *Disclaimer: This is our option and does constitute a recommendation or financial advice. Do your own research. *

Price
8
Condition
4
Location
7
Land
6
Bedrooms
3
Bathrooms
0
Sqft (est)
850.89

The heatmap indicates the level of crime in the area. The color of the heatmap indicates the crime severity and recency.

Metrics Year-on-Year

Average area value
265,714.00 £
Decreased by 4.26 %
from 277,544.00 £
Est sale value
211,871.61 £
Increased by 13.18 %
from 187,195.80 £
Average area rental value
1,082.00 £/mo
Increased by 12.01 %
from 966.00 £/mo
Est letting value
850.89 £/mo
from 0.00 £/mo
Est rental Yield
4.89 %
Increased by 16.99 %
from 4.18 %
Crime Rate
64.00 %
Unchanged by 0.00 %
from 64.00 %

Agent Activity

  • Ball & Percival created the listing.

Nearby Schools

NameTypeOfstedDistance
St John'S Church Of England Primary SchoolVoluntary Controlled SchoolGood0.17 KM
Peterhouse SchoolNon-maintained Special SchoolOutstanding1.94 KM
Presfield High School And Specialist CollegeCommunity Special SchoolGood1.99 KM
Larkfield Primary SchoolCommunity SchoolGood2.03 KM
Crossens Nursery SchoolLocal Authority Nursery SchoolOutstanding2.05 KM

Images

Picture No. 16 Picture No. 11 Picture No. 14 Picture No. 09 Picture No. 03 Picture No. 05 Picture No. 15 Picture No. 17 Picture No. 07 Picture No. 08 Picture No. 10 Picture No. 13 Picture No. 29 Picture No. 28 Picture No. 06 Picture No. 04 Picture No. 01 Picture No. 12 Picture No. 18 Picture No. 30 Picture No. 24 Picture No. 22 Picture No. 21 Picture No. 27 Picture No. 26 Picture No. 25 Picture No. 02

Nearby Streets

NameAverage PriceAverage SqftDistance
Southport New Road £ 248,12000.00 KM

Nearby Transport

NameNLCTLCDistance
Meols Cop2357MEC4.54 KM
Bescar Lane2351BES6.66 KM
Southport2262SOP6.94 KM
Lytham2670LTM7.43 KM
Birkdale2352BDL8.78 KM

Nearby Listings

AddressPriceTypeScoreDistance
The Pastures, Southport, Merseyside, PR9 £ 170,000BUY6 / 100.00 KM
The Pastures, Southport, PR9 8RH £ 230,000BUY7 / 100.00 KM
Rufford Road, Southport, Sefton, PR9 £ 180,000BUY6 / 100.15 KM
Shenley Way, Crossens, Southport £ 199,950BUY6 / 100.15 KM
Tarvin Close, Southport, Merseyside, PR9 £ 190,000BUY7 / 100.16 KM

Nearby Properties

AddressPriceDistance
6 The Pastures £ 145,0000.01 KM
32 The Pastures £ 169,9500.01 KM
18a The Pastures £ 149,9500.01 KM
44 The Pastures £ 150,0000.01 KM
30 The Pastures £ 175,0000.01 KM