HU
Brook Street, Old Quarter, Stourbridge, DY8 3UX
By Hunters
£ 229,950
Reviews
3 out of 5 stars
Hunters says ..
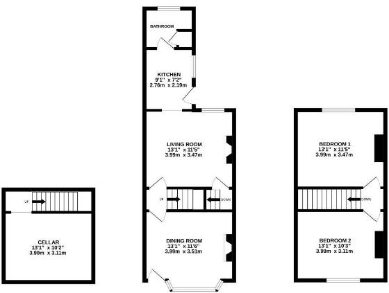
A well presented two bedroom mid terrace home in this sought-after 'Old Quarter' address close to nearby parks, reputable schools and popular pubs. This property lends itself perfectly to first time buyers, downsizers and buyers alike and briefly comprises of a generous size dining room with feat...
Property Oracle says ..
Therefore, we give this property 7 / 10. *Disclaimer: This is our option and does constitute a recommendation or financial advice. Do your own research. *
- Price
- 8
- Condition
- 8
- Location
- 7
- Land
- 7
- Bedrooms
- 2
- Bathrooms
- 1
- Sqft (est)
- 783.72
The heatmap indicates the level of crime in the area. The color of the heatmap indicates the crime severity and recency.
Metrics Year-on-Year
- Average area value
- 476,177.00 £Increased by 45.18 %
- Est sale value
- 286,057.80 £Increased by 19.67 %
- Average area rental value
- 1,045.00 £/moIncreased by 17.42 %
- Est letting value
- 0.00 £/mo
- Est rental Yield
- 2.63 %Decreased by 19.33 %
- Crime Rate
- 6.00 %Unchanged by 0.00 %
from 327,998.00 £
from 239,034.60 £
from 890.00 £/mo
from 0.00 £/mo
from 3.26 %
from 6.00 %
Agent Activity
Hunters created the listing.
Nearby Schools
| Name | Type | Ofsted | Distance |
|---|---|---|---|
| Gig Mill Primary School | Community School | Good | 0.62 KM |
| Stourbridge Children'S Centre | Children's Centre | 0.83 KM | |
| Greenfield Primary School | Community School | Outstanding | 1.16 KM |
| The Ridge Primary School | Community School | Good | 1.35 KM |
| King Edward Vi College Stourbridge | Academy 16-19 Converter | Good | 1.42 KM |
Images
Nearby Streets
| Name | Average Price | Average Sqft | Distance |
|---|---|---|---|
| South Road | £ 354,983 | 0 | 0.00 KM |
| Cherry Grove | £ 387,500 | 0 | 0.00 KM |
| Fox Covert | £ 200,000 | 0 | 0.00 KM |
| Glebe Lane | £ 364,998 | 0 | 0.00 KM |
| Federicks Close | £ 200,000 | 0 | 0.00 KM |
Nearby Transport
| Name | NLC | TLC | Distance |
|---|---|---|---|
| Stourbridge Town | 4643 | SBT | 2.03 KM |
| Stourbridge Junction | 4646 | SBJ | 3.01 KM |
| Hagley | 4577 | HAG | 3.89 KM |
| Lye (West Midlands) | 4640 | LYE | 4.92 KM |
| Blakedown | 4574 | BKD | 5.68 KM |
Nearby Listings
| Address | Price | Type | Score | Distance |
|---|---|---|---|---|
| Brook Street, Old Quarter, Stourbridge, DY8 3UX | £ 229,950 | BUY | 7 / 10 | 0.00 KM |
| Brook Street, Stourbridge, DY8 3UX | £ 239,950 | BUY | 6 / 10 | 0.03 KM |
| Brook Street, Stourbridge | £ 425,000 | BUY | 7 / 10 | 0.04 KM |
| Borough Crescent, Stourbridge,, DY8 | £ 255,000 | BUY | 6 / 10 | 0.08 KM |
| Unwin Crescent, Stourbridge, DY8 3UY | £ 295,000 | BUY | 6 / 10 | 0.11 KM |
Nearby Properties
| Address | Price | Distance |
|---|---|---|
| 95 Brook Street | £ 216,000 | 0.04 KM |
| 122 Brook Street | £ 208,000 | 0.04 KM |
| 108 Brook Street | £ 208,300 | 0.04 KM |
| 85 Brook Street | £ 144,950 | 0.04 KM |
| 93 Brook Street | £ 140,000 | 0.04 KM |