St. Aelreds Mews, York, YO31 0RW
By Price Independent Estate Agents, Powered by eXp
£ 475,000
Reviews
4 out of 5 stars
Price Independent Estate Agents, Powered by eXp says ..
This exceptional 4 bedroom home is perfect for families seeking a spacious and contemporary living environment in a welcoming community. With its well-designed layout, generous bedrooms, and stylish finishes, this property offers both comfort and practicality. The open-plan design, modern kitc...
Property Oracle says ..
This property is a modern, well-presented four-bedroom semi-detached house located in St. Aelreds Mews, York. The property benefits from a modern interior with a contemporary kitchen and bathrooms. There is also a good-sized garden. The location is convenient to local schools and transportation links. The asking price is slightly below the average price for the area, but this may be due to the smaller plot size compared to other properties in the area. Overall, this appears to be a well-maintained property in a desirable location.
Therefore, we give this property 8 / 10. *Disclaimer: This is our option and does constitute a recommendation or financial advice. Do your own research. *
- Price
- 8
- Condition
- 9
- Location
- 8
- Land
- 7
- Bedrooms
- 4
- Bathrooms
- 2
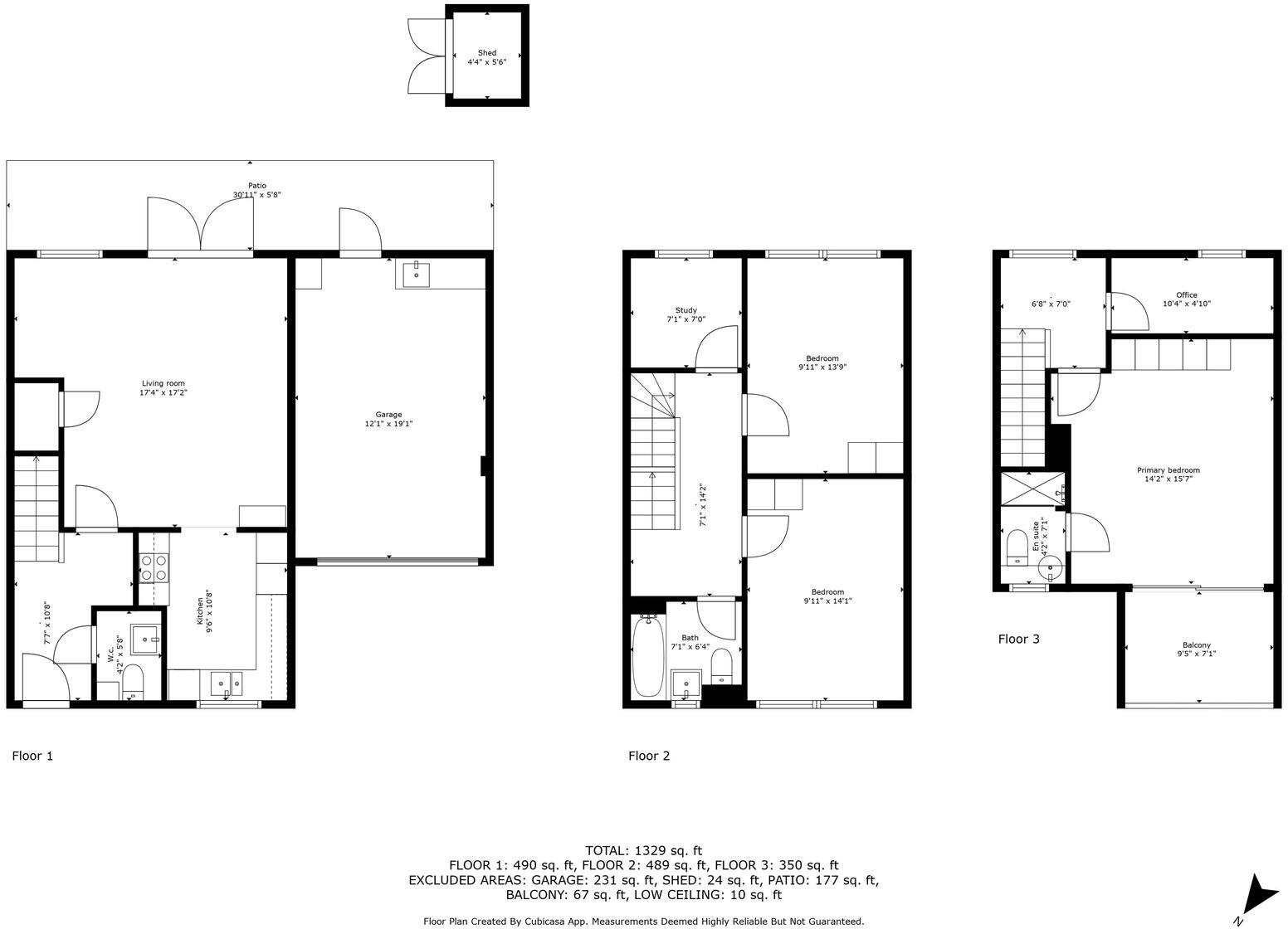
- Sqft (est)
- 1,329.00
The heatmap indicates the level of crime in the area. The color of the heatmap indicates the crime severity and recency.
Metrics Year-on-Year
- Average area value
- 476,500.00 £Increased by 12.19 %
- Est sale value
- 562,167.00 £Increased by 50.53 %
- Average area rental value
- 1,850.00 £/moIncreased by 11.45 %
- Est letting value
- 1,329.00 £/moUnchanged by 0.00 %
- Est rental Yield
- 4.66 %Decreased by 0.64 %
- Crime Rate
- 5.00 %Unchanged by 0.00 %
Agent Activity
Price Independent Estate Agents, Powered by eXp created the listing.
Nearby Schools
| Name | Type | Ofsted | Distance |
|---|---|---|---|
| Applefields School | Community Special School | Good | 0.36 KM |
| St Aelred'S Catholic Primary School - A Catholic Voluntary Academy | Academy Converter | 0.38 KM | |
| Osbaldwick Primary Academy | Academy Converter | 0.82 KM | |
| Hempland Primary School | Academy Converter | 0.86 KM | |
| Archbishop Holgate'S School, A Church Of England Academy | Academy Converter | Outstanding | 1.13 KM |
Images
Nearby Streets
| Name | Average Price | Average Sqft | Distance |
|---|---|---|---|
| Saint Aelreds Mews | £ 320,450 | 0 | 0.00 KM |
| Holly Close | £ 0 | 0 | 0.00 KM |
| Derwent Valley & Foss Islands Track | £ 0 | 0 | 0.00 KM |
| Blackberry Way | £ 0 | 0 | 0.00 KM |
| Old School Close | £ 0 | 0 | 0.00 KM |
Nearby Transport
| Name | NLC | TLC | Distance |
|---|---|---|---|
| York | 8263 | YRK | 5.45 KM |
Nearby Listings
| Address | Price | Type | Score | Distance |
|---|---|---|---|---|
| St. Aelreds Mews, York, YO31 0RW | £ 475,000 | BUY | 8 / 10 | 0.00 KM |
| Derwent Way, York, North Yorkshire, YO31 0RQ | £ 134,750 | BUY | Unknown | 0.04 KM |
| Derwent Way, York | £ 400,000 | BUY | 8 / 10 | 0.12 KM |
| Seebohm Mews, York, YO31 | £ 400,000 | BUY | 7 / 10 | 0.14 KM |
| Seebohm Mews, York, YO31 0SJ | £ 300,000 | BUY | 8 / 10 | 0.14 KM |
Nearby Properties
| Address | Price | Distance |
|---|---|---|
| 134 Derwent Way | £ 314,995 | 0.05 KM |
| 170 Derwent Way | £ 287,500 | 0.05 KM |
| 67 St Aelreds Mews | £ 489,950 | 0.06 KM |
| 41 St Aelreds Mews | £ 263,000 | 0.06 KM |
| 148 Derwent Way | £ 350,000 | 0.10 KM |