Blackbear says ..
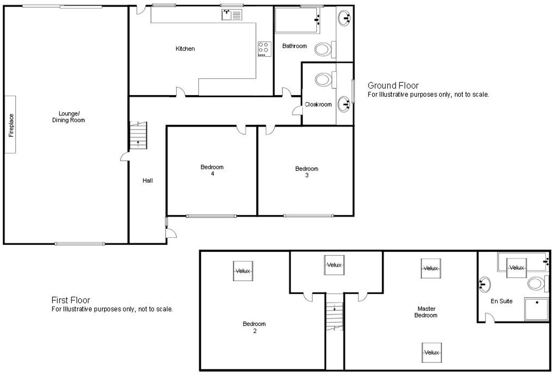
THE PROPERTYThis beautiful detached house is located in the peaceful and pretty residential area of Pleasant Valley and offers spacious and stylish accommodation over two floors, comprising Hall, open plan Lounge/Dining Room, Kitchen/Breakfast Room, Two Double Bedrooms, Bathroom and separate WC/C...
Property Oracle says ..
This is a detached property in Stepaside, near Narberth, featuring four bedrooms and two bathrooms. The house appears to be well-maintained, with a modern kitchen and bathrooms. It benefits from off-street parking and a garden. The location offers a mix of rural and coastal living, with proximity to local amenities and schools. While the price per square foot is above the area average, the overall condition and features of the property justify the asking price. The property is ideal for families or those seeking a peaceful lifestyle in a scenic location.
Therefore, we give this property 6 / 10. *Disclaimer: This is our option and does constitute a recommendation or financial advice. Do your own research. *
- Price
- 7
- Condition
- 7
- Location
- 7
- Land
- 6
- Bedrooms
- 4
- Bathrooms
- 2
- Sqft (est)
- 1,060.00
The heatmap indicates the level of crime in the area. The color of the heatmap indicates the crime severity and recency.
Metrics Year-on-Year
- Average area value
- 278,905.00 £Increased by 2.67 %
- Est sale value
- 291,500.00 £Increased by 50.27 %
- Average area rental value
- 800.00 £/moDecreased by 34.53 %
- Est letting value
- 0.00 £/mo
- Est rental Yield
- 3.44 %Decreased by 36.30 %
- Crime Rate
- 0.00 %
Agent Activity
Blackbear created the listing.
Nearby Schools
| Name | Type | Ofsted | Distance |
|---|---|---|---|
| Saundersfoot C.P. School | Welsh Establishment | 2.42 KM | |
| Stepaside C.P. School | Welsh Establishment | 2.73 KM | |
| St Teilos V.R.C. School | Welsh Establishment | 6.56 KM | |
| The Greenhill School | Welsh Establishment | 7.02 KM | |
| Templeton C.P. School | Welsh Establishment | 7.29 KM |
Images
Nearby Streets
| Name | Average Price | Average Sqft | Distance |
|---|---|---|---|
| Roslyn Hill | £ 0 | 0 | 0.00 KM |
| Seaview | £ 572,475 | 0 | 0.00 KM |
| New Buildings | £ 0 | 0 | 0.00 KM |
| Summerhill Park | £ 0 | 0 | 0.00 KM |
| Heritage View | £ 210,000 | 0 | 0.00 KM |
Nearby Transport
| Name | NLC | TLC | Distance |
|---|---|---|---|
| Kilgetty | 4083 | KGT | 3.14 KM |
| Saundersfoot | 4108 | SDF | 3.42 KM |
| Tenby | 4110 | TEN | 6.76 KM |
| Narberth | 4098 | NAR | 8.84 KM |
| Penally | 4129 | PNA | 8.86 KM |
Nearby Listings
| Address | Price | Type | Score | Distance |
|---|---|---|---|---|
| Stepaside, Narberth, SA67 | £ 450,000 | BUY | 6 / 10 | 0.00 KM |
| Sea Breeze, Pleasant Valley | £ 449,950 | BUY | Unknown | 0.09 KM |
| Sue's Wish, Pleasant Valley, Stepaside | £ 450,000 | BUY | 6 / 10 | 0.09 KM |
| Pleasant Valley, Stepaside, Narberth, Pembrokeshire, SA67 | £ 450,000 | BUY | 7 / 10 | 0.10 KM |
| Summerhill, Stepaside, Pembrokeshire, SA67 | £ 450,000 | BUY | 6 / 10 | 0.72 KM |
Nearby Properties
| Address | Price | Distance |
|---|---|---|
| Fernhill | £ 280,000 | 0.73 KM |
| Pearl Rock | £ 340,000 | 0.73 KM |
| 10 Church View | £ 335,000 | 1.09 KM |
| 1 Church View | £ 188,000 | 1.09 KM |
| 30 Church View | £ 195,000 | 1.09 KM |