Next Move says ..
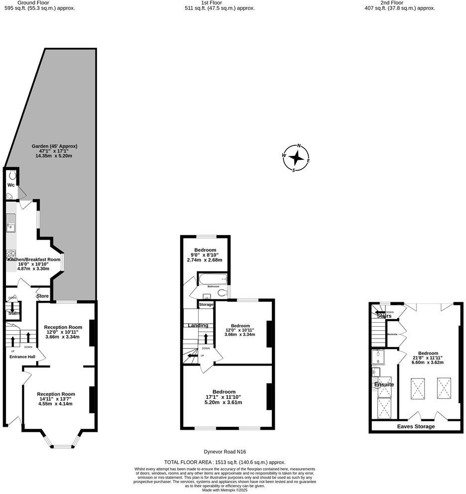
Spacious four bedroom Victorian terraced house in a sought-after location moments from Church Street, excellent transport links and an array of popular local schools. This superb family home having been extended upwards into the loft, offers the potential to extend further, with a side-retur...
Property Oracle says ..
This is a four-bedroom terraced house on Dynevor Road, Stoke Newington. The property offers a good amount of living space at 1,980 sq ft and includes a garden. The location is desirable, with good schools and transportation links nearby. While the property is in reasonable condition, some areas could benefit from modernization. The asking price of £1,450,000 appears to be in line with similar properties in the area. Overall, this property presents a solid opportunity for buyers looking for a family home in a sought-after location.
Therefore, we give this property 6 / 10. *Disclaimer: This is our option and does constitute a recommendation or financial advice. Do your own research. *
- Price
- 6
- Condition
- 6
- Location
- 8
- Land
- 7
- Bedrooms
- 4
- Bathrooms
- 2
- Sqft (est)
- 1,980.02
The heatmap indicates the level of crime in the area. The color of the heatmap indicates the crime severity and recency.
Metrics Year-on-Year
- Average area value
- 996,818.00 £Increased by 20.60 %
- Est sale value
- 1,696,877.14 £Increased by 149.85 %
- Average area rental value
- 2,571.00 £/moIncreased by 1.70 %
- Est letting value
- 3,960.04 £/moIncreased by 100.00 %
- Est rental Yield
- 3.10 %Decreased by 15.53 %
- Crime Rate
- 2.00 %Unchanged by 0.00 %
Agent Activity
Next Move created the listing.
Nearby Schools
| Name | Type | Ofsted | Distance |
|---|---|---|---|
| William Patten Primary School | Community School | Outstanding | 0.37 KM |
| The Garden School | Community Special School | Outstanding | 0.60 KM |
| St Mary'S Church Of England Primary School, Stoke Newington | Voluntary Aided School | Good | 0.62 KM |
| Princess May Primary School | Community School | Good | 0.71 KM |
| St Matthias Church Of England Primary School | Voluntary Aided School | Good | 0.74 KM |
Images
Nearby Streets
| Name | Average Price | Average Sqft | Distance |
|---|---|---|---|
| Scholars' Place | £ 825,000 | 0 | 0.00 KM |
| Sanford Lane | £ 0 | 0 | 0.00 KM |
| Sandford Walk | £ 0 | 0 | 0.00 KM |
| Wordsworth Road | £ 0 | 0 | 0.00 KM |
| Station Approach | £ 0 | 0 | 0.00 KM |
Nearby Transport
| Name | NLC | TLC | Distance |
|---|---|---|---|
| Stoke Newington | 6934 | SKW | 0.81 KM |
| Rectory Road | 6967 | REC | 0.96 KM |
| Dalston Kingsland | 1429 | DLK | 1.22 KM |
| Dalston Junction | 1443 | DLJ | 1.46 KM |
| Stamford Hill | 6968 | SMH | 1.71 KM |
Nearby Listings
| Address | Price | Type | Score | Distance |
|---|---|---|---|---|
| Dynevor Road, London | £ 1,500,000 | BUY | Unknown | 0.00 KM |
| Dynevor Road, Stoke Newington | £ 1,450,000 | BUY | 6 / 10 | 0.00 KM |
| Chesholm Road, London, N16 | £ 650,000 | BUY | 8 / 10 | 0.05 KM |
| Chesholm Road, London, N16 | £ 1,900,000 | BUY | Unknown | 0.08 KM |
| Lavers Road, London, N16 | £ 1,250,000 | BUY | 6 / 10 | 0.10 KM |
Nearby Properties
| Address | Price | Distance |
|---|---|---|
| 6 Dynevor Road | £ 1,451,500 | 0.02 KM |
| 8 Dynevor Road | £ 900,000 | 0.02 KM |
| 20 Dynevor Road | £ 1,160,000 | 0.02 KM |
| 21 Dynevor Road | £ 1,659,000 | 0.04 KM |
| 43 Dynevor Road | £ 850,000 | 0.04 KM |